Cedar Glade, Dunnington, York YO19 5PL
Offers Over £375,000
A BEAUTIFULLY PRESENTED property complimented by LOVELY SOUTHWESTERLY FACING GARDENS; backing onto open countryside.
GENERAL REMARKS
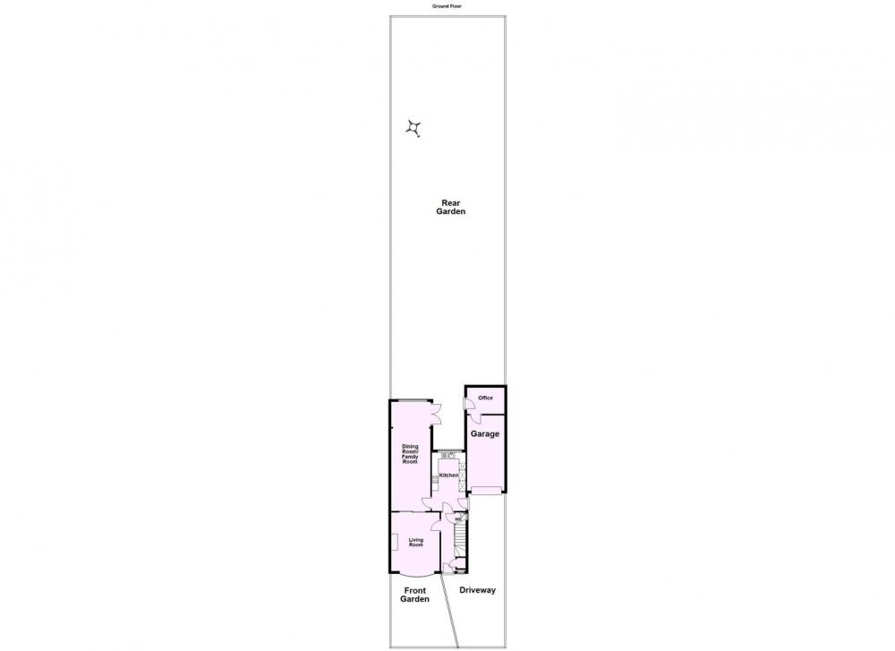
Accommodation comprises: a light and spacious entrance hall + storage cupboard -- ground floor WC-- a well-proportioned living room with contemporary feel, including Oak flooring and log burning stove set on a slate hearth with sliding Oak engineered doors through to an adjoining dining room with extended family room which enjoys rear garden views and access -- modern kitchen with quartz worktops, incorporating integral full height fridge and freezer, double oven and microwave plus induction hob, washing machine and dishwasher. The kitchen also enjoys garden views. Side access to the driveway.
First Floor: three good sized bedrooms; enjoying some lovely views over open countryside -- contemporary house bathroom which includes a shower above the bath. One of the bedrooms has a walk-in wardrobe with plumbing for a potential en-suite.
Outside: the property is approached via a block driveway incorporating iron gates; providing generous off-road parking provision for several vehicles leading up to an attached single garage with rear extended external office. There is a front and generous sized; immaculately presented two-tier rear garden enclosed by a combination of hedged and fenced boundaries. Immediately to the rear of the property is an extensive sun paved stone patio. Timber summerhouse.
In Summary: a versatile property likely to appeal to a wide range of buyers.
VIEWING
All viewing is strictly by prior appointment with the sole selling agents, Hudson Moody. Please contact our personal agent Alex McClean.
LOCATION
Dunnington is situated around 4 miles to the east of York City. The village is very popular and has a great community spirit with many local activities and amenities including: the Sports Club (cricket, football, squash, tennis and bowls teams), Scouts hut, pub, two local churches and a well-equipped play park with picnic area. There are a good range of local shops: bakers, Costcutter (including Post office), an award winning Florist, newsagent and interior design studio. There are also two hairdressers, a doctors surgery and chemist plus sought after village Primary School. Fulford school catchment. Local village walks are in Hagg Wood located on the eastern edge of the village.
The property is conveniently located a short walk to the centre of the village and also for Hagg Wood walks. Regular bus services operate from the village to the City of York and surrounding areas.
AMENITIES
*all mains services
*gas central heating (gas boiler located in the ground floor entrance hall cupboard). Combi boiler.
*uPVC double glazed windows
*access hatch to laddered loft space from first floor landing
LOCAL AUTHORITY
City of York Council, West Offices, Station Rise, York, YO1 6GA
OFFER PROCEDURE
Before contacting a Building Society, Bank or Solicitor you should make your offer to the office dealing with the sale, as any delay may result in the sale being agreed to another purchaser, thus incurring unnecessary costs. Under the Estate Agency Act 1991, you will be required to provide us with financial information in order to verify your position, before we can recommend your offer to the vendor. We will also require proof of identification in order to adhere to Money Laundering Regulations.
Loading... Please wait.
Loading... Please wait.