The Residence, Bishopthorpe Road, York, YO23 1DQ
Guide Price £400,000
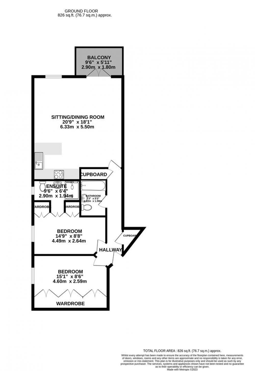
A well maintained two bedroom apartment within a prestigious development with a balcony and two parking spaces, ideally placed for local amenities and the train station.
A well presented two bedroom, south-facing apartment, set within the exclusive development The Residence, formerly known as Terry’s chocolate factory. Just off Bishopthorpe Road, this apartment enjoys excellent connections to both the city Centre and the railway station. Within a short stroll, is the much acclaimed ‘Bishy Road’ a vibrant and thriving street, celebrated for its independent shops, cafes, and restaurants. Also within strolling distance is the River Ouse/Millenium Bridge and beautiful countryside and riverside walks and cycle routes (Solar Way). This apartment enjoys stunning views across York Racecourse and a concierge service.
The internal accommodation comprises an entrance hall, a spacious open plan kitchen / dining / living space with French doors leading to the balcony. The contemporary, white gloss kitchen includes an array of wall and base units, integrated appliances complemented by quartz worktops. The principal bedroom has an en suite shower room and a house bathroom. There is also a further double bedroom with fitted wardrobes and two store cupboards.
Externally there are two allocated parking spaces. Offered with no onward chain, a viewing is highly recommended.
GENERAL REMARKS
FIXTURES AND FITTINGS
All fixtures and fittings are specifically excluded from the sale unless they are mentioned in the particulars of sale.
VIEWING MICKLEGATE
All viewing is strictly by prior appointment with the sole selling agents, Hudson Moody. Please contact our offices at 58, Micklegate, York, YO1 6LF. Telephone (01904) 650 650.
LOCATION
Just off Bishopthorpe Road within The Residence an exclusive development
SERVICES
Mains supplies of water, electricity and drainage. Gas fired central heating.
LOCAL AUTHORITY YORK
City of York Council, West Offices, Station Rise, York, YO1 6GA. Telephone 01904 551550.
OFFER PROCEDURE
Before contacting a Building Society, Bank or Solicitor you should make your offer to the office dealing with the sale, as any delay may result in the sale being agreed to another purchaser, thus incurring unnecessary costs. Under the Estate Agency Act 1991, you will be required to provide us with financial information in order to verify your position, before we can recommend your offer to the vendor. We will also require proof of identification in order to adhere to Money Laundering Regulations.
ANTI MONEY LAUNDERING COMPLIANCE
We are legally required to conduct Anti-Money Laundering (AML) checks on all purchasers and sellers. These checks become mandatory once a seller accepts an offer on a property (subject to contract).
AML checks are valid for six months from the date of completion. If your transaction does not proceed and you submit an offer on another property more than six months later, or if your existing AML check is more than six months old at the time of a new offer, you will be required to complete and pay for a new check.
We appoint HIPLA as our compliance partner to carry out these checks on our behalf. Once your offer has been accepted (subject to contract), HIPLA will contact you directly to complete a secure electronic verification process.
A non-refundable fee of £30 + VAT per purchaser is payable for the AML check. This fee must be paid before we can issue the Memorandum of Sale to the solicitors. The fee is non-refundable in all circumstances.
Hudson Moody receives service credits from HIPLA which may be used against other services, in recognition of facilitating the checks and undertaking associated administrative compliance duties.
Ground Rent: £250PA (Reviewed Every 10 Years)
Service Charge: £3940 ( Reviewed Annually)
Loading... Please wait.
Loading... Please wait.