Brown Moor Road, Stamford Bridge, York YO41 1PG
Guide Price £575,000
A lovely FAMILY SIZED property with PRIVATE GARDENS and DOUBLE GARAGE, situated on a lovely corner plot within the historic village of Stamford Bridge to the east of York.
GENERAL REMARKS
A well-loved property under the same ownership since new in 1988. Well positioned on this highly regarded estate we offer a stunning George Blades constructed property.
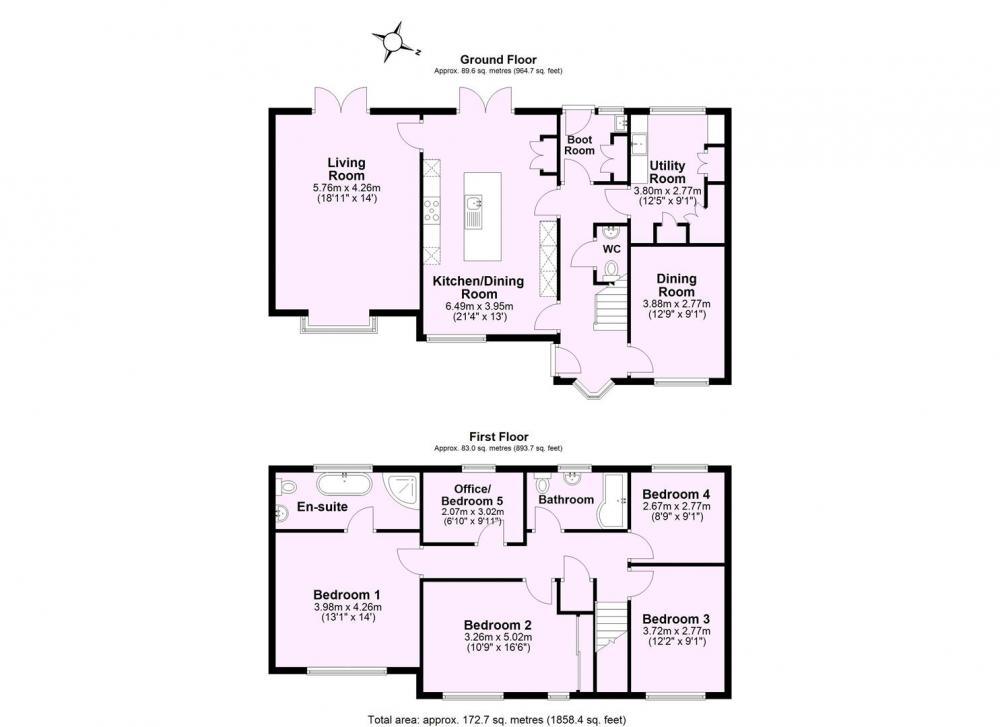
Accommodation comprises: a welcoming entrance hall; noticeably bright with distinctive Oriel window and WC off. Bevel glazed Oak engineered doors lead through to the main hub of the property – an outstanding 'open plan' fitted kitchen diner offering excellent sociable space plus French doors enjoying garden views. The kitchen is by Lucy Jane Interiors and extends the full property depth; fitted with a range of Sage green coloured units plus lovely central island breakfast bar with quartz worktops. Integral units include: 2 Neff ovens, plus Neff microwave oven with plate warming drawer, Bosch induction hob with extractor over, double height fridge, freezer and dishwasher. To the rear of the hall is a rear boot room with useful coats storage cupboard and a separate large utility room with generous storage space plus Belfast sink and matching quartz tops.
Beyond the kitchen is a noticeably light and spacious living room which spans the full property depth, incorporating a front elevation bay window, plus open fireplace with marble hearth and French doors providing garden views. There is also an additional reception room located to the front elevation which is currently set upas a dining room.
1st floor: 4 double bedrooms including main bedroom with modern en-suite that includes both a bath and shower cubicle. In addition, there is a house bathroom incorporating shower over the bath. There is an additional fifth single bedroom currently used for storage with potential for use as an office or nursery room. Airing cupboard housing water cylinder.
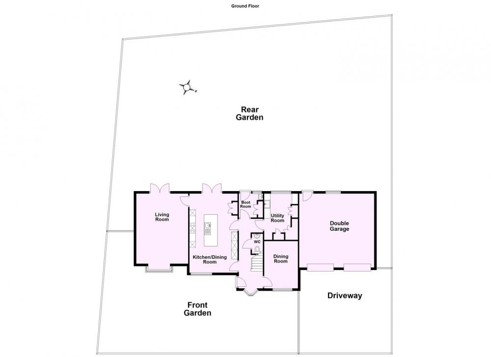
Outside a double width block paved drive provides ample off-road parking leading up to an attached double garage with twin up an over door. There is an attractively landscaped front garden set within a low privet hedge with well stocked flower beds, plus a pedestrian gated path leading to a storm porch entrance. South-westerly facing to the rear is the main garden; noticeably private; predominantly laid to lawn and flanked within by well stocked borders set within tall conifer boundaries. Immediately to the rear of the property is an extensive paved sun patio that spans the full property width plus a Virginia Creeper and honeysuckle clad timber pergola. Rockery. Timber storage shed. Gated pathways link front and rear.
In summary, a modern family home boasting beautifully appointed accommodation.
VIEWING
All viewing is strictly by prior appointment with the sole selling agents, Hudson Moody. Please contact our personal agent Alex McClean.
LOCATION
Stamford Bridge is a village with excellent local amenities and strong community spirit including in particular a highly regarded local primary and infants school, diverse sports clubs, shops, doctors and dental surgery, 'No 10' Cafe Bar & Bistro, Indian restaurant and deli. The number 10 bus stop to take you into York is only a short walk away. City of York 8 miles. Malton 12 miles. Conveniently placed for Leeds & other commuter towns via the A166 & A64 dual carriageway.
AMENITIES
*gas central heating - boiler located in the garage
*uPVC double glazed windows
*access hatch to laddered loft space on the first floor landing (boarded with loft insulation and lighting)
LOCAL AUTHORITY
East Riding of Yorkshire Council, County Hall, Cross Street, Beverley HU17 9BA
OFFER PROCEDURE
Before contacting a Building Society, Bank or Solicitor you should make your offer to the office dealing with the sale, as any delay may result in the sale being agreed to another purchaser, thus incurring unnecessary costs. Under the Estate Agency Act 1991, you will be required to provide us with financial information in order to verify your position, before we can recommend your offer to the vendor. We will also require proof of identification in order to adhere to Money Laundering Regulations.
Loading... Please wait.
Loading... Please wait.