Eastfield Crescent, York, YO10 5JB
Guide Price £325,000
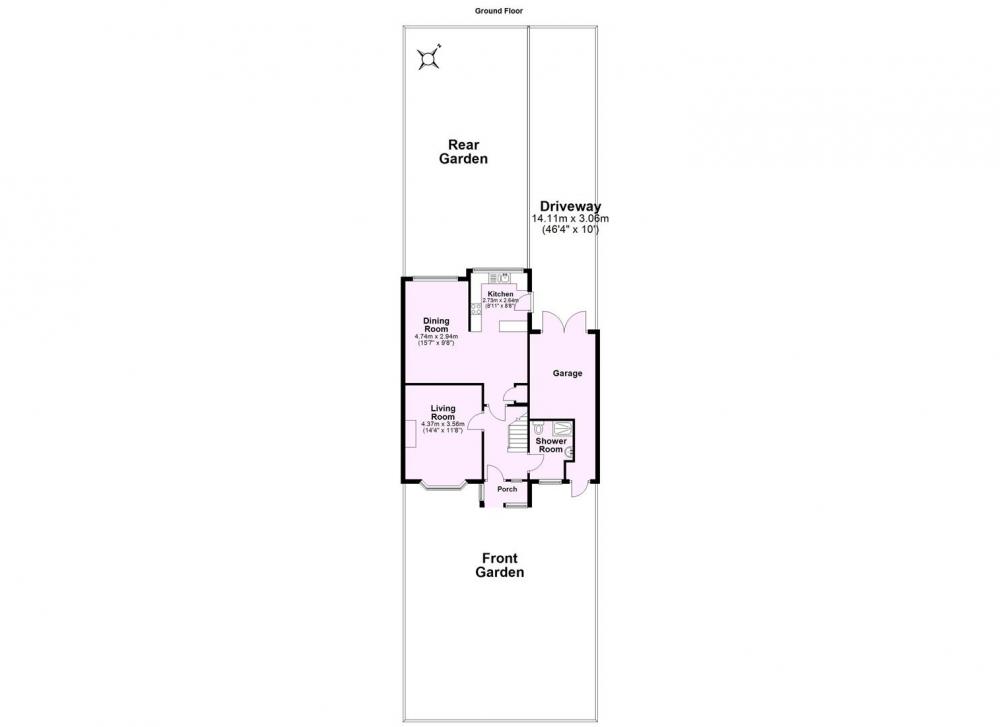
This spacious semi-detached home comprises open plan dining kitchen, reception room and ground floor shower room.
The house is situated close to the University of York and sits on a generous plot with front and rear gardens and a driveway providing off street parking.
A south facing lawned garden leads to a glazed porch that invites you into a central reception hall off which you will find the cosy 14ft living room with bay window and stone clad open fireplace, whilst behind the living room is the extended large L-shaped open plan dining room and kitchen. The kitchen benefits from a range of fitted units with under counter space for a free standing cooker and washing machine with a breakfast bar dividing the kitchen from the dining area. The dining area features timber panelled walls and provides space for a dining table, whilst there is also ample space at the side of the kitchen for family/lounge area that looks out through glazed patio doors to the garden. The ground floor is then completed by a shower room installed within the original garage which now provides a large storage area.
On the first floor there are two double bedrooms with fitted furniture, an additional bedroom or home office and the house bathroom with separate WC.
Externally there is a patio area, a further lawn and seating area together with a driveway that provides off street parking in front of the converted garage.
The house would benefit from a degree of cosmetic updating but offers excellent potential to create a much loved family home in a convenient area within easy reach of York city centre and local shops.
GENERAL REMARKS
VIEWING
All viewing is strictly by prior appointment with the sole selling agents, Hudson Moody. Please contact our offices at 58, Micklegate, York, YO1 6LF.
FIXTURES AND FITTINGS
All fixtures and fittings are specifically excluded from the sale unless they are mentioned in the particulars of sale.
LOCATION
Situated a little off Hull Road and within easy reach of York city centre and the A64 outer ring road.
SERVICES
Mains supplies of water, electricity and drainage. Gas fired central heating.
LOCAL AUTHORITY YORK
City of York Council, West Offices, Station Rise, York, YO1 6GA. Telephone 01904 551550.
OFFER PROCEDURE
Before contacting a Building Society, Bank or Solicitor you should make your offer to the office dealing with the sale, as any delay may result in the sale being agreed to another purchaser, thus incurring unnecessary costs. Under the Estate Agency Act 1991, you will be required to provide us with financial information in order to verify your position, before we can recommend your offer to the vendor. We will also require proof of identification in order to adhere to Money Laundering Regulations.
Loading... Please wait.
Loading... Please wait.