Emerald Street, The Groves, York, YO31 8LQ
Offers Over £350,000
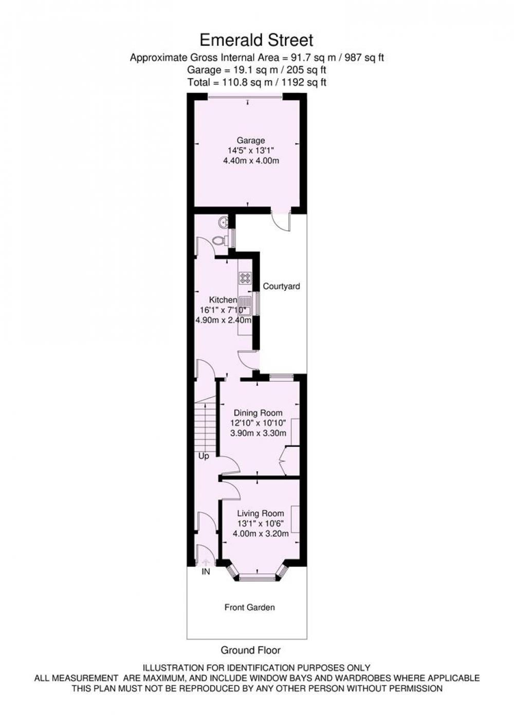
Bright and characterful mid-terrace home with two reception rooms, three bedrooms, and useful garage. Ideally located between Haxby Road and Huntington Road, close to York Hospital and city centre.
This characterful home welcomes you through a pretty pink front door into a tiled vestibule and spacious hallway showcasing original mosaic flooring and stripped pine doors.
The front living room is bright and inviting, with a wide bay window, picture rail, coving, and a Victorian-style fireplace with open fire. To the rear, the separate dining room features a log-burning stove, tiled hearth, and an original built-in dresser.
A modern rear extension provides a sleek fitted kitchen with ample storage and workspace, along with a ground floor cloakroom/utility room for added convenience.
Upstairs, the property offers two generous double bedrooms and a third single bedroom or ideal study. All rooms are served by a contemporary house bathroom.
Externally, the low-maintenance rear courtyard garden offers a peaceful outdoor space with access to a useful garage with roller door. On-street parking is available at the front.
GENERAL REMARKS
VIEWING
All viewing is strictly by prior appointment with the sole selling agents, Hudson Moody. Please contact our offices at 58, Micklegate, York, YO1 6LF.
FIXTURES AND FITTINGS
All fixtures and fittings are specifically excluded from the sale unless they are mentioned in the particulars of sale.
LOCATION
Conveniently situated off Huntington Road yet close to Haxby Road and the York District Hospital.
SERVICES
Mains supplies of water, electricity and drainage. Gas fired central heating.
LOCAL AUTHORITY YORK
City of York Council, West Offices, Station Rise, York, YO1 6GA. Telephone 01904 551550.
OFFER PROCEDURE
Before contacting a Building Society, Bank or Solicitor you should make your offer to the office dealing with the sale, as any delay may result in the sale being agreed to another purchaser, thus incurring unnecessary costs. Under the Estate Agency Act 1991, you will be required to provide us with financial information in order to verify your position, before we can recommend your offer to the vendor. We will also require proof of identification in order to adhere to Money Laundering Regulations.
Loading... Please wait.
Loading... Please wait.