Huntington Road, York YO31 8RD
Offers In Excess Of £400,000
Conveniently situated close to Monkgate and the city centre is this large and immaculately presented Victorian terrace that has been sympathetically updated to suite modern living, yet retains much of the charm and character of its period.
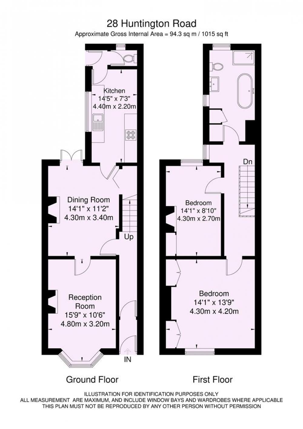
An enclosed forecourt invites you into the entrance vestibule and through a further door into the reception hall. To your left you will discover the 14ft dining room that benefits from French doors leading out to the rear garden and allowing daylight to flood into the room that also benefits from a fire alcove with wood burning stove, alcove cupboards and shelves. To the front of the house is the 15ft lounge, again with stove yet boasting a wide bay window, coving to the ceiling and dado rail. At the rear of the house is the immaculately presented modern kitchen with smart white fronted units, eye level oven and microwave, separate gas hob and space for an American style fridge/freezer. Beyond here is a small lobby with door to a ground floor WC and further door to the rear garden.
On the first floor there is an attractive galleried landing off which are two generous double bedrooms, situated over the lounge and dining room, and a superb modern bathroom with free standing tub and separate shower cubicle.
To the rear of the house is a good sized courtyard garden providing valuable outdoor space. On street parking is available to the front of the property.
GENERAL REMARKS
VIEWING
All viewing is strictly by prior appointment with the sole selling agents, Hudson Moody. Please contact our offices at 58, Micklegate, York, YO1 6LF.
FIXTURES AND FITTINGS
All fixtures and fittings are specifically excluded from the sale unless they are mentioned in the particulars of sale.
LOCATION
The house is situated close to Monkgate on Huntington Road and provides easy access to the city centre together with local shops and services.
SERVICES
Mains supplies of water, electricity and drainage. Gas fired central heating.
LOCAL AUTHORITY YORK
City of York Council, West Offices, Station Rise, York, YO1 6GA. Telephone 01904 551550.
OFFER PROCEDURE
Before contacting a Building Society, Bank or Solicitor you should make your offer to the office dealing with the sale, as any delay may result in the sale being agreed to another purchaser, thus incurring unnecessary costs. Under the Estate Agency Act 1991, you will be required to provide us with financial information in order to verify your position, before we can recommend your offer to the vendor. We will also require proof of identification in order to adhere to Money Laundering Regulations.
ANTI MONEY LAUNDERING COMPLIANCE
We are legally required to conduct Anti-Money Laundering (AML) checks on all purchasers and sellers. These checks become mandatory once a seller accepts an offer on a property (subject to contract).
AML checks are valid for six months from the date of completion. If your transaction does not proceed and you submit an offer on another property more than six months later, or if your existing AML check is more than six months old at the time of a new offer, you will be required to complete and pay for a new check.
We appoint HIPLA as our compliance partner to carry out these checks on our behalf. Once your offer has been accepted (subject to contract), HIPLA will contact you directly to complete a secure electronic verification process.
A non-refundable fee of £30 + VAT per purchaser is payable for the AML check. This fee must be paid before we can issue the Memorandum of Sale to the solicitors. The fee is non-refundable in all circumstances.
Hudson Moody receives service credits from HIPLA which may be used against other services, in recognition of facilitating the checks and undertaking associated administrative compliance duties.
Loading... Please wait.
Loading... Please wait.