Joseph Terry Grove, York, YO23 1PU
Guide Price £625,000
A stylish modern townhouse in the prestigious Chocolate Works development, situated within easy reach of the city centre, railway station, A64 and the highly acclaimed 'Bishy Road'.
Located within the highly sought-after development, on the former site of the Chocolate Factory, this beautifully presented modern townhouse arranged over three floors offers spacious and versatile living accommodation.
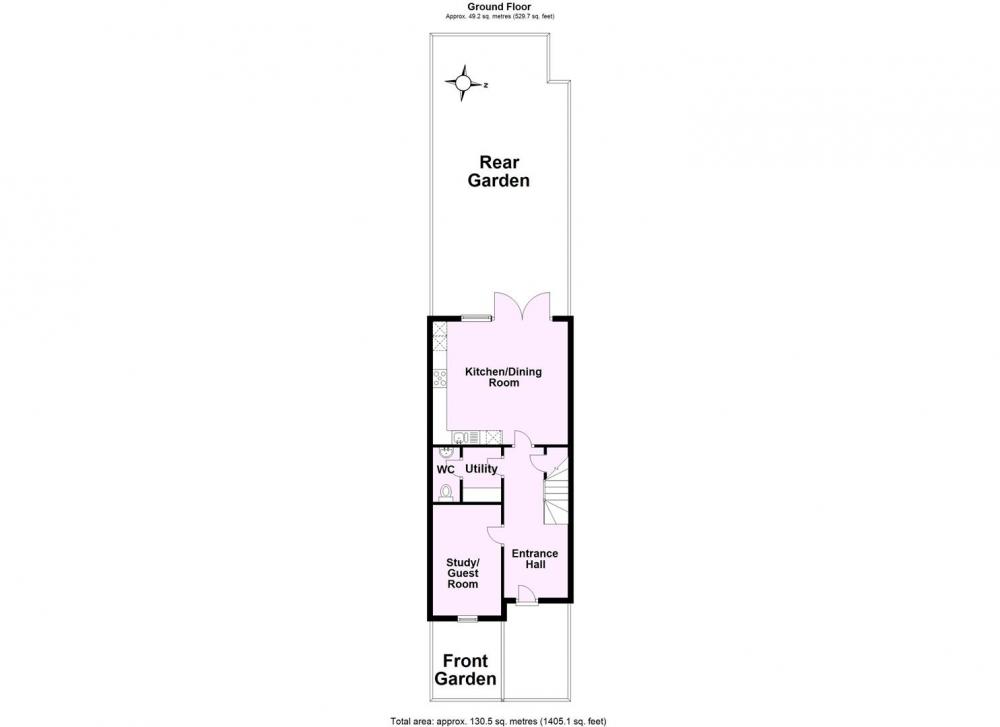
A planted forecourt leads into a welcoming entrance hall, providing access to a ground floor study (or optional fourth bedroom), a utility room, and a WC. To the rear of the property, a bright and spacious dining kitchen is fitted with modern units and integrated appliances, with patio doors leading to the garden, creating an ideal space for both everyday living and entertaining.
Stairs lead to the first floor, where a generously proportioned, light-filled living room opens onto a balcony overlooking the rear garden. This level also features a double bedroom and the family bathroom.
The second floor comprises the master bedroom with an en-suite shower room, alongside a further well-proportioned double bedroom.
Externally, the property enjoys an attractive and low-maintenance gravel garden to the rear, providing a peaceful seating area filled with a variety of plants and shrubs. A gate at the rear of the garden provides access to the dedicated off-street parking space.
GENERAL REMARKS
VIEWING
All viewing is strictly by prior appointment with the sole selling agents, Hudson Moody. Please contact our offices at 58, Micklegate, York, YO1 6LF.
FIXTURES AND FITTINGS
All fixtures and fittings are specifically excluded from the sale unless they are mentioned in the particulars of sale.
LOCATION
The house is well located just off Bishopthorpe Road and offers excellent access to both York city centre and the outer ring road that serves the motorway network.
There are a good range of local shops and services on Bishopthorpe Road and excellent local walks on both The Knavesmire and along the river bank.
SERVICES
Mains supplies of water, electricity and drainage. Gas fired central heating.
AGENT'S NOTE
There is a service charge for the estate - the seller thinks this is approx £35 per month and includes all communal maintenance + gutters cleaning every year
Parking space is the middle space to the back of the property.
The boiler is in the kitchen and approximately 8.5 years old, installed when property was built.
LOCAL AUTHORITY YORK
City of York Council, West Offices, Station Rise, York, YO1 6GA. Telephone 01904 551550.
OFFER PROCEDURE
Before contacting a Building Society, Bank or Solicitor you should make your offer to the office dealing with the sale, as any delay may result in the sale being agreed to another purchaser, thus incurring unnecessary costs. Under the Estate Agency Act 1991, you will be required to provide us with financial information in order to verify your position, before we can recommend your offer to the vendor. We will also require proof of identification in order to adhere to Money Laundering Regulations.
ANTI MONEY LAUNDERING COMPLIANCE
We are legally required to conduct Anti-Money Laundering (AML) checks on all purchasers and sellers. These checks become mandatory once a seller accepts an offer on a property (subject to contract).
AML checks are valid for six months from the date of completion. If your transaction does not proceed and you submit an offer on another property more than six months later, or if your existing AML check is more than six months old at the time of a new offer, you will be required to complete and pay for a new check.
We appoint HIPLA as our compliance partner to carry out these checks on our behalf. Once your offer has been accepted (subject to contract), HIPLA will contact you directly to complete a secure electronic verification process.
A non-refundable fee of £30 + VAT per purchaser is payable for the AML check. This fee must be paid before we can issue the Memorandum of Sale to the solicitors. The fee is non-refundable in all circumstances.
Hudson Moody receives service credits from HIPLA which may be used against other services, in recognition of facilitating the checks and undertaking associated administrative compliance duties.
Loading... Please wait.
Loading... Please wait.