Lindley Street, Holgate, York, YO24 4JF
Guide Price £425,000
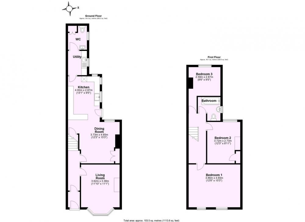
A period terrace renovated by the current owners offering an open plan living dining area yet retains original features including Victorian mosaic tiles, picture rails, corbels and feature fireplaces. The property also benefits from integrated appliances, utility, ground floor WC and three double bedrooms.
Lindley Street features attractive bay fronted terraces and enjoys a convenient position close to West Bank Park, a local convenience store, pub and Acomb Primary School.
The ground floor offers a spacious living room alongside an open-plan kitchen diner, complemented by a useful utility room leading to a ground floor WC with space to install a shower if desired. The modern kitchen boasts ample storage and integrated appliances, including a Bosch slimline dishwasher, Hotpoint fridge freezer, as well as space for a range cooker. The utility room provides further storage and under-counter space for a washing machine.
On the first floor are three generous double bedrooms and a family bathroom with a shower over the bath. Each bedroom showcases charming period features, including original Victorian fireplaces and picture rails.
Externally, the west-facing rear courtyard offers a gate to the service lane, ideal for bike access and bin storage. To the front, a charming forecourt with steps leading down to the street creates an attractive approach to the property.
GENERAL REMARKS
VIEWING MICKLEGATE
All viewing is strictly by prior appointment with the sole selling agents, Hudson Moody. Please contact our offices at 58, Micklegate, York, YO1 6LF. Telephone (01904) 650 650.
FIXTURES AND FITTINGS
All fixtures and fittings are specifically excluded from the sale unless they are mentioned in the particulars of sale.
SERVICES
Mains supplies of water, electricity and drainage. Gas fired central heating.
LOCAL AUTHORITY YORK
City of York Council, West Offices, Station Rise, York, YO1 6GA. Telephone 01904 551550.
OFFER PROCEDURE
Before contacting a Building Society, Bank or Solicitor you should make your offer to the office dealing with the sale, as any delay may result in the sale being agreed to another purchaser, thus incurring unnecessary costs. Under the Estate Agency Act 1991, you will be required to provide us with financial information in order to verify your position, before we can recommend your offer to the vendor. We will also require proof of identification in order to adhere to Money Laundering Regulations.
ANTI MONEY LAUNDERING COMPLIANCE
We are legally required to conduct Anti-Money Laundering (AML) checks on all purchasers and sellers. These checks become mandatory once a seller accepts an offer on a property (subject to contract).
AML checks are valid for six months from the date of completion. If your transaction does not proceed and you submit an offer on another property more than six months later, or if your existing AML check is more than six months old at the time of a new offer, you will be required to complete and pay for a new check.
We appoint HIPLA as our compliance partner to carry out these checks on our behalf. Once your offer has been accepted (subject to contract), HIPLA will contact you directly to complete a secure electronic verification process.
A non-refundable fee of £30 + VAT per purchaser is payable for the AML check. This fee must be paid before we can issue the Memorandum of Sale to the solicitors. The fee is non-refundable in all circumstances.
Hudson Moody receives service credits from HIPLA which may be used against other services, in recognition of facilitating the checks and undertaking associated administrative compliance duties.
Loading... Please wait.
Loading... Please wait.