Lycett Road, Dringhouses, York, YO24 1NB
Offers In Excess Of £400,000
Situated close to the Knavesmire and within easy reach of a wide range of local amenities, schools, and transport links into York city centre, this property represents a superb opportunity for buyers seeking a characterful home with scope to update.
This traditional three-bedroom semi-detached home has been a much-loved family home since 1957. While now ready for modernisation, the property has been well cared for over the years and offers well-proportioned accommodation throughout. The property also offers excellent potential for extension, subject to the necessary planning permissions.
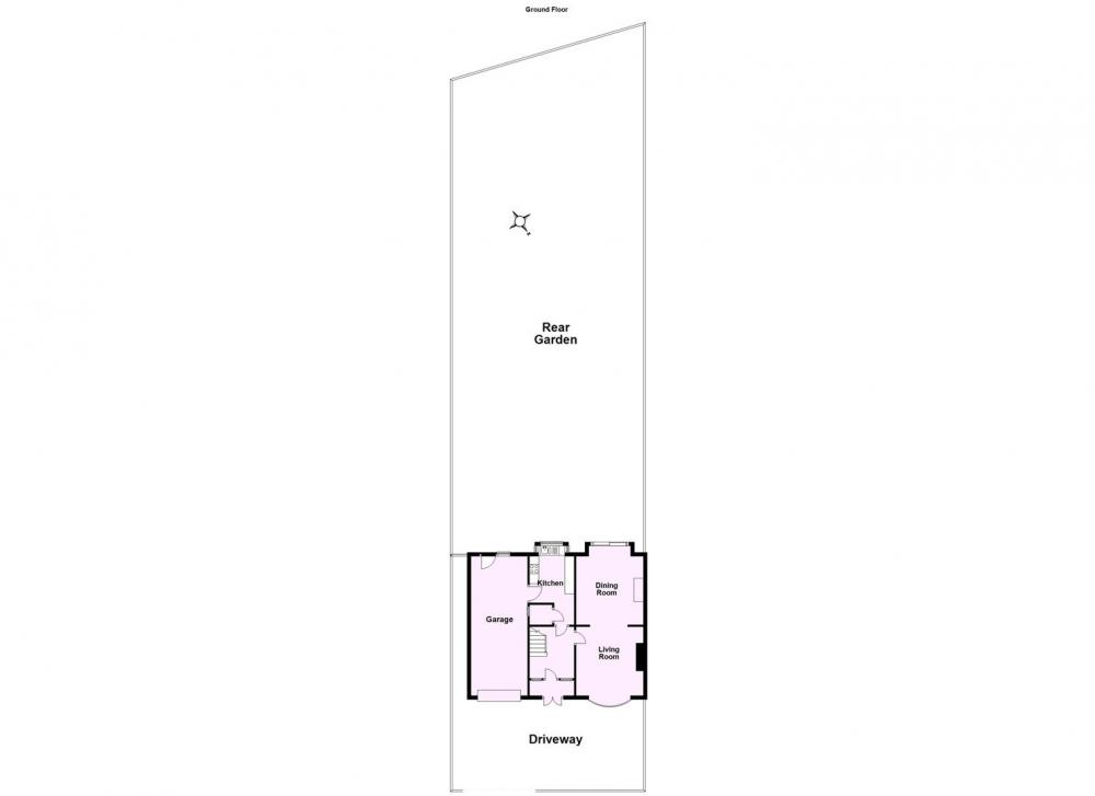
The ground floor offers an open-plan living and dining area, while the kitchen, complete with a built-in pantry, provides direct access to the garage and rear garden. The garage offers additional storage, a door leading out to the garden, and side access from the front of the property through to the rear.
Upstairs, there are three generously sized bedrooms, a family bathroom with shower, and a separate WC.
Externally, the property boasts a beautifully maintained rear garden, offering exceptional outdoor space. Off-road parking for two cars and a garage. Offered with no onward chain, a viewing is highly recommended.
GENERAL REMARKS
VIEWING MICKLEGATE
All viewing is strictly by prior appointment with the sole selling agents, Hudson Moody. Please contact our offices at 58, Micklegate, York, YO1 6LF. Telephone (01904) 650 650.
FIXTURES AND FITTINGS
All fixtures and fittings are specifically excluded from the sale unless they are mentioned in the particulars of sale.
LOCATION
Situated in a highly desirable area, a short distance from Tadcaster Road and with easy access to York city centre, walks on The Knavesmire, local shops and conveniences and the A64 that feeds to the motorway network.
SERVICES
Mains supplies of water, electricity and drainage. Gas fired central heating.
LOCAL AUTHORITY YORK
City of York Council, West Offices, Station Rise, York, YO1 6GA. Telephone 01904 551550.
OFFER PROCEDURE
Before contacting a Building Society, Bank or Solicitor you should make your offer to the office dealing with the sale, as any delay may result in the sale being agreed to another purchaser, thus incurring unnecessary costs. Under the Estate Agency Act 1991, you will be required to provide us with financial information in order to verify your position, before we can recommend your offer to the vendor. We will also require proof of identification in order to adhere to Money Laundering Regulations.
ANTI MONEY LAUNDERING COMPLIANCE
We are legally required to conduct Anti-Money Laundering (AML) checks on all purchasers and sellers. These checks become mandatory once a seller accepts an offer on a property (subject to contract).
AML checks are valid for six months from the date of completion. If your transaction does not proceed and you submit an offer on another property more than six months later, or if your existing AML check is more than six months old at the time of a new offer, you will be required to complete and pay for a new check.
We appoint HIPLA as our compliance partner to carry out these checks on our behalf. Once your offer has been accepted (subject to contract), HIPLA will contact you directly to complete a secure electronic verification process.
A non-refundable fee of £30 + VAT per purchaser is payable for the AML check. This fee must be paid before we can issue the Memorandum of Sale to the solicitors. The fee is non-refundable in all circumstances.
Hudson Moody receives service credits from HIPLA which may be used against other services, in recognition of facilitating the checks and undertaking associated administrative compliance duties.
Loading... Please wait.
Loading... Please wait.