Moorcroft Road, Woodthorpe, York YO24 2RG
Guide Price £325,000
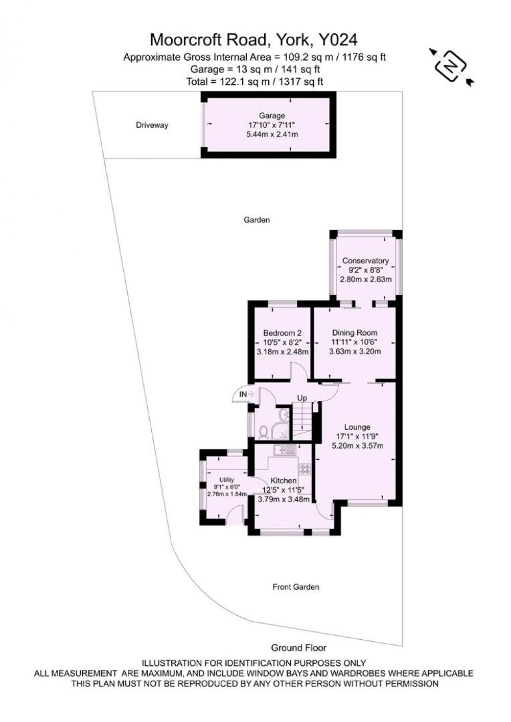
We are pleased to offer this well presented semi-detached chalet style house situated in a quiet location in the popular Woodthorpe area of York. The house is situated on a large corner plot with plenty of scope for extending. It has lawned gardens, a single garage and off street parking.
The entrance at the front of the property takes you into the utility area with work top and plumbing for a washing machine, before you enter the well equipped kitchen with a new integral oven, gas hob and extractor hood. From the kitchen you step into the 17ft living room continuing through an archway into the dining area and the conservatory beyond, all of which provides an excellent entertaining space with an electric fire in the living area and sliding patio doors into the conservatory. To the side of the living area is a side entrance hall with shower room and downstairs bedroom.
On the first floor you will find a two well proportioned bedrooms, both of which are served by the house bathroom.
The property benefits from new carpets and blinds throughout and a positive input ventilation system. There are generous mature lawned gardens to front and rear with various patio areas and a variety of specimen shrubs. There is a gate at the end of the garden giving access to the garage and parking area.
GENERAL REMARKS
VIEWING
All viewing is strictly by prior appointment with the sole selling agents, Hudson Moody. Please contact our offices at 58, Micklegate, York, YO1 6LF.
FIXTURES AND FITTINGS
All fixtures and fittings are specifically excluded from the sale unless they are mentioned in the particulars of sale.
LOCATION
Situated in a popular residential location with nearby local shops and easy access to York city centre and the A64 serving the motorway network.
SERVICES
Mains supplies of water, electricity and drainage. Gas fired central heating.
LOCAL AUTHORITY YORK
City of York Council, West Offices, Station Rise, York, YO1 6GA. Telephone 01904 551550.
OFFER PROCEDURE
Before contacting a Building Society, Bank or Solicitor you should make your offer to the office dealing with the sale, as any delay may result in the sale being agreed to another purchaser, thus incurring unnecessary costs. Under the Estate Agency Act 1991, you will be required to provide us with financial information in order to verify your position, before we can recommend your offer to the vendor. We will also require proof of identification in order to adhere to Money Laundering Regulations.
Loading... Please wait.
Loading... Please wait.