Nunmill Street, York, YO23 1NU
Guide Price £375,000
An updated and beautifully presented two-bedroom Victorian terraced house, situated in the popular 'Bishy Road' area of York. Ideally positioned for access to the city centre, railway station and nearby parade of shops and services on Bishopthorpe Road.
Situated just off from the ever-popular Bishopthorpe Road, a beautifully presented two-bedroom Victorian terrace on Nunmill Street, perfectly placed for enjoying the vibrant cafes, shops, and green spaces of the Bishopthorpe Road area, whilst also lying within easy access to York City Centre and railway station.
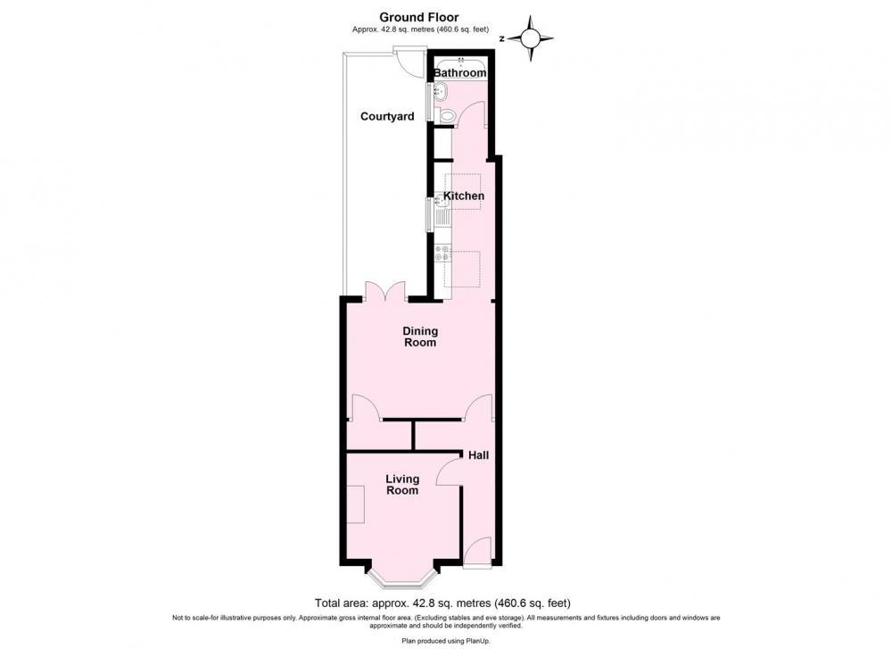
To the front, an enclosed forecourt leads to the front entrance and hallway, off which is the front reception room, complete with a bay window that floods the space with natural light. Beyond the central staircase lies a second reception room, ideal as a dining area or additional living space, with glazed patio doors leading out to a private rear courtyard.
The kitchen, accessed from the dining room, is fitted with a contemporary range of units and integrated appliances including an oven, gas hob with extractor, tall fridge freezer, and dishwasher—perfect for modern living. At the rear of the property is the ground floor bathroom.
To the first floor are two spacious double bedrooms, the principal of which benefits from its own en-suite bathroom.
GENERAL REMARKS
VIEWING
All viewing is strictly by prior appointment with the sole selling agents, Hudson Moody. Please contact our offices at 58, Micklegate, York, YO1 6LF.
FIXTURES AND FITTINGS
All fixtures and fittings are specifically excluded from the sale unless they are mentioned in the particulars of sale.
LOCATION
Situated a short distance from Bishopthorpe Road, shops and leisure areas. Riverside walks and easy access to city centre and railway station.
SERVICES
Mains supplies of water, electricity and drainage. Gas fired central heating.
LOCAL AUTHORITY YORK
City of York Council, West Offices, Station Rise, York, YO1 6GA. Telephone 01904 551550.
OFFER PROCEDURE
Before contacting a Building Society, Bank or Solicitor you should make your offer to the office dealing with the sale, as any delay may result in the sale being agreed to another purchaser, thus incurring unnecessary costs. Under the Estate Agency Act 1991, you will be required to provide us with financial information in order to verify your position, before we can recommend your offer to the vendor. We will also require proof of identification in order to adhere to Money Laundering Regulations.
ANTI MONEY LAUNDERING COMPLIANCE
We are legally required to conduct Anti-Money Laundering (AML) checks on all purchasers and sellers. These checks become mandatory once a seller accepts an offer on a property (subject to contract).
AML checks are valid for six months from the date of completion. If your transaction does not proceed and you submit an offer on another property more than six months later, or if your existing AML check is more than six months old at the time of a new offer, you will be required to complete and pay for a new check.
We appoint HIPLA as our compliance partner to carry out these checks on our behalf. Once your offer has been accepted (subject to contract), HIPLA will contact you directly to complete a secure electronic verification process.
A non-refundable fee of £30 + VAT per purchaser is payable for the AML check. This fee must be paid before we can issue the Memorandum of Sale to the solicitors. The fee is non-refundable in all circumstances.
Hudson Moody receives service credits from HIPLA which may be used against other services, in recognition of facilitating the checks and undertaking associated administrative compliance duties.
Loading... Please wait.
Loading... Please wait.