Pottery Lane, York, YO31 8SR
Guide Price £245,000
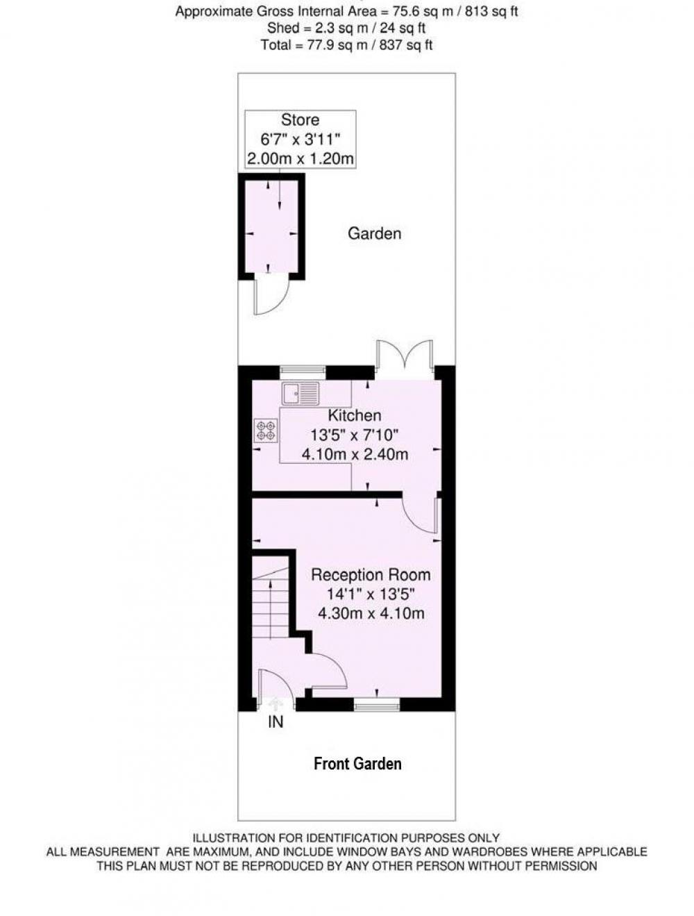
Tucked away off Dodsworth Avenue, on the outskirts of Huntington, is this surprisingly spacious mid-terraced house, ideal for first time buyers.
A neat lawned garden with hedge borders leads to a small entrance ,opening into a bright living room with a wide front-facing window. To the rear, a modern dining area with French doors connects to the garden, flowing into a well-equipped kitchen with integrated oven, ceramic hob, tall fridge freezer and space for appliances.
Upstairs are two bedrooms, a generous double with fitted cupboard and a smaller double, along with a modern bathroom with shower over bath. A further spacious loft room with dormer window and eaves storage occupies the top floor.
The rear garden features a decked patio, lawn, brick-built store and side access to the front. On street parking is available.
GENERAL REMARKS
VIEWING
All viewing is strictly by prior appointment with the sole selling agents, Hudson Moody. Please contact our offices at 58, Micklegate, York, YO1 6LF.
FIXTURES AND FITTINGS
All fixtures and fittings are specifically excluded from the sale unless they are mentioned in the particulars of sale.
LOCATION
The property is situated in a quiet residential road off Dodsworth Avenue and within easy reach of York city centre and Monks Cross Retail Park.
SERVICES
Mains supplies of water, electricity and drainage. Gas fired central heating.
LOCAL AUTHORITY YORK
City of York Council, West Offices, Station Rise, York, YO1 6GA. Telephone 01904 551550.
OFFER PROCEDURE
Before contacting a Building Society, Bank or Solicitor you should make your offer to the office dealing with the sale, as any delay may result in the sale being agreed to another purchaser, thus incurring unnecessary costs. Under the Estate Agency Act 1991, you will be required to provide us with financial information in order to verify your position, before we can recommend your offer to the vendor. We will also require proof of identification in order to adhere to Money Laundering Regulations.
ANTI MONEY LAUNDERING COMPLIANCE
We are legally required to conduct Anti-Money Laundering (AML) checks on all purchasers and sellers. These checks become mandatory once a seller accepts an offer on a property (subject to contract).
AML checks are valid for six months from the date of completion. If your transaction does not proceed and you submit an offer on another property more than six months later, or if your existing AML check is more than six months old at the time of a new offer, you will be required to complete and pay for a new check.
We appoint HIPLA as our compliance partner to carry out these checks on our behalf. Once your offer has been accepted (subject to contract), HIPLA will contact you directly to complete a secure electronic verification process.
A non-refundable fee of £30 + VAT per purchaser is payable for the AML check. This fee must be paid before we can issue the Memorandum of Sale to the solicitors. The fee is non-refundable in all circumstances.
Hudson Moody receives service credits from HIPLA which may be used against other services, in recognition of facilitating the checks and undertaking associated administrative compliance duties.
Loading... Please wait.
Loading... Please wait.