Redwood Drive, Haxby, York, YO32 3GF
Guide Price £625,000
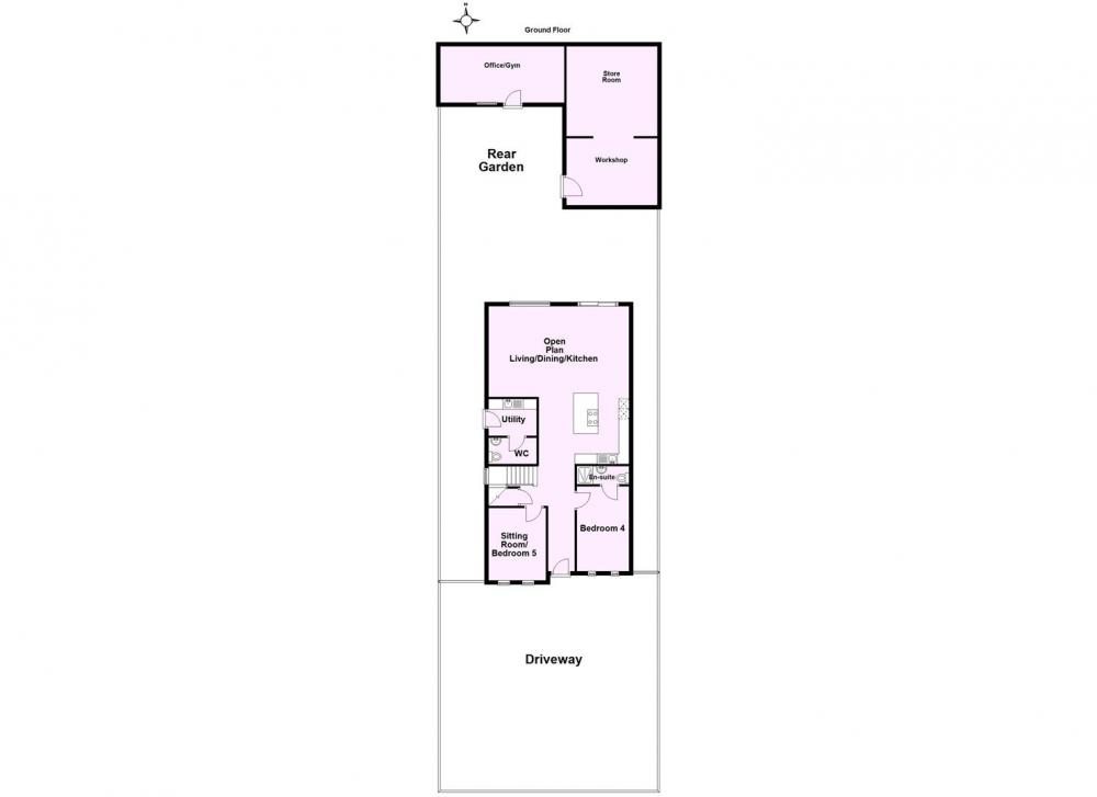
Redwood House is an attractive new build detached family home, situated in a highly sought after cul-de-sac, with an amazing open plan kitchen / dining / living space and a separate home office / studio in the garden. The property is ideally located to access the village amenities and highly regarded local schools.
Offered for sale with no onward chain, the accommodation is finished to a high standard and has over 1,600 sq ft of flexible living space, arranged over two floors.
Upon entering the property through a frosted glazed door, you are greeted by a welcoming hallway that has stairs leading to the first floor, a storage cupboard and opens to a spacious, open plan kitchen / living / dining space. The kitchen area has bespoke fitted units, with integrated appliances, a central island with breakfast bar and white granite worktops. The living / dining area has doors opening to the rear garden and a feature floor to ceiling window, allowing light to flood into the room. Accessed off the kitchen is a utility room, with a door leading to the side of the property and a guest WC. Completing the ground floor accommodation which has underfloor heating throughout, is a sitting / family room and a ground floor bedroom with en-suite shower room.
A first floor landing serves three double bedrooms, the main bedroom has an en-suite shower room and walk-in wardrobe and there is also the main house bathroom.
Externally, the property is approached by a gravelled driveway providing off-road parking for four vehicles. Side gated access opens to an enclosed garden laid mainly to lawn, with patio seating area, a home office / studio and two workshops.
We strongly recommend an early viewing to fully appreciate the accommodation and location on offer.
GENERAL REMARKS
VIEWING NORTH OF YORK
All viewing is strictly by prior appointment with the sole selling agents, Hudson Moody. Please contact our offices at 58, Micklegate, York, YO1 6LF or The Green, Poppleton, York, YO26 6DF. Telephone (01904) 600 000.
FIXTURES & FITTINGS
All fixtures and fittings are specifically excluded from the sale unless they are mentioned in the particulars of sale.
LOCATION
Conveniently situated near to all the shops and facilities available in Haxby & Wigginton and ideally located to access the city centre, outer ring road and A64 serving the motorway network.
SERVICES
Mains supplies of water, electricity and drainage. Gas fired central heating.
LOCAL AUTHORITY YORK
City of York Council, West Offices, Station Rise, York, YO1 6GA. Telephone 01904 551550.
OFFER PROCEDURE
Before contacting a Building Society, Bank or Solicitor you should make your offer to the office dealing with the sale, as any delay may result in the sale being agreed to another purchaser, thus incurring unnecessary costs. Under the Estate Agency Act 1991, you will be required to provide us with financial information in order to verify your position, before we can recommend your offer to the vendor. We will also require proof of identification in order to adhere to Money Laundering Regulations.
ANTI MONEY LAUNDERING COMPLIANCE
We are legally required to conduct Anti-Money Laundering (AML) checks on all purchasers and sellers. These checks become mandatory once a seller accepts an offer on a property (subject to contract).
AML checks are valid for six months from the date of completion. If your transaction does not proceed and you submit an offer on another property more than six months later, or if your existing AML check is more than six months old at the time of a new offer, you will be required to complete and pay for a new check.
We appoint HIPLA as our compliance partner to carry out these checks on our behalf. Once your offer has been accepted (subject to contract), HIPLA will contact you directly to complete a secure electronic verification process.
A non-refundable fee of £30 + VAT per purchaser is payable for the AML check. This fee must be paid before we can issue the Memorandum of Sale to the solicitors. The fee is non-refundable in all circumstances.
Hudson Moody receives service credits from HIPLA which may be used against other services, in recognition of facilitating the checks and undertaking associated administrative compliance duties.
Loading... Please wait.
Loading... Please wait.