Robin Grove, Holgate, York, YO24 4DR
Offers Over £300,000
A spacious three-bedroom mid-terrace home with a garden and off-street parking, ideally positioned at the head of a cul-de-sac with convenient access to the City of York. Offered with no onward chain.
A much-loved family home offered with no onward chain, occupied by the same owners for the past 50 years, now presenting an exciting opportunity for a new owner to make it their own. Situated in a convenient location close to local shops, schools and everyday amenities, with excellent transport links and easy access to York city centre.
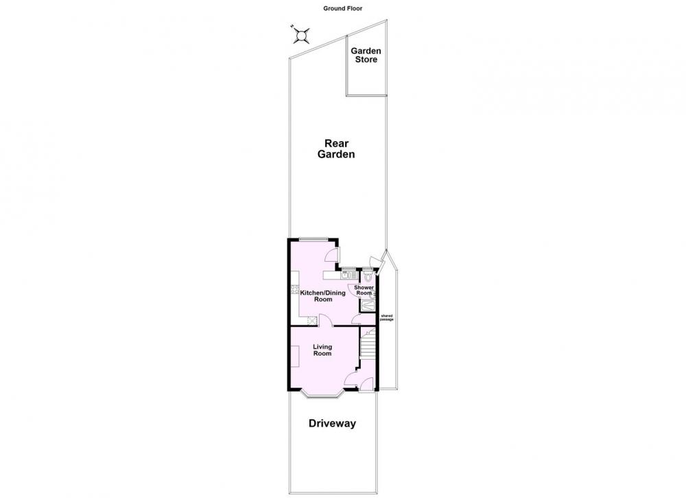
The ground floor offers a bright living room with a gas stove and timber fire surround. To the rear, an extended kitchen provides a good range of fitted units with integrated gas hob, extractor fan and gas oven, along with a side area with plumbing for a washing machine and dryer. The rear extension creates a spacious dining area and also features a downstairs shower room.
Upstairs comprises two double bedrooms, one with fitted wardrobes, a single bedroom and a modern shower room. The landing area offers useful space for a compact home office or study area.
Externally, the property benefits from a driveway offering off road parking. The enclosed rear garden is designed for low maintenance, featuring a flagged patio and lawn to the side, an outhouse, and a side gate providing access to a shared passageway, leading back to the front of the property.
GENERAL REMARKS
VIEWING
All viewing is strictly by prior appointment with the sole selling agents, Hudson Moody. Please contact our offices at 58, Micklegate, York, YO1 6LF.
FIXTURES AND FITTINGS
All fixtures and fittings are specifically excluded from the sale unless they are mentioned in the particulars of sale.
LOCATION
The house is situated in the popular Holgate area of York, just of Hamilton Drive East and provides easy access to the city centre and railway station.
SERVICES
Mains supplies of water, electricity and drainage.
New combi boiler fitted June 2024 (located in built in cupboard in front bedroom)
Partially boarded loft with ladder
LOCAL AUTHORITY YORK
City of York Council, West Offices, Station Rise, York, YO1 6GA. Telephone 01904 551550.
OFFER PROCEDURE
Before contacting a Building Society, Bank or Solicitor you should make your offer to the office dealing with the sale, as any delay may result in the sale being agreed to another purchaser, thus incurring unnecessary costs. Under the Estate Agency Act 1991, you will be required to provide us with financial information in order to verify your position, before we can recommend your offer to the vendor. We will also require proof of identification in order to adhere to Money Laundering Regulations.
ANTI MONEY LAUNDERING COMPLIANCE
We are legally required to conduct Anti-Money Laundering (AML) checks on all purchasers and sellers. These checks become mandatory once a seller accepts an offer on a property (subject to contract).
AML checks are valid for six months from the date of completion. If your transaction does not proceed and you submit an offer on another property more than six months later, or if your existing AML check is more than six months old at the time of a new offer, you will be required to complete and pay for a new check.
We appoint HIPLA as our compliance partner to carry out these checks on our behalf. Once your offer has been accepted (subject to contract), HIPLA will contact you directly to complete a secure electronic verification process.
A non-refundable fee of £30 + VAT per purchaser is payable for the AML check. This fee must be paid before we can issue the Memorandum of Sale to the solicitors. The fee is non-refundable in all circumstances.
Hudson Moody receives service credits from HIPLA which may be used against other services, in recognition of facilitating the checks and undertaking associated administrative compliance duties.
Loading... Please wait.
Loading... Please wait.