Aldreth Grove, Off Bishy Road, York, YO23 1LB
Guide Price £495,000
A unique end-terrace home positioned at the end of Aldreth Grove, enjoying attractive leafy and riverside views across Rowntree Park. The property has been run as a successful holiday let for many years, making it an appealing opportunity for investors, while also offering an ideal option for first-time buyers or those looking to downsize.
Aldreth Grove is conveniently located close to the highly regarded Bishopthorpe Road, where a community has developed around a variety of independent shops, cafés, and restaurants. The property also sits beside Rowntree Park and the River Ouse, offering peaceful riverside walks into York city centre.
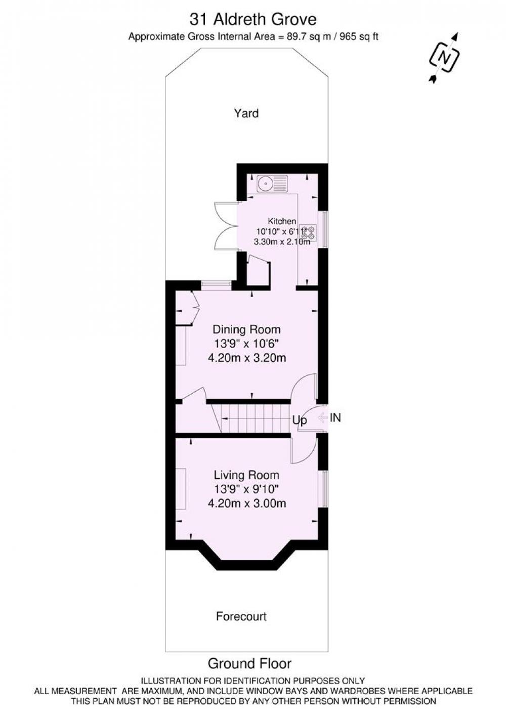
The property is entered via a gable end door leading into an entrance vestibule. To one side is a bright living room featuring a bay window, while to the other is the dining room, which benefits from useful understairs storage. From here, a doorway leads through to the kitchen, which is fitted with appliances. A patio doors opens out to the rear courtyard.
The first floor comprises two double bedrooms and the house bathroom, which includes a separate shower. Stairs then lead up to the loft conversion, creating an additional double bedroom.
Externally, the rear courtyard offers enough space for al fresco dining and enjoys a private outlook. The former rear access has been replaced with large gates, allowing the courtyard to be used for off-street parking if required. On-street permit parking is also available on the surrounding roads.
GENERAL REMARKS
ANTI MONEY LAUNDERING COMPLIANCE
We are legally required to conduct Anti-Money Laundering (AML) checks on all purchasers and sellers. These checks become mandatory once a seller accepts an offer on a property (subject to contract).
AML checks are valid for six months from the date of completion. If your transaction does not proceed and you submit an offer on another property more than six months later, or if your existing AML check is more than six months old at the time of a new offer, you will be required to complete and pay for a new check.
We appoint HIPLA as our compliance partner to carry out these checks on our behalf. Once your offer has been accepted (subject to contract), HIPLA will contact you directly to complete a secure electronic verification process.
A non-refundable fee of £30 + VAT per purchaser is payable for the AML check. This fee must be paid before we can issue the Memorandum of Sale to the solicitors. The fee is non-refundable in all circumstances.
Hudson Moody receives service credits from HIPLA which may be used against other services, in recognition of facilitating the checks and undertaking associated administrative compliance duties.
FIXTURES AND FITTINGS
All fixtures and fittings are specifically excluded from the sale unless they are mentioned in the particulars of sale.
LOCAL AUTHORITY YORK
City of York Council, West Offices, Station Rise, York, YO1 6GA. Telephone 01904 551550.
OFFER PROCEDURE
Before contacting a Building Society, Bank or Solicitor you should make your offer to the office dealing with the sale, as any delay may result in the sale being agreed to another purchaser, thus incurring unnecessary costs. Under the Estate Agency Act 1991, you will be required to provide us with financial information in order to verify your position, before we can recommend your offer to the vendor. We will also require proof of identification in order to adhere to Money Laundering Regulations.
SERVICES
Mains supplies of water, electricity and drainage. Gas fired central heating.
VIEWING MICKLEGATE
All viewing is strictly by prior appointment with the sole selling agents, Hudson Moody. Please contact our offices at 58, Micklegate, York, YO1 6LF. Telephone (01904) 650 650.
Loading... Please wait.
Loading... Please wait.