Allerton Drive, Nether Poppleton, York YO26 6NL
Guide Price £350,000
Set in the heart of Nether Poppleton is this traditional THREE BEDROOM SEMI-DETACHED HOUSE that is offered for sale with NO ONWARD CHAIN and offers generous accommodation
Nether Poppleton is situated approximately 4 miles from York city centre with excellent communication links by road and rail with easy access to the outer ring road and motorway network.
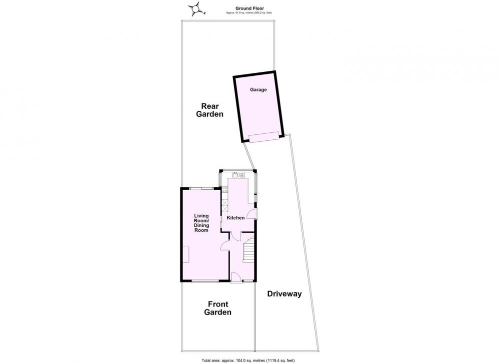
A lawned front garden and driveway welcome you to the house where you enter a good sized reception hall with staircase and doors off to the open plan living and dining room. The room is light and airy having a wide picture window overlooking the front garden, whilst a sliding glazed door gives access to the rear garden. There is ample space for both a lounge and dining suite with a semi-archway dividing the two rooms. The kitchen lies to the rear of the house and offers a good range of light fronted units with integral oven, gas hob and extractor fan together with plumbing for an under counter washing machine. There is also a door giving access to the coal house.
The first floor offers two good sized double bedrooms and a smaller room which are all served by the house bathroom with shower and screen over the bath.
Outside there is parking for a number of cars on the driveway that leads to a single detached garage and the secluded lawned rear garden with side borders and a small vegetable area.
Towards the end of Allerton Drive there is an excellent parade of local shops, whilst Upper Poppleton has a community leisure area, supermarket, surgeries, pubs, primary school and a railway station with trains to York, Harrogate and Leeds. The village is also close to the outer ring road that provides access to the motorway network, Harrogate and York.
GENERAL REMARKS
VIEWING
All viewing is strictly by prior appointment with the sole selling agents, Hudson Moody. Please contact our offices at The Green, Poppleton, York, YO26 6DF. Alternatively our head office at 58, Micklegate, York, YO1 6LF.
FIXTURES AND FITTINGS
All fixtures and fittings are specifically excluded from the sale unless they are mentioned in the particulars of sale.
LOCATION
Situated in the heart of a popular and sought after village with local facilities and easy access to York and motorway network.
SERVICES
Mains supplies of water, electricity and drainage. Gas fired central heating.
LOCAL AUTHORITY YORK
City of York Council, West Offices, Station Rise, York, YO1 6GA. Telephone 01904 551550.
OFFER PROCEDURE
Before contacting a Building Society, Bank or Solicitor you should make your offer to the office dealing with the sale, as any delay may result in the sale being agreed to another purchaser, thus incurring unnecessary costs. Under the Estate Agency Act 1991, you will be required to provide us with financial information in order to verify your position, before we can recommend your offer to the vendor. We will also require proof of identification in order to adhere to Money Laundering Regulations.
ANTI MONEY LAUNDERING COMPLIANCE
We are legally required to conduct Anti-Money Laundering (AML) checks on all purchasers and sellers. These checks become mandatory once a seller accepts an offer on a property (subject to contract).
AML checks are valid for six months from the date of completion. If your transaction does not proceed and you submit an offer on another property more than six months later, or if your existing AML check is more than six months old at the time of a new offer, you will be required to complete and pay for a new check.
We appoint HIPLA as our compliance partner to carry out these checks on our behalf. Once your offer has been accepted (subject to contract), HIPLA will contact you directly to complete a secure electronic verification process.
A non-refundable fee of £30 + VAT per purchaser is payable for the AML check. This fee must be paid before we can issue the Memorandum of Sale to the solicitors. The fee is non-refundable in all circumstances.
Hudson Moody receives service credits from HIPLA which may be used against other services, in recognition of facilitating the checks and undertaking associated administrative compliance duties.
Loading... Please wait.
Loading... Please wait.