Ashmeade Close, Woodthorpe, York, YO24 2YB
Guide Price £440,000
A well presented, detached family home. Occupying a corner plot with open fields to the rear. Situated in the sought after area of Woodthorpe, lying to the South West of York
Occupying a private, corner position within a quiet cul-de-sac is this four bedroom detached home. Perfect for growing families looking for a great location adjacent to open fields, plenty of space, and a wealth of amenities close by.
Situated just off Alness Drive, in the sought after residential area of Woodthorpe, it is within easy walking distance of amenities, including Acomb Wood, shops, doctors, dentist and independent cafes and eateries. York City centre, the Knavesmire and the A64 are also within a short drive.
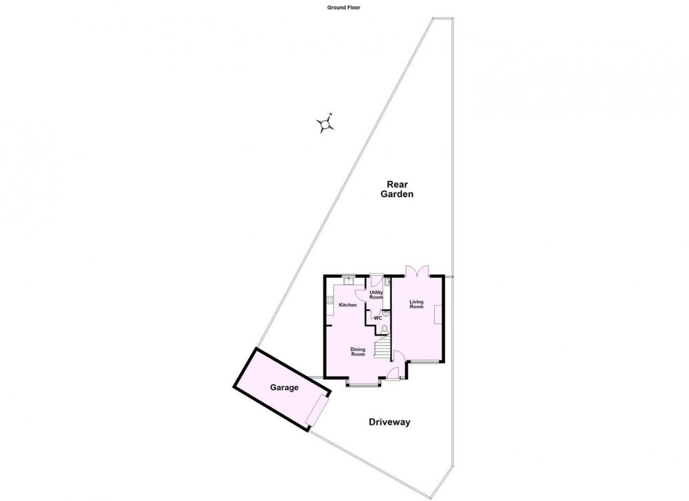
The internal accommodation offers an open plan kitchen dining room including integral oven, hob and dishwasher. In addition there is a useful separate utility room and WC. The living room is generous in size and features a electric fire and double doors leading out to the patio.
To the first floor, there are four well proportioned bedrooms, the principal with en-suite shower room, together with a family bathroom with shower over bath.
Externally, mature hedges provide privacy to the well maintained garden and patio seating area. There is a detached garage and ample space for parking.
Viewing is highly recommended.
GENERAL REMARKS
LOCATION
Situated in a quiet cul-de -sac in the popular residential area of Woodthorpe, lying to the South-West of York. Within easy access of amenities, York City Centre and the A64
FIXTURES AND FITTINGS
All fixtures and fittings are specifically excluded from the sale unless they are mentioned in the particulars of sale.
SERVICES
Mains supplies of water, electricity and drainage. Gas fired central heating.
LOCAL AUTHORITY YORK
City of York Council, West Offices, Station Rise, York, YO1 6GA. Telephone 01904 551550.
VIEWING MICKLEGATE
All viewing is strictly by prior appointment with the sole selling agents, Hudson Moody. Please contact our offices at 58, Micklegate, York, YO1 6LF. Telephone (01904) 650 650.
OFFER PROCEDURE
Before contacting a Building Society, Bank or Solicitor you should make your offer to the office dealing with the sale, as any delay may result in the sale being agreed to another purchaser, thus incurring unnecessary costs. Under the Estate Agency Act 1991, you will be required to provide us with financial information in order to verify your position, before we can recommend your offer to the vendor. We will also require proof of identification in order to adhere to Money Laundering Regulations.
Loading... Please wait.
Loading... Please wait.