Beagle Croft, Stamford Bridge, York YO41 1BD
Offers In The Region Of £575,000
A FAMILY SIZED EXTENDED property; enjoying LOVELY OPEN VIEWS over surrounding countryside. Complimented by DOUBLE GARAGE plus EXTENSIVE off road parking. NO ONWARD CHAIN. *** See Drone Video ***
GENERAL REMARKS
This lovely family property has been home to the current owners for over 20 years and positioned on a large corner plot within a small cul-de-sac within this well regarded historic village.
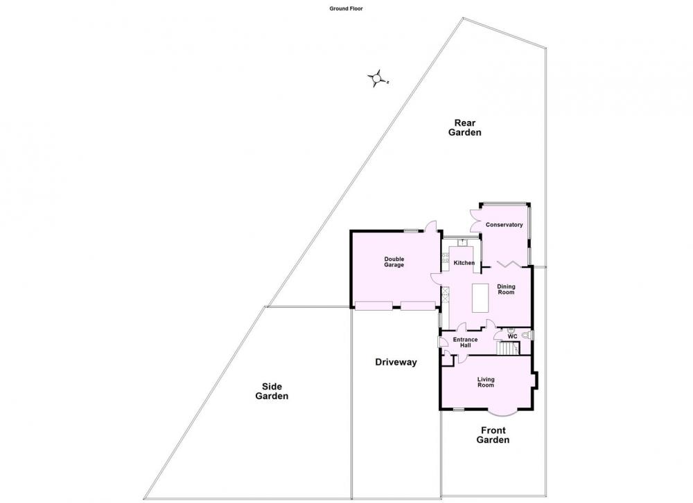
The ground floor accommodation comprises: a welcoming sized side entrance hall with coats cupboard and adjacent WC; plus Oak engineered flooring which continues through to the social hub of the property; an impressive 'Open Plan' kitchen diner with conservatory beyond access by bi-fold doors and enjoying under floor heating. The kitchen diner includes a central island with breakfast bar, granite tops, double oven, microwave, electric hob with extractor over, integral dishwasher, wine fridge, and Belfast sink with garden views; plus underfloor heating. Integral garage access with plumbing for washing machine and space for dryer. To the front of the property is a noticeably light living room with bay window and separate arch window plus multi-fuel burning stove set on a brick hearth.
1st floor accommodation: a generous sized landing provides access to five large bedrooms including extra-large main bedroom which enjoys a modern en-suite with bath and separate double width shower cubicle, plus extensive fitted wardrobes, and lovely countryside views. The 1st floor also has a contemporary house shower room plus an additional bedroom with modern en-suite shower room. Airing cupboard with hot water cylinder.
Outside: the property is approached via a double width block paved driveway which provides space for approx 5-6 vehicles; with an integral double garage beyond with twin electric roller doors plus EV charging point. A paved timber gated pathway links front and rear. There are front and rear lawns which include a south westerly facing sun paved patio enclosed by timber fenced boundaries, including raised timber encased vegetable beds. The front lawn includes a plum and pear tree. Garden storage shed to the side of the property. Gazebo with electricity and heaters plus roll-up sides.
In summary: a particularly spacious property that would suit larger families or those seeking multi-generational living.
VIEWING
All viewing is strictly by prior appointment with the sole selling agents, Hudson Moody. Please contact our personal agent Alex McClean.
LOCATION
Stamford Bridge is a village with excellent local amenities and strong community spirit including in particular a highly regarded local primary and infants school, diverse sports clubs, shops, doctors and dental surgery, 'No 10' Cafe Bar & Bistro, Indian restaurant and deli. The number 10 bus stop to take you into York is only a short walk away. City of York 8 miles. Malton 12 miles. Conveniently placed for Leeds & other commuter towns via the A166 & A64 dual carriageway.
AMENITIES
*oil gas central heating - boiler located in the garage (mains gas is available in the street)
*uPVC double glazed windows
*access hatch to laddered loft space on the first floor landing - part boarded, part insulated with electric lighting
LOCAL AUTHORITY
East Riding of Yorkshire Council, County Hall, Cross Street, Beverley HU17 9BA
OFFER PROCEDURE
Before contacting a Building Society, Bank or Solicitor you should make your offer to the office dealing with the sale, as any delay may result in the sale being agreed to another purchaser, thus incurring unnecessary costs. Under the Estate Agency Act 1991, you will be required to provide us with financial information in order to verify your position, before we can recommend your offer to the vendor. We will also require proof of identification in order to adhere to Money Laundering Regulations.
ANTI MONEY LAUNDERING COMPLIANCE
We are legally required to conduct Anti-Money Laundering (AML) checks on all purchasers and sellers. These checks become mandatory once a seller accepts an offer on a property (subject to contract).
AML checks are valid for six months from the date of completion. If your transaction does not proceed and you submit an offer on another property more than six months later, or if your existing AML check is more than six months old at the time of a new offer, you will be required to complete and pay for a new check.
We appoint HIPLA as our compliance partner to carry out these checks on our behalf. Once your offer has been accepted (subject to contract), HIPLA will contact you directly to complete a secure electronic verification process.
A non-refundable fee of £30 + VAT per purchaser is payable for the AML check. This fee must be paid before we can issue the Memorandum of Sale to the solicitors. The fee is non-refundable in all circumstances.
Hudson Moody receives service credits from HIPLA which may be used against other services, in recognition of facilitating the checks and undertaking associated administrative compliance duties.
Loading... Please wait.
Loading... Please wait.