Belle Vue Street, York, YO10 5AY
Offers In Excess Of £650,000
A beautifully presented Victorian terrace home, with a large, enviable garden. Also benefitting from a separate two storey garden house within the plot.
Situated on the highly sought-after, Belle Vue Street is this spacious Victorian terrace home. Complete with plenty of living space, an open plan kitchen dining room and three double bedrooms, this light and welcoming home has everything you could want from a period home. Additionally, it benefits from a unique, two-storey garden house to the rear of the garden providing an excellent opportunity for family or guest accommodation or home working.
Quietly set back from Heslington Road, Belle Vue Street lies just a short walk from York city centre, allowing for quiet yet convenient living. There are independent cafes within walking distance and York University is just over a mile away. The area also benefits from highly regarded local schools such as Lord Deramore's primary school and Fulford Secondary School.
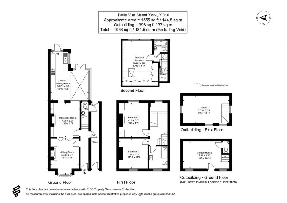
The ground floor accommodation boasts a beautifully appointed living through dining room, with dividing folding doors, before flowing seamlessly to a bright and airy kitchen dining room to the rear, enjoying views over the garden. In addition there is also a ground floor utility with WC.
To the first floor, there are two double bedrooms and the family bathroom.
Finally, a third, double bedroom, with en-suite, occupies the second floor and offers plenty of eaves storage.
Externally, the property has a most enviable rear garden, with lawn, planted borders and a patio seating area before leading to a unique two-storey heated garden house, with W.C. Conveniently, there is also a side passage allowing independent access from the front to the back of the house, as well as providing valuable, locked, covered space for additional storage, bikes etc.
On street parking is available
Viewing is highly recommended to appreciate the generous size of the plot, and the spacious feel throughout this lovely home.
GENERAL REMARKS
LOCATION
Belle Vue Street is situated, off Heslington Road, lying to the South of the city. Conveniently located within walking distance of the city, and within easy reach of York University, A19 and the A64
FIXTURES AND FITTINGS
All fixtures and fittings are specifically excluded from the sale unless they are mentioned in the particulars of sale.
SERVICES
Mains supplies of water, electricity and drainage. Gas fired central heating.
LOCAL AUTHORITY YORK
City of York Council, West Offices, Station Rise, York, YO1 6GA. Telephone 01904 551550.
VIEWING MICKLEGATE
All viewing is strictly by prior appointment with the sole selling agents, Hudson Moody. Please contact our offices at 58, Micklegate, York, YO1 6LF. Telephone (01904) 650 650.
OFFER PROCEDURE
Before contacting a Building Society, Bank or Solicitor you should make your offer to the office dealing with the sale, as any delay may result in the sale being agreed to another purchaser, thus incurring unnecessary costs. Under the Estate Agency Act 1991, you will be required to provide us with financial information in order to verify your position, before we can recommend your offer to the vendor. We will also require proof of identification in order to adhere to Money Laundering Regulations.
ANTI MONEY LAUNDERING COMPLIANCE
We are legally required to conduct Anti-Money Laundering (AML) checks on all purchasers and sellers. These checks become mandatory once a seller accepts an offer on a property (subject to contract).
AML checks are valid for six months from the date of completion. If your transaction does not proceed and you submit an offer on another property more than six months later, or if your existing AML check is more than six months old at the time of a new offer, you will be required to complete and pay for a new check.
We appoint HIPLA as our compliance partner to carry out these checks on our behalf. Once your offer has been accepted (subject to contract), HIPLA will contact you directly to complete a secure electronic verification process.
A non-refundable fee of £30 + VAT per purchaser is payable for the AML check. This fee must be paid before we can issue the Memorandum of Sale to the solicitors. The fee is non-refundable in all circumstances.
Hudson Moody receives service credits from HIPLA which may be used against other services, in recognition of facilitating the checks and undertaking associated administrative compliance duties.
Loading... Please wait.
Loading... Please wait.