Bootham Crescent, Bootham, York, YO30 7AJ
Guide Price £750,000
*PROCEEDABLE PARTIES ONLY - BEST AND FINAL OFFERS BY 12PM ON TUESDAY 31ST MARCH*
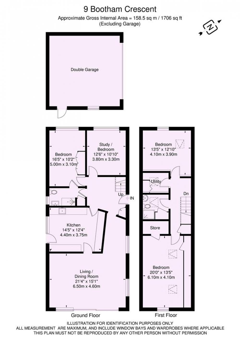
A unique detached dormer bungalow with ample off-road parking and large garden, situated in a highly sought-after location just off Bootham and close to York city centre. Boasting flexible, spacious living, the ground floor is also wheelchair-friendly, offering comfort, accessibility, and effortless day-to-day convenience.
This bright and well-presented home offers versatile living spaces, with up to four bedrooms that can also serve as home offices, playrooms, or extra reception areas—perfect for modern family life, multi-generational living or flexible working from home.
The ground floor welcomes you with a light-filled hallway that leads into a generous living and dining area overlooking the garden. The fitted kitchen offers plenty of space for appliances and flows seamlessly back to the entrance hallway. Two downstairs bedrooms—one currently used as a study—provide adaptable living options to suit modern family life, complemented by a modern shower room.
Upstairs, two spacious bedrooms include built-in storage for convenience alongside a second shower room and a separate area currently serving as a utility area.
Externally, the property continues to impress, boasting a beautifully maintained garden, perfect for relaxing or entertaining. Both the garden and kitchen offer access to a rear storage area with a durable plastic roof. At the front, there is generous off-road parking and a double garage providing excellent storage.
Set in a highly sought-after position just north of York city centre, the home is within easy reach of local amenities, picturesque riverside walks, and the historic heart of the city. It is also well placed for a number of highly regarded primary and secondary schools, including prestigious independent options such as St Peter’s and Bootham.
This is a rare opportunity to acquire a distinctive and adaptable home in a prime York location. Early viewing is highly recommended.
GENERAL REMARKS
VIEWING
All viewing is strictly by prior appointment with the sole selling agents, Hudson Moody. Please contact our offices at 58, Micklegate, York, YO1 6LF. Telephone (01904) 650 650.
FIXTURES AND FITTINGS
All fixtures and fittings are specifically excluded from the sale unless they are mentioned in the particulars of sale.
LOCATION
Located just off Bootham, one of York's most prestigious and sought-after areas. Just a short walk from York's city centre, plenty of amenities, the hospital, and nearby prestigious schools.
SERVICES
Mains supplies of water, electricity and drainage. Gas fired central heating.
LOCAL AUTHORITY YORK
City of York Council, West Offices, Station Rise, York, YO1 6GA. Telephone 01904 551550.
OFFER PROCEDURE
Before contacting a Building Society, Bank or Solicitor you should make your offer to the office dealing with the sale, as any delay may result in the sale being agreed to another purchaser, thus incurring unnecessary costs. Under the Estate Agency Act 1991, you will be required to provide us with financial information in order to verify your position, before we can recommend your offer to the vendor. We will also require proof of identification in order to adhere to Money Laundering Regulations.
ANTI MONEY LAUNDERING COMPLIANCE
We are legally required to conduct Anti-Money Laundering (AML) checks on all purchasers and sellers. These checks become mandatory once a seller accepts an offer on a property (subject to contract).
AML checks are valid for six months from the date of completion. If your transaction does not proceed and you submit an offer on another property more than six months later, or if your existing AML check is more than six months old at the time of a new offer, you will be required to complete and pay for a new check.
We appoint HIPLA as our compliance partner to carry out these checks on our behalf. Once your offer has been accepted (subject to contract), HIPLA will contact you directly to complete a secure electronic verification process.
A non-refundable fee of £30 + VAT per purchaser is payable for the AML check. This fee must be paid before we can issue the Memorandum of Sale to the solicitors. The fee is non-refundable in all circumstances.
Hudson Moody receives service credits from HIPLA which may be used against other services, in recognition of facilitating the checks and undertaking associated administrative compliance duties.
Loading... Please wait.
Loading... Please wait.