Broadway, Fulford, York, YO10 4JY
Chain Free £799,950
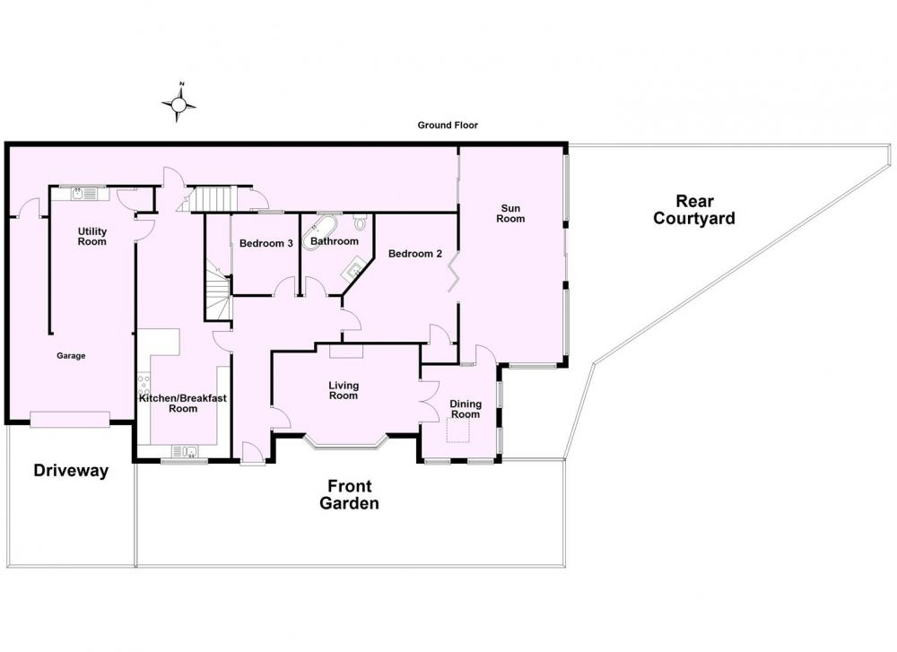
A beautifully presented dormer bungalow featuring three bedrooms and a self-contained one-bedroom apartment, ideally situated in the sought-after Fulford area of York. The property offers excellent access to York City centre and the University of York and falls within the Fulford School catchment. Offered with no onward chain.
Set behind secure electric gates, this beautifully presented dormer bungalow offers spacious and elegant living, perfectly suited for families or multi-generational living. The property features three generously sized bedrooms, plus a thoughtfully designed, self-contained one-bedroom apartment with private access, ideal for guests, extended family, or additional rental income.
Inside, the modern kitchen/breakfast room boasts high-quality units and integrated appliances. Two bright reception rooms include a welcoming living room and a formal dining area that opens onto a sunroom with underfloor heating, providing a comfortable year-round space overlooking the private courtyard garden — perfect for entertaining.
The ground floor offers two double bedrooms and a family bathroom complete with a luxurious whirlpool jacuzzi bath. Upstairs, you’ll find a spacious double bedroom, a dedicated study, and a contemporary luxury wet room featuring steam facilities.
Outside, the secluded courtyard garden provides a peaceful retreat, while the garage with electric doors and secure off-street parking on a walled driveway add convenience and security.
Located within the highly sought-after Fulford School catchment and with excellent access to York city centre and the University, this exceptional home combines contemporary comfort, character, and versatility. Offered with no onward chain.
GENERAL REMARKS
VIEWING
All viewing is strictly by prior appointment with the sole selling agents, Hudson Moody. Please contact our offices at 58, Micklegate, York, YO1 6LF.
FIXTURES AND FITTINGS
All fixtures and fittings are specifically excluded from the sale unless they are mentioned in the particulars of sale.
LOCATION
The property is situated in a convenient location within easy reach of the University of York campus and Fulford Road that leads to the city centre and outer ring road.
SERVICES
Mains supplies of water, electricity and drainage. Gas fired central heating.
LOCAL AUTHORITY YORK
City of York Council, West Offices, Station Rise, York, YO1 6GA. Telephone 01904 551550.
OFFER PROCEDURE
Before contacting a Building Society, Bank or Solicitor you should make your offer to the office dealing with the sale, as any delay may result in the sale being agreed to another purchaser, thus incurring unnecessary costs. Under the Estate Agency Act 1991, you will be required to provide us with financial information in order to verify your position, before we can recommend your offer to the vendor. We will also require proof of identification in order to adhere to Money Laundering Regulations.
ANTI MONEY LAUNDERING COMPLIANCE
We are legally required to conduct Anti-Money Laundering (AML) checks on all purchasers and sellers. These checks become mandatory once a seller accepts an offer on a property (subject to contract).
AML checks are valid for six months from the date of completion. If your transaction does not proceed and you submit an offer on another property more than six months later, or if your existing AML check is more than six months old at the time of a new offer, you will be required to complete and pay for a new check.
We appoint HIPLA as our compliance partner to carry out these checks on our behalf. Once your offer has been accepted (subject to contract), HIPLA will contact you directly to complete a secure electronic verification process.
A non-refundable fee of £30 + VAT per purchaser is payable for the AML check. This fee must be paid before we can issue the Memorandum of Sale to the solicitors. The fee is non-refundable in all circumstances.
Hudson Moody receives service credits from HIPLA which may be used against other services, in recognition of facilitating the checks and undertaking associated administrative compliance duties.
Loading... Please wait.
Loading... Please wait.