Buttercrambe, York YO41 1XU
Guide Price £895,000
A BEAUTIFULLY POSITIONED traditional COUNTRY PROPERTY featuring a main house, two one-bedroom holiday cottages, and a paddock (available for rent), all situated in a PICTURESQUE COUNTRYSIDE SETTING.
GENERAL REMARKS
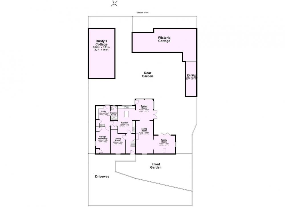
The current owner has lived at the property for the past 37 years and over time extended the house and renovated two former farm buildings, positioned to the rear of Orchard House. Rusty's Cottage and Wisteria Cottage have successfully been run as holiday lets for many years to provide an additional income stream. Both property's include exposed brickwork and beams plus their own southeasterly facing York Stone patios; enjoying lovely views over Aldby Park Estate pasture land.
Orchard House
Benefiting from being naturally light throughout; the accommodation offers multiple reception rooms for entertaining and family living.
Accommodation comprises: a welcoming sized entrance hall with Victorian style tiled floor -- living room with Jetmaster open fireplace set on a stone hearth plus solid wood flooring -- kitchen with adjacent family/breakfast room -- utility with adjoining wet room/shower room -- formal dining room -- garden room with electric under floor heating, impressive vaulted ceiling and bi-fold doors. -- The main hub of the property is the lovely 'open plan' fitted kitchen with offset family/breakfast room offering excellent sociable space, plus lovely views towards the garden and countryside backdrop. The kitchen includes a central island, Stanley Range oil boiler/cooker with double oven and twin hobs. Integral combi oven/microwave, dishwasher and pantry cupboard.
First Floor: 4 good sized bedrooms. The two front bedrooms share a Jack & Jill style bathroom. They look towards the grounds of Aldby Park. Main bedroom includes en-suite shower room plus a walk-in dressing room. A modern house bathroom includes a shower over the bath. Airing cupboard. The rear bedrooms enjoy both lovely open country and garden views.
Rusty's Cottage:
This cosy single storey cottage with vaulted ceilings has a wood burner, wooden floor and patio doors to a south facing seating area.
living/dining room + log burner + Oak flooring + French doors to garden -- kitchen with integrated appliances -- utility -- bedroom -- wet room.
Wisteria Cottage:
This single storey cottage has spacious rooms with open aspect overlooking the paddock and open fields. Also with vaulted ceilings and king post truss in the living/dining room -- pretty garden & two seating areas.
living/dining room + Jetmaster open fire in the living room + pine flooring -- kitchen with integrated appliances -- bedroom + en-suite WC --wet room with shower + WC.
Outside: the property is approached via a generous sized, iron gated tarmacadam driveway with stone sets for parking multiple vehicles with gentle slope up to a single integral garage. A separate stepped pedestrian path flanked by box hedging leads to the front entrance door. The main garden lies to the rear of the property which is beautifully presented and includes a feature pond; fruit trees including apple, plum and pear varieties; flanked by well stocked borders. There is also a large timber clad garden store and a brick built tool store plus two smaller brick constructed stores. Immediately to the rear of the property extensive York stone pathways include a patio dining area. Beyond the cottages is a rented paddock of approximate half acre currently housing Shetland ponies, sheep and hens enclosed by predominantly post and rail timber fencing.
VIEWING
All viewing is strictly by prior appointment with the sole selling agents, Hudson Moody. Please contact our personal agent Alex McClean
LOCATION
The property is situated in the small village of Buttercrambe, approximately 3 miles from Stamford Bridge and 10 miles from York and 10 miles from Malton. Stamford Bridge benefits from excellent local amenities and strong community spirit including in particular a highly regarded local primary and infants school, diverse sports clubs, shops, doctors and dental surgery, 'No 10' Cafe Bar & Bistro, Three Cups country pub and deli.
Buttercrambe is an attractive rural village with an 11th century church.
AMENITIES
*oil fired central heating
*Stanley Ranger oil cooker can be used for the central heating and hot water plus a seperate function for cooking when required
*private drainage system
*combination of uPVC double glazed windows and single glazed wood windows
*laddered loft from the first floor landing of Orchard House (part boarded with electric lighting)
LOCAL AUTHORITY
North Yorkshire Council, County Hall, Racecourse Lane, Northallerton, North Yorkshire, DL7 8AD
OFFER PROCEDURE
Before contacting a Building Society, Bank or Solicitor you should make your offer to the office dealing with the sale, as any delay may result in the sale being agreed to another purchaser, thus incurring unnecessary costs. Under the Estate Agency Act 1991, you will be required to provide us with financial information in order to verify your position, before we can recommend your offer to the vendor. We will also require proof of identification in order to adhere to Money Laundering Regulations.
ANTI MONEY LAUNDERING COMPLIANCE
We are legally required to conduct Anti-Money Laundering (AML) checks on all purchasers and sellers. These checks become mandatory once a seller accepts an offer on a property (subject to contract).
AML checks are valid for six months from the date of completion. If your transaction does not proceed and you submit an offer on another property more than six months later, or if your existing AML check is more than six months old at the time of a new offer, you will be required to complete and pay for a new check.
We appoint HIPLA as our compliance partner to carry out these checks on our behalf. Once your offer has been accepted (subject to contract), HIPLA will contact you directly to complete a secure electronic verification process.
A non-refundable fee of £30 + VAT per purchaser is payable for the AML check. This fee must be paid before we can issue the Memorandum of Sale to the solicitors. The fee is non-refundable in all circumstances.
Hudson Moody receives service credits from HIPLA which may be used against other services, in recognition of facilitating the checks and undertaking associated administrative compliance duties.
Loading... Please wait.
Loading... Please wait.