Chaloners Road, Dringhouses, York, YO24 2TB
Offers Over £315,000
**UNEXPECTEDLY REOFFERED BACK TO THE MARKET**
An immaculate semi detached home. Situated in the sought after residential area of Dringhouses, lying to the South West of York.
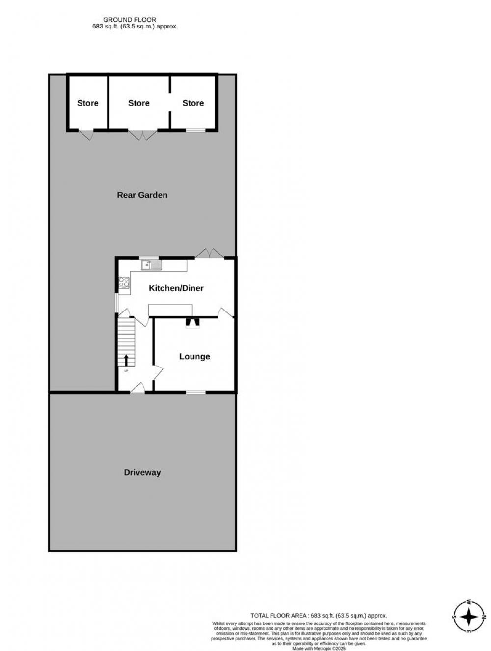
This immaculate semi detached home is beautifully presented throughout. Renovated to the highest of standards it offers an open plan kitchen dining room, three bedrooms, ample off street parking and a generous garden with insulated garden room.
Located on Chaloners Road, in Dringhouses, the area offers easy access to a wealth of local amenities including supermarkets, local Café, dentist and primary school and offers excellent commuter links being within easy reach of the ring road and A64.
The entrance hall welcomes you into the home and leads to the beautifully appointed living room complete with log burning stove and bespoke built in storage. The attention to detail shows in the luxury fixtures and fittings including radiators, oak internal doors and flooring.
The kitchen dining room is situated to the rear of the property and enjoys double doors onto the garden. The kitchen is sleek and contemporary in design, boasting quartz worktops, recessed lighting, integral oven, hob, and dishwasher.
To the first floor there are two generous double bedrooms, a third bedroom and the fully tiled, stylish bathroom with three piece suite
In summary, an ideal home for a growing family which offers practical living space, contemporary interior and a great sized garden. Viewing is highly recommended.
GENERAL REMARKS
LOCATION
Situated on Chaloners Road, in the sought after area of Dringhouses, lying to the South West of York city centre
SERVICES
Mains supplies of water, electricity and drainage. Gas fired central heating.
FIXTURES AND FITTINGS
All fixtures and fittings are specifically excluded from the sale unless they are mentioned in the particulars of sale.
LOCAL AUTHORITY YORK
City of York Council, West Offices, Station Rise, York, YO1 6GA. Telephone 01904 551550.
VIEWING MICKLEGATE
All viewing is strictly by prior appointment with the sole selling agents, Hudson Moody. Please contact our offices at 58, Micklegate, York, YO1 6LF. Telephone (01904) 650 650.
OFFER PROCEDURE
Before contacting a Building Society, Bank or Solicitor you should make your offer to the office dealing with the sale, as any delay may result in the sale being agreed to another purchaser, thus incurring unnecessary costs. Under the Estate Agency Act 1991, you will be required to provide us with financial information in order to verify your position, before we can recommend your offer to the vendor. We will also require proof of identification in order to adhere to Money Laundering Regulations.
ANTI MONEY LAUNDERING COMPLIANCE
We are legally required to conduct Anti-Money Laundering (AML) checks on all purchasers and sellers. These checks become mandatory once a seller accepts an offer on a property (subject to contract).
AML checks are valid for six months from the date of completion. If your transaction does not proceed and you submit an offer on another property more than six months later, or if your existing AML check is more than six months old at the time of a new offer, you will be required to complete and pay for a new check.
We appoint HIPLA as our compliance partner to carry out these checks on our behalf. Once your offer has been accepted (subject to contract), HIPLA will contact you directly to complete a secure electronic verification process.
A non-refundable fee of £30 + VAT per purchaser is payable for the AML check. This fee must be paid before we can issue the Memorandum of Sale to the solicitors. The fee is non-refundable in all circumstances.
Hudson Moody receives service credits from HIPLA which may be used against other services, in recognition of facilitating the checks and undertaking associated administrative compliance duties.
Loading... Please wait.
Loading... Please wait.