Church Lane, Dunnington, York, YO19 5QB
Offers Over £325,000
A traditional semi-detached family home with generous sized lawned gardens. Situated in the popular village of Dunnington within easy reach of York City Centre and York University.
GENERAL REMARKS
This three-bedroom home has been exceptionally well maintained and has previously been extended to create additional ground floor living space.
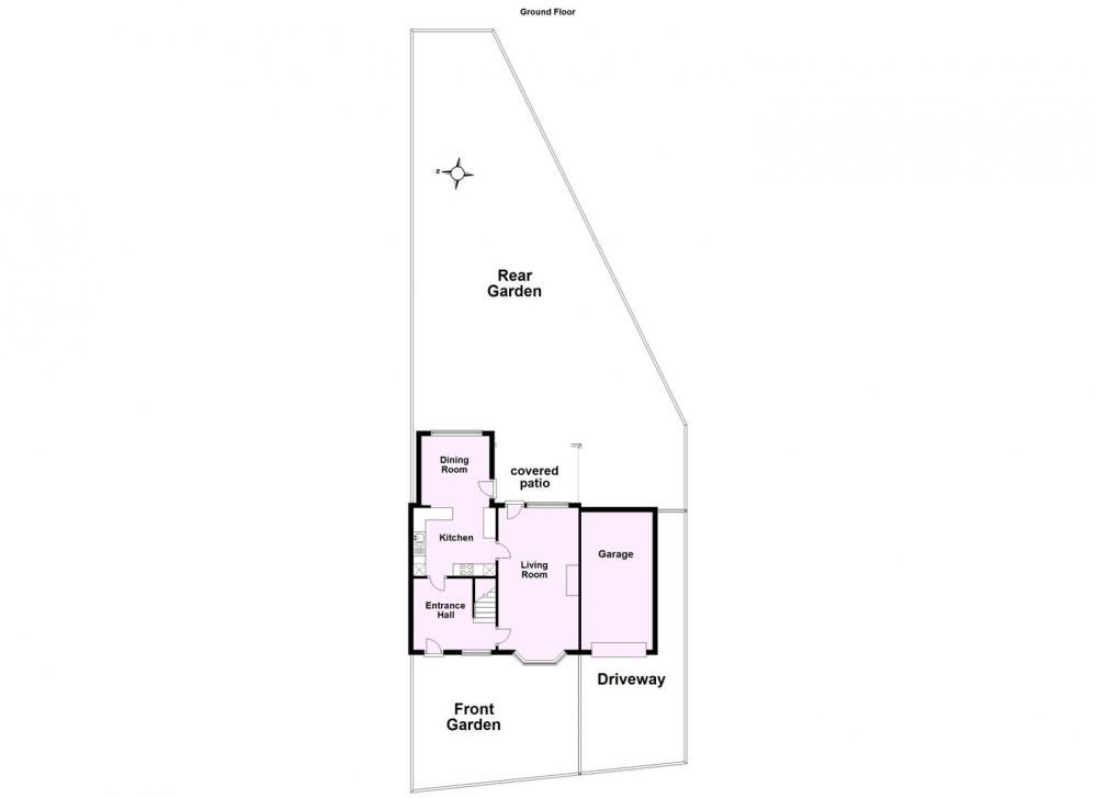
Complete with handy under-stairs storage, the welcoming entrance hall leads into a generous living room bathed in natural light. Along with a front elevation bay window and a decorative fireplace, the room enjoys a lovely garden outlook, with sliding French doors connecting the interior to a sheltered outdoor patio. At the rear, you'll find an impressive, well-proportioned kitchen-diner. The contemporary kitchen is fully equipped with an integrated double oven, electric hob, and space for a tall fridge-freezer, with plumbing ready for a washing machine.
To the first floor there are two double bedrooms and a further single bedroom (currently set up as an office) all served by the house bathroom which includes shower over the bath. Two of the bedrooms benefit from storage cupboards.
Outside: a generous sized lawned garden which includes a fir and conifer tree; are enclosed by timber fenced boundaries. To the side of the property is a garage with workbench and gated side path linking front and rear. To the front a paved driveway provides off street parking and low maintenance garden. Storm porch.
In summary: a well-positioned property located close to the local village Primary school and village shops; likely to appeal to a wide variety of buyers; in particular young families.
VIEWING
All viewing is strictly by prior appointment with the sole selling agents, Hudson Moody. Please contact our personal agent Alex McClean. Telephone (01904) 489906.
LOCATION
Dunnington is situated around 4 miles to the east of York City. The village is very popular and has a great community spirit with many local activities and amenities including: the Sports Club (cricket, football, squash, tennis and bowls teams), Scouts hut, pub, local church and a well-equipped play park with picnic area. There are a good range of local shops: bistro cafe, bakers, Costcutter (including Post office), an award winning Florist & newsagents. There are also two hairdressers, a doctors surgery and chemist plus sought after village Primary School. Fulford school catchment. Local village walks are in Hagg Wood located on the eastern edge of the village.
The property is conveniently located a short walk from local shops. Regular bus services operate from the village to the City of York and surrounding areas.
AMENITIES
*new heating system including air source heat pump and radiators installed in 2024
*uPVC double glazed windows
*loft access via loft ladder to boarded loft with electrical lighting
LOCAL AUTHORITY
City of York Council, West Offices, Station Rise, York, YO1 6GA. Telephone 01904 551550
OFFER PROCEDURE
Before contacting a Building Society, Bank or Solicitor you should make your offer to the office dealing with the sale, as any delay may result in the sale being agreed to another purchaser, thus incurring unnecessary costs. Under the Estate Agency Act 1991, you will be required to provide us with financial information in order to verify your position, before we can recommend your offer to the vendor. We will also require proof of identification in order to adhere to Money Laundering Regulations.
ANTI-MONEY LAUNDERING COMPLIANCE
We are legally required to conduct Anti-Money Laundering (AML) checks on all purchasers and sellers. These checks become mandatory once a seller accepts an offer on a property (subject to contract).
AML checks are valid for six months from the date of completion. If your transaction does not proceed and you submit an offer on another property more than six months later, or if your existing AML check is more than six months old at the time of a new offer, you will be required to complete and pay for a new check.
We appoint HIPLA as our compliance partner to carry out these checks on our behalf. Once your offer has been accepted (subject to contract), HIPLA will contact you directly to complete a secure electronic verification process.
A non-refundable fee of £30 + VAT per purchaser is payable for the AML check. This fee must be paid before we can issue the Memorandum of Sale to the solicitors. The fee is non-refundable in all circumstances.
Hudson Moody receives service credits from HIPLA which may be used against other services, in recognition of facilitating the checks and undertaking associated administrative compliance duties.
Loading... Please wait.
Loading... Please wait.