Westbank, 24 Church Street, Dunnington, York YO19 5PW
Guide Price £650,000
A fine CHARACTER cottage with BEAUTIFUL GARDENS located in one of the most desirable streets within this highly popular village.
GENERAL REMARKS
Well positioned; with lovely views along Church Street; a short stroll from both the local village church and pub, we offer a lovely character cottage believed to have built around the 1700's; subsequently extended over the years. The current owners have resided at the property for approaching 40 years. The exterior hides the accommodation within, which is packed full of character including many nooks and crannies, beamed ceilings, open fireplaces and lovely garden room.
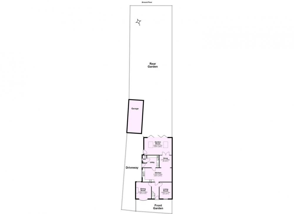
Steps lead up from a low maintenance front forecourt and front entrance door into a charming entrance hall which include ceiling beams, a handmade bespoke staircase and solid Oak flooring. To the front elevation of the property is the living room/snug with gas fireplace set on a tiled hearth and separate dining room with feature open fireplace. To the centre of the property is a spacious 'L' shaped kitchen breakfast room with adjacent snug which has French doors leading through to an impressive garden room. The garden room has a lovely, vaulted ceiling and benefits from Oak flooring with under floor heating, Velux windows, plus bi-fold doors enjoying garden views to both the patio and garden. The kitchen incorporates: granite worktops, double oven with electric hob and extractor over, plus space for a tall standing fridge freezer. Tiled flooring. Off the kitchen is a large utility room with adjacent WC, plus side access to the driveway.
1st floor: 4 bedrooms plus a modern house bathroom. The principal bedroom benefits from an en-suite shower room plus large box window enjoying views over the rear lawn. Three of the bedrooms benefit from fitted wardrobes and one of the front bedrooms features a stepped chimney breast.
Outside: a block paved driveway leads up to a detached single garage/workshop providing ample off-road parking spaces, which incorporates gated access linking front and rear. The front forecourt is paved and fronted by an attractive brick wall boundary. The main garden lies to the rear; south-westerly facing encompassing a rockery and long lawn flanked by well stocked borders set within a combination of timber fenced and hedged boundaries. Immediately to the rear of the property is an extensive York stone sun patio. There is an additional patio positioned to the rear of the garage with brick barbeque. Timber summerhouse.
In summary a charming period property located within an attractive road that is likely to appeal to families and garden lovers.
VIEWING
All viewing is strictly by prior appointment with the sole selling agents, Hudson Moody. Please contact our personal agent Alex McClean. Telephone (01904) 489906.
LOCATION
Dunnington is situated around 4 miles to the east of York City. The village is very popular and has a great community spirit with many local activities and amenities including: the Sports Club (cricket, football, squash, tennis and bowls teams), Scouts hut, pub, church and a well-equipped play park with picnic area. There are a good range of local shops: brunch cafe, bakers, Cafe, Costcutter (including Post office), an award winning Florist and newsagents. There are also two hairdressers, a doctors surgery and chemist plus sought after village Primary School. Fulford school catchment. Local village walks are in Hagg Wood located on the eastern edge of the village plus cycle paths and jogging routes (National Cycle Network Route 66).
The property is conveniently located close to the centre of the village and well placed for local amenities. Regular bus services operate from the village to the City of York and surrounding areas.
AMENITIES
*gas central heating - boiler installed approx 2023; positioned in the 4th bedroom cupboard
*double glazed windows
LOCAL AUTHORITY
City of York Council, West Offices, Station Rise, York, YO1 6GA. Telephone 01904 551550.
OFFER PROCEDURE
Before contacting a Building Society, Bank or Solicitor you should make your offer to the office dealing with the sale, as any delay may result in the sale being agreed to another purchaser, thus incurring unnecessary costs. Under the Estate Agency Act 1991, you will be required to provide us with financial information in order to verify your position, before we can recommend your offer to the vendor. We will also require proof of identification in order to adhere to Money Laundering Regulations.
ANTI MONEY LAUNDERING COMPLIANCE
We are legally required to conduct Anti-Money Laundering (AML) checks on all purchasers and sellers. These checks become mandatory once a seller accepts an offer on a property (subject to contract).
AML checks are valid for six months from the date of completion. If your transaction does not proceed and you submit an offer on another property more than six months later, or if your existing AML check is more than six months old at the time of a new offer, you will be required to complete and pay for a new check.
We appoint HIPLA as our compliance partner to carry out these checks on our behalf. Once your offer has been accepted (subject to contract), HIPLA will contact you directly to complete a secure electronic verification process.
A non-refundable fee of £30 + VAT per purchaser is payable for the AML check. This fee must be paid before we can issue the Memorandum of Sale to the solicitors. The fee is non-refundable in all circumstances.
Hudson Moody receives service credits from HIPLA which may be used against other services, in recognition of facilitating the checks and undertaking associated administrative compliance duties.
Loading... Please wait.
Loading... Please wait.