Cleveland Street, Holgate, York, YO24 4BS
Guide Price £325,000
A beautifully presented, three bedroom period terrace home. Situated within the desirable residential area of Holgate, a short distance of the train station and city centre.
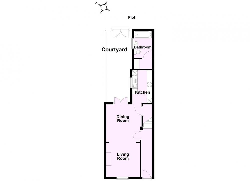
Located on Cleveland Street, in Holgate, is this three bedroom period home. Beautifully presented throughout, the owners have taken care in updating the property during their ownership. Offering an open plan living dining area, landscaped courtyard and stylish décor, it presents a ready to move into modern home yet retains much of its period charm.
Situated in the highly sought after residential area of Holgate. The area is perfect for first time buyers or young families, offering nearby community green space for residents to enjoy and being within easy reach of York train station and York city centre.
The entrance hall welcomes you into the main living area. A beautiful, light filled open plan space with log burning stove, double doors opening onto the courtyard garden and oak flooring which flows throughout.
The kitchen is situated to the rear of the property and boasts a range of modern units, integral oven and hob together with space for a washing machine. Beyond the kitchen is a contemporary bathroom with mosaic tiled floor.
To the first floor, there are two generous double bedrooms, the master featuring a built-in open wardrobe, and a third single bedroom or home office.
Externally, there is a charming, landscaped courtyard with double gates leading onto the service lane.
GENERAL REMARKS
VIEWING
All viewing is strictly by prior appointment with the sole selling agents, Hudson Moody. Please contact our offices at 58, Micklegate, York, YO1 6LF. Telephone (01904) 650 650.
FIXTURES AND FITTINGS
All fixtures and fittings are specifically excluded from the sale unless they are mentioned in the particulars of sale.
LOCATION
Set back from main roads in a traditional terraced residential street, the property offers easy access to the railway station and city centre.
SERVICES
Mains supplies of water, electricity and drainage. Gas fired central heating.
LOCAL AUTHORITY YORK
City of York Council, West Offices, Station Rise, York, YO1 6GA. Telephone 01904 551550.
OFFER PROCEDURE
Before contacting a Building Society, Bank or Solicitor you should make your offer to the office dealing with the sale, as any delay may result in the sale being agreed to another purchaser, thus incurring unnecessary costs. Under the Estate Agency Act 1991, you will be required to provide us with financial information in order to verify your position, before we can recommend your offer to the vendor. We will also require proof of identification in order to adhere to Money Laundering Regulations.
ANTI MONEY LAUNDERING COMPLIANCE
We are legally required to conduct Anti-Money Laundering (AML) checks on all purchasers and sellers. These checks become mandatory once a seller accepts an offer on a property (subject to contract).
AML checks are valid for six months from the date of completion. If your transaction does not proceed and you submit an offer on another property more than six months later, or if your existing AML check is more than six months old at the time of a new offer, you will be required to complete and pay for a new check.
We appoint HIPLA as our compliance partner to carry out these checks on our behalf. Once your offer has been accepted (subject to contract), HIPLA will contact you directly to complete a secure electronic verification process.
A non-refundable fee of £30 + VAT per purchaser is payable for the AML check. This fee must be paid before we can issue the Memorandum of Sale to the solicitors. The fee is non-refundable in all circumstances.
Hudson Moody receives service credits from HIPLA which may be used against other services, in recognition of facilitating the checks and undertaking associated administrative compliance duties.
Loading... Please wait.
Loading... Please wait.