Derwent Drive, Wheldrake, York YO19 6AL
Price £400,000
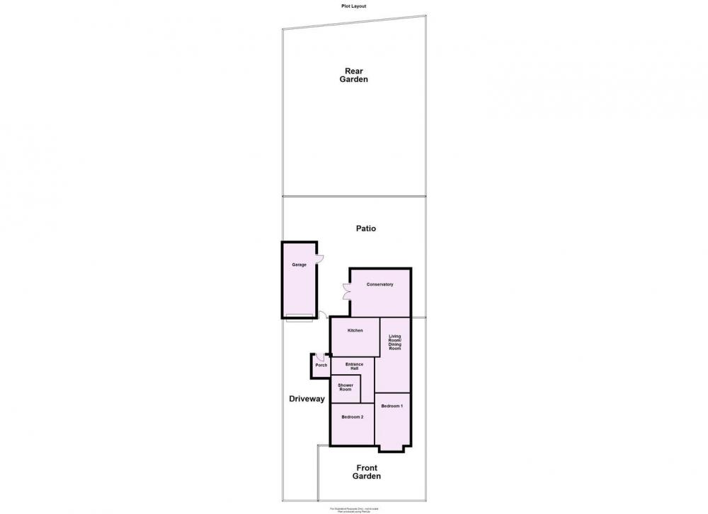
A surprisingly spacious two bedroom detached modern bungalow, exceptionally well presented with well maintained gardens, driveway and garage.
The property lies on the edge of the sought after village of Wheldrake that offers local amenities and public house, yet lies within easy reach of the A64 and York.
A beautifully presented, superb move-in ready two double bedroom bungalow offering spacious and versatile accommodation, enhanced with added comfort throughout.
A well-maintained lawned front garden and driveway provide off-street parking for up to three vehicles and lead to a welcoming entrance porch and hallway.
The bright, modern kitchen features a range of stylish fitted units with integrated appliances, including an eye-level oven/grill, ceramic hob, and the added luxury of underfloor heating. Double doors open into the impressive living room, complete with a feature fireplace, which flows seamlessly into a large conservatory currently used as a dining area. Also benefitting from underfloor heating, this exceptional additional space allows for comfortable year-round use while enjoying lovely views over the garden.
Both bedrooms are generous doubles with fitted cupboards, with the master bedroom further enhanced by an excellent range of fitted wardrobes. The second bedroom is presently arranged as a cosy snug, offering flexibility to suit a variety of needs. The immaculate bathroom is finished to a high standard and also benefits from underfloor heating.
To the rear, the south-facing landscaped garden features patio seating areas, a well-kept lawn, planted borders, and two timber sheds.
GENERAL REMARKS
VIEWING
All viewing is strictly by prior appointment with the sole selling agents, Hudson Moody. Please contact our offices at 58, Micklegate, York, YO1 6LF.
FIXTURES AND FITTINGS
All fixtures and fittings are specifically excluded from the sale unless they are mentioned in the particulars of sale.
LOCATION
The bungalow is situated on the edge of the rural village of Wheldrake yet lies within easy reach of York, the A64 outer ring road that feeds to the motorway network and also to Selby via the A19(S).
SERVICES
Mains supplies of water, electricity and drainage. Gas fired central heating.
Underfloor heating in kitchen, bathroom & conservatory.
LOCAL AUTHORITY YORK
City of York Council, West Offices, Station Rise, York, YO1 6GA. Telephone 01904 551550.
OFFER PROCEDURE
Before contacting a Building Society, Bank or Solicitor you should make your offer to the office dealing with the sale, as any delay may result in the sale being agreed to another purchaser, thus incurring unnecessary costs. Under the Estate Agency Act 1991, you will be required to provide us with financial information in order to verify your position, before we can recommend your offer to the vendor. We will also require proof of identification in order to adhere to Money Laundering Regulations.
ANTI MONEY LAUNDERING COMPLIANCE
We are legally required to conduct Anti-Money Laundering (AML) checks on all purchasers and sellers. These checks become mandatory once a seller accepts an offer on a property (subject to contract).
AML checks are valid for six months from the date of completion. If your transaction does not proceed and you submit an offer on another property more than six months later, or if your existing AML check is more than six months old at the time of a new offer, you will be required to complete and pay for a new check.
We appoint HIPLA as our compliance partner to carry out these checks on our behalf. Once your offer has been accepted (subject to contract), HIPLA will contact you directly to complete a secure electronic verification process.
A non-refundable fee of £30 + VAT per purchaser is payable for the AML check. This fee must be paid before we can issue the Memorandum of Sale to the solicitors. The fee is non-refundable in all circumstances.
Hudson Moody receives service credits from HIPLA which may be used against other services, in recognition of facilitating the checks and undertaking associated administrative compliance duties.
Loading... Please wait.
Loading... Please wait.