Eastfield Lane, Dunnington, York, YO19 5NE
Guide Price £825,000
A family sized ENERGY FRIENDLY property with SOLAR PANELS enjoying COUNTRY VIEWS. Standing on a good sized plot; enjoying private gardens and QUADRUPLE SIZED GARAGE. EPC: B
GENERAL REMARKS
We offer a lovely sized energy friendly property benefiting for an air source heat pump fitted in 2025 and EPC: B with solar panels which provides an approximate surplus income of £2100 Per Annum.
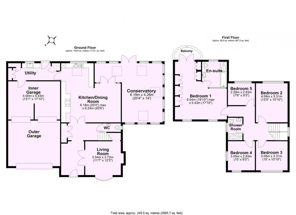
Ground floor: generous sized welcoming entrance hall -- large coats cupboard -- double glazed doors to a living room + large bay window to the front elevation + feature electric fireplace -- WC --large open plan 'L' shaped kitchen diner enjoying garden views -- utility room incorporating plant room + larder cupboard + access to both the garden and integral garage -- lovely sized noticeably bright garden room with windows to 3 elevations plus a vaulted ceiling & under floor heating -- impressive powder coated steel framed glass covered pergola from which to enjoy the garden.
1st Floor: large landing -- 4 double bedrooms -- 5th single bedroom (or office) --the main bedroom benefits from a vaulted ceiling, balcony and en-suite bathroom incorporating bath and separate shower -- contemporary house shower room.
Outside: the property is approached via sliding gates entering a generous sized block paved driveway leading up to a quadruple sized garage (with single electric door to the front of the main garage and beyond; two twin electric doors providing additional garage parking for a total of 4 vehicles) or alternatively could be used as a games room/workshop.
The front garden has been designed for low maintenance with artificial grass and distinctive monkey tree set within timber fencing with brick columns. Gravel paths flank the side of property which includes a feature pond with seating area. To the rear is a generous sized south-easterly facing garden which includes a glass pergola, summerhouse/office with underfloor heating plus decked seating area with planted borders enclosed by timber fenced boundaries. There is also a vegetable patch and soft fruit growing area which includes: strawberries, gooseberries, rhubarb and runner beans.
Voted one of the most desirable villages in the country in which to raise a family and located only 4 miles to the east of York City centre. Well positioned; located on Eastfield Lane with countryside views. *** Viewing strongly recommended ***
VIEWING
All viewing is strictly by prior appointment with the sole selling agents, Hudson Moody. Please contact our personal agent Alex McClean.
LOCATION
Dunnington is situated around 4 miles to the east of York City. The village is very popular and has a great community spirit with many local activities and amenities including: the Sports Club (cricket, football, squash, tennis and bowls teams), Scouts hut, pub, local church and a well-equipped play park with picnic area. There are a good range of local shops: bistro cafe, bakers, Costcutter (including Post office), an award winning Florist & newsagents. There are also two hairdressers, a doctors surgery and chemist plus sought after village Primary School. Fulford school catchment. Local village walks are in Hagg Wood located on the eastern edge of the village.
The property is conveniently located a short walk from local shops. Regular bus services operate from the village to the City of York and surrounding areas.
AMENITIES
*all mains services
*air source heat pump fitted in 2025
*solar panels -- 8.5kw storage batteries
*uPVC double glazed windows
*first floor landing to laddered loft space with boarding, insulation and lighting
*kitchen includes: cooker with double oven, electric hob and extractor over. Integral double height fridge, integral dishwasher
LOCAL AUTHORITY
City of York Council, West Offices, Station Rise, York, YO1 6GA.
OFFER PROCEDURE
Before contacting a Building Society, Bank or Solicitor you should make your offer to the office dealing with the sale, as any delay may result in the sale being agreed to another purchaser, thus incurring unnecessary costs. Under the Estate Agency Act 1991, you will be required to provide us with financial information in order to verify your position, before we can recommend your offer to the vendor. We will also require proof of identification in order to adhere to Money Laundering Regulations.
ANTI MONEY LAUNDERING COMPLIANCE
We are legally required to conduct Anti-Money Laundering (AML) checks on all purchasers and sellers. These checks become mandatory once a seller accepts an offer on a property (subject to contract).
AML checks are valid for six months from the date of completion. If your transaction does not proceed and you submit an offer on another property more than six months later, or if your existing AML check is more than six months old at the time of a new offer, you will be required to complete and pay for a new check.
We appoint HIPLA as our compliance partner to carry out these checks on our behalf. Once your offer has been accepted (subject to contract), HIPLA will contact you directly to complete a secure electronic verification process.
A non-refundable fee of £30 + VAT per purchaser is payable for the AML check. This fee must be paid before we can issue the Memorandum of Sale to the solicitors. The fee is non-refundable in all circumstances.
Hudson Moody receives service credits from HIPLA which may be used against other services, in recognition of facilitating the checks and undertaking associated administrative compliance duties.
Loading... Please wait.
Loading... Please wait.