Easthorpe Drive, Nether Poppleton, York, YO26 6NS
Guide Price £450,000
Nestled in the charming village of Nether Poppleton, a well presented three-bedroom detached house on Easthorpe Drive, lying within easy reach of transport links and local amenities. No onward chain.
Situated in a peaceful residential location in the popular village of Poppleton, this well-presented three-bedroom detached house has been a much-loved family home for many years and now offers an exciting opportunity for prospective buyers to modernise and make it their own.
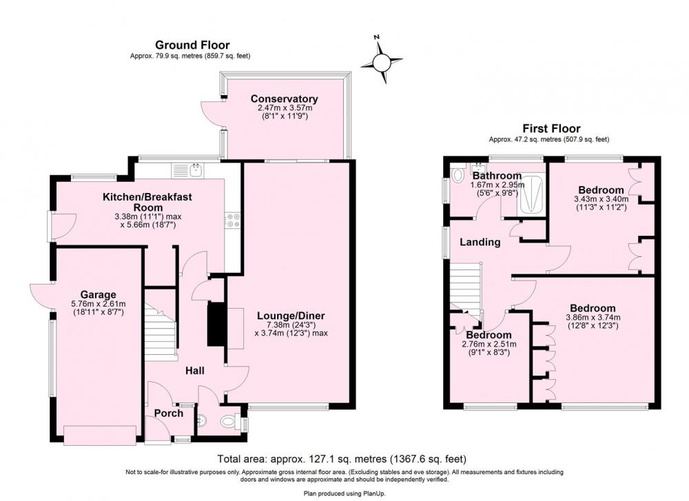
The ground floor accommodation comprises a spacious living room, filled with natural light, which leads through to a bright conservatory, which enjoys views over the garden. To the rear of the property is a fitted kitchen diner, offering ample space for a family dining table and freestanding appliances and giving access to the garden.
Upstairs, the property features three well-proportioned bedrooms and a modern shower room. The home is complemented by a private rear garden, a detached garage, and a driveway providing off-street parking.
Poppleton is a picturesque and well-connected village on the outskirts of York, offering a blend of rural charm and modern convenience. The property lies within easy access of local shops, pubs, and cafés, as well as highly regarded primary school and a doctor’s surgery.
Poppleton boasts excellent transport links, including a railway station with direct trains to York and Leeds, and easy access to the A59 and A1237 ring road, making it ideal for commuters.
FIXTURES AND FITTINGS
All fixtures and fittings are specifically excluded from the sale unless they are mentioned in the particulars of sale.
LOCAL AUTHORITY YORK
City of York Council, West Offices, Station Rise, York, YO1 6GA. Telephone 01904 551550.
SERVICES
Mains supplies of water, electricity and drainage. Gas fired central heating.
VIEWINGS
All viewing is strictly by prior appointment with the sole selling agents, Hudson Moody. Please contact our offices at The Green, Poppleton, York, YO26 6DF. Telephone (01904) 789 999. Fax: (01904) 789 987.
OFFER PROCEDURE
Before contacting a Building Society, Bank or Solicitor you should make your offer to the office dealing with the sale, as any delay may result in the sale being agreed to another purchaser, thus incurring unnecessary costs. Under the Estate Agency Act 1991, you will be required to provide us with financial information in order to verify your position, before we can recommend your offer to the vendor. We will also require proof of identification in order to adhere to Money Laundering Regulations.
ANTI MONEY LAUNDERING COMPLIANCE
We are legally required to conduct Anti-Money Laundering (AML) checks on all purchasers and sellers. These checks become mandatory once a seller accepts an offer on a property (subject to contract).
AML checks are valid for six months from the date of completion. If your transaction does not proceed and you submit an offer on another property more than six months later, or if your existing AML check is more than six months old at the time of a new offer, you will be required to complete and pay for a new check.
We appoint HIPLA as our compliance partner to carry out these checks on our behalf. Once your offer has been accepted (subject to contract), HIPLA will contact you directly to complete a secure electronic verification process.
A non-refundable fee of £30 + VAT per purchaser is payable for the AML check. This fee must be paid before we can issue the Memorandum of Sale to the solicitors. The fee is non-refundable in all circumstances.
Hudson Moody receives service credits from HIPLA which may be used against other services, in recognition of facilitating the checks and undertaking associated administrative compliance duties.
Loading... Please wait.
Loading... Please wait.