Fulford Road, Fishergate, York, YO10 4BD
Guide Price £450,000
This attractive three-storey period terrace presents a fantastic opportunity for cosmetic updating, with scope to extend and potential to create a fourth bedroom on the third floor. The property is located conveniently on Fishergate, within close proximity to the city centre, and available with no onward chain.
83 Fulford Road is positioned in the highly desirable and well-established residential location of Fishergate, offering an excellent balance of convenience, community, and access to green spaces. Situated close to York city centre, the area provides easy access to a wide range of shops, cafés, restaurants, excellent local schools and riverside walks along the River Ouse.
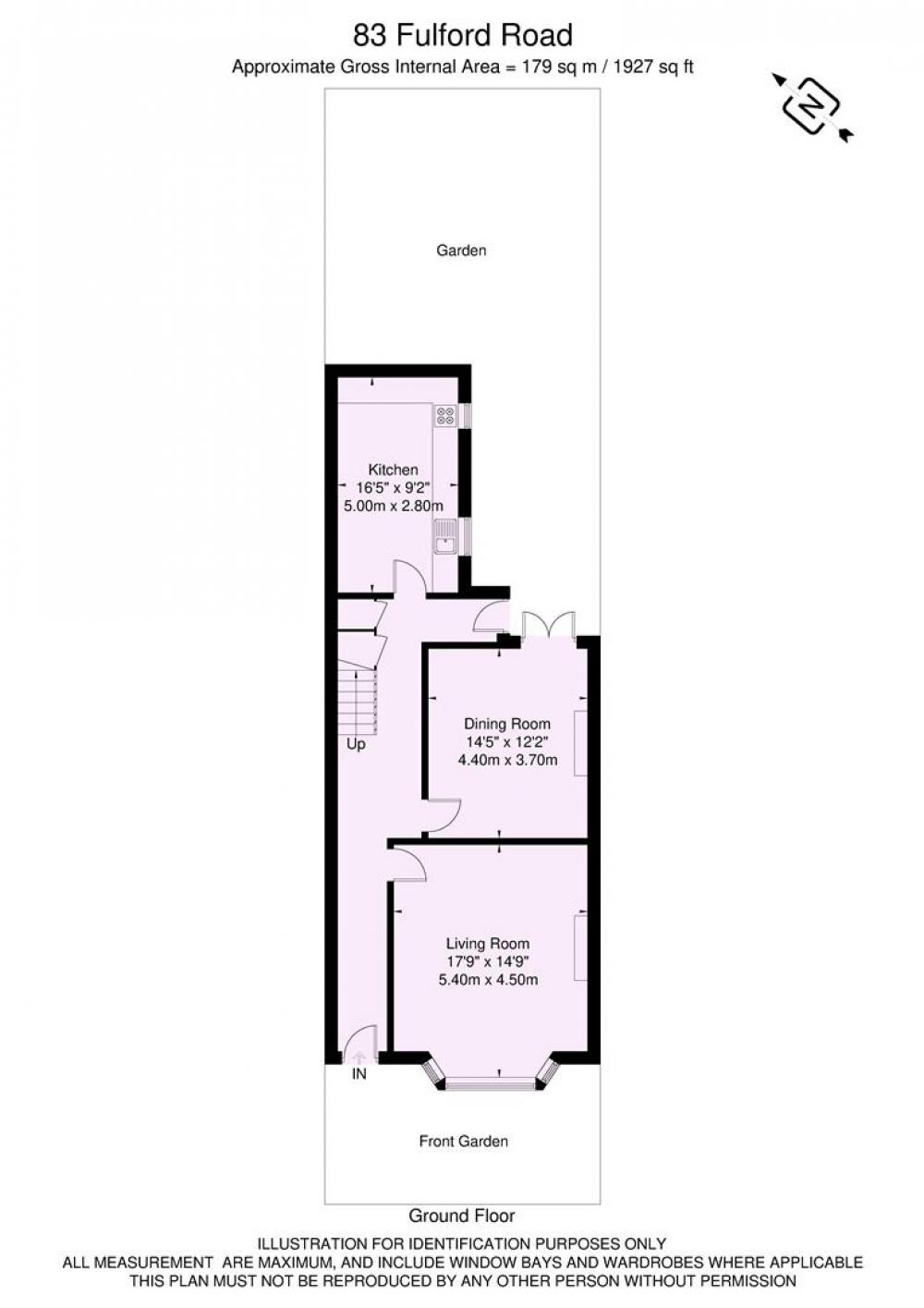
The ground floor features a spacious living room to the front complete with a bay window, adjoining is the dining room with patio doors opening onto the garden. The kitchen is located to the rear and also provides direct access to the garden.
Upstairs, there are two well-proportioned double bedrooms and a house bathroom with a four-piece suite. The second floor offers an additional bedroom with an en-suite shower and useful storage within the eaves.
Externally, the rear garden is predominantly lawned with a patio area and original brick-built storage sheds to the side, with a gate providing access to the service lane. On-street permit parking is available at the front.
GENERAL REMARKS
VIEWING MICKLEGATE
All viewing is strictly by prior appointment with the sole selling agents, Hudson Moody. Please contact our offices at 58, Micklegate, York, YO1 6LF. Telephone (01904) 650 650.
FIXTURES AND FITTINGS
All fixtures and fittings are specifically excluded from the sale unless they are mentioned in the particulars of sale.
LOCAL AUTHORITY YORK
City of York Council, West Offices, Station Rise, York, YO1 6GA. Telephone 01904 551550.
SERVICES
Mains supplies of water, electricity and drainage. Gas fired central heating.
OFFER PROCEDURE
Before contacting a Building Society, Bank or Solicitor you should make your offer to the office dealing with the sale, as any delay may result in the sale being agreed to another purchaser, thus incurring unnecessary costs. Under the Estate Agency Act 1991, you will be required to provide us with financial information in order to verify your position, before we can recommend your offer to the vendor. We will also require proof of identification in order to adhere to Money Laundering Regulations.
ANTI MONEY LAUNDERING COMPLIANCE
We are legally required to conduct Anti-Money Laundering (AML) checks on all purchasers and sellers. These checks become mandatory once a seller accepts an offer on a property (subject to contract).
AML checks are valid for six months from the date of completion. If your transaction does not proceed and you submit an offer on another property more than six months later, or if your existing AML check is more than six months old at the time of a new offer, you will be required to complete and pay for a new check.
We appoint HIPLA as our compliance partner to carry out these checks on our behalf. Once your offer has been accepted (subject to contract), HIPLA will contact you directly to complete a secure electronic verification process.
A non-refundable fee of £30 + VAT per purchaser is payable for the AML check. This fee must be paid before we can issue the Memorandum of Sale to the solicitors. The fee is non-refundable in all circumstances.
Hudson Moody receives service credits from HIPLA which may be used against other services, in recognition of facilitating the checks and undertaking associated administrative compliance duties.
Loading... Please wait.
Loading... Please wait.