Greencroft Court, Dunnington, York YO19 5NN
Guide Price £350,000
A two bedroom detached extended bungalow standing on a LARGE CORNER PLOT; complimented by private gardens plus TWO SINGLE GARAGES and workshop. Conveniently offered with no onward chain.
GENERAL REMARKS
Tucked away in the corner of an attractive cul-de-sac is a detached bungalow located on a generous sized corner plot.
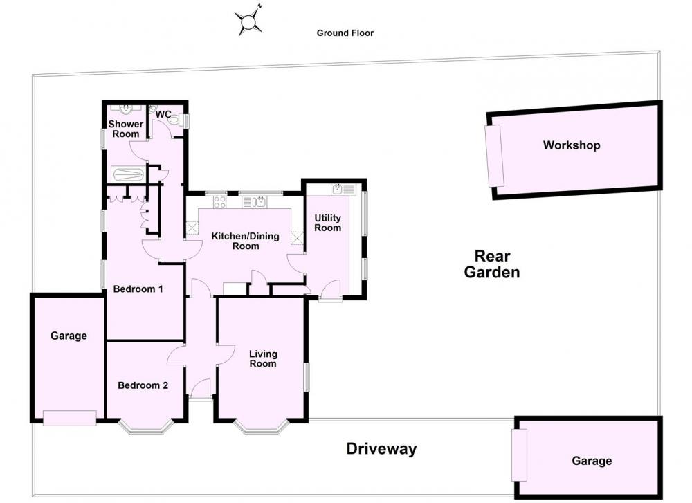
Accommodation comprises: a storm porch entering into a long hallway -- living room; noticeably light with windows to both front and side elevations plus a feature fireplace (decorative only) – inner hall including storage cupboard -- 2 ground floor bedrooms (alternatively one could be used as an office or hobby room), the main bedroom benefits from fitted wardrobes -- modern house shower room which includes a walk-in double width shower cubicle -- separate WC -- open plan kitchen dining room with large living room beyond which includes garden access. The kitchen is fitted with cream coloured Shaker style units, integral double oven, gas hob with extractor over, slimline dishwasher and space for a tall standing fridge freezer – utility room which includes a Bosch washing machine and dryer, plus garden views and access.
Outside: There are two separate resin driveways; one which incorporates iron gates; which lead up to two separate single garages providing off road parking for several vehicles. Adjacent to the drive is an extensive paved area, a central positioned lawn and large workshop, plus timber summerhouse enclosed by timber fenced boundaries. The front garden has been attractively landscaped to include a rockery.
In summary: a well-presented property positioned enjoying generous outdoor space and garaging likely to appeal to a wide range of buyers.
VIEWING
All viewing is strictly by prior appointment with the sole selling agents, Hudson Moody. Please contact our personal agent Alex McClean.
LOCATION
Dunnington is situated around 4 miles to the east of York City. The village is very popular and has a great community spirit with many local activities and amenities including: the Sports Club (cricket, football, squash, tennis and bowls teams), Scouts hut, pub, church and a well-equipped play park with picnic area. There are a good range of local shops: bakers, Costcutter (including Post office), an award winning Florist, newsagent and interior design studio. There are also two hairdressers, a doctors surgery and chemist plus sought after village Primary School. Fulford school catchment. Local village walks are in Hagg Wood located on the eastern edge of the village plus and cycle paths (National Cycle Network Route 66)
The property is conveniently located in the centre of the village and a short walk to Hagg Wood. Regular bus services operate from the village to the City of York and surrounding areas.
AMENITIES
*all mains services
*gas central heating (boiler positioned in the loft)
*double glazed windows
*access hatch to laddered loft in the kitchen
LOCAL AUTHORITY
City of York Council, West Offices, Station Rise, York, YO1 6GA.
OFFER PROCEDURE
Before contacting a Building Society, Bank or Solicitor you should make your offer to the office dealing with the sale, as any delay may result in the sale being agreed to another purchaser, thus incurring unnecessary costs. Under the Estate Agency Act 1991, you will be required to provide us with financial information in order to verify your position, before we can recommend your offer to the vendor. We will also require proof of identification in order to adhere to Money Laundering Regulations.
ANTI MONEY LAUNDERING COMPLIANCE
We are legally required to conduct Anti-Money Laundering (AML) checks on all purchasers and sellers. These checks become mandatory once a seller accepts an offer on a property (subject to contract).
AML checks are valid for six months from the date of completion. If your transaction does not proceed and you submit an offer on another property more than six months later, or if your existing AML check is more than six months old at the time of a new offer, you will be required to complete and pay for a new check.
We appoint HIPLA as our compliance partner to carry out these checks on our behalf. Once your offer has been accepted (subject to contract), HIPLA will contact you directly to complete a secure electronic verification process.
A non-refundable fee of £30 + VAT per purchaser is payable for the AML check. This fee must be paid before we can issue the Memorandum of Sale to the solicitors. The fee is non-refundable in all circumstances.
Hudson Moody receives service credits from HIPLA which may be used against other services, in recognition of facilitating the checks and undertaking associated administrative compliance duties.
Loading... Please wait.
Loading... Please wait.