Greenside Close, Dunnington, York YO19 5PF
Guide Price £475,000
A well presented and beautifully maintained property, standing on a good sized corner plot enjoying private gardens and garaging. ***VIEWING RECOMMENDED***
GENERAL REMARKS
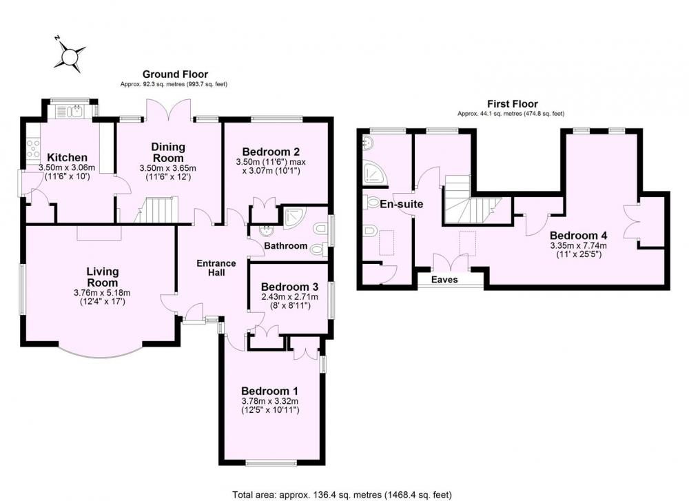
We are delighted to market this family sized property which includes a versatile converted loft room; standing on a good-sized corner plot within the highly regarded village of Dunnington which is only 4 miles to the east of York.
Well-presented and noticeably light throughout, accommodation comprises: a storm porch leading up to a welcoming sized front entrance hall with solid Oak flooring -- a light and spacious dual aspect living room which includes a large bay window and feature electric fireplace set on a marble hearth with Oak surround -- 3 ground floor bedrooms all with storage cupboards; one of which is currently set up as an office -- modern shower room -- dining room with French doors enjoying garden views and solid Oak flooring that has been continued from the hallway -- kitchen with large box window enjoying garden views plus useful larger storage cupboard -- the kitchen includes a Rangemaster cooker with double oven and grill, plus gas hob with extractor over, space for fridge and freezer and slimline dishwasher –- side access.
First floor: in 2005 the loft was converted to provide a versatile fourth bedroom which includes a range of integral storage cupboards plus en-suite shower room.
•Frontage: attractive beech hedging encloses a neat lawn and block-paved path. The driveway accommodates 2/3 cars and leads to an oversized garage with utility hookups and a WC. Additional store room positioned to the rear of the garage.
•Rear Garden: This private, timber fenced sanctuary boasts lush borders and a variety of plant life.
In summary: a versatile home likely to appeal to a wide variety of buyers but likely to include garden lovers.
VIEWING
All viewing is strictly by prior appointment with the sole selling agents, Hudson Moody. Please contact our personal agent Alex McClean.
LOCATION
Dunnington is situated around 4 miles to the east of York City. The village is very popular and has a great community spirit with many local activities and amenities including: the Sports Club (cricket, football, squash, tennis and bowls teams), Scouts hut, pub, church and a well-equipped play park with picnic area. There are a good range of local shops: bakers, Costcutter (including Post office), an award winning Florist and newsagents. There are also two hairdressers, a doctors surgery and chemist plus sought after village Primary School. Fulford school catchment. Local village walks are in Hagg Wood located on the eastern edge of the village plus and cycle paths (National Cycle Network Route 66)
The property is located close to the centre of the village a short walk away from local shops; well placed for local amenities. Regular bus services operate from the village to the City of York and surrounding areas.
AMENITIES
*all mains services
*gas central heating - cupboard housing a gas combi boiler located in the garage installed in 2019
*uPVC double glazed windows
LOCAL AUTHORITY
City of York Council, West Offices, Station Rise, York, YO1 6GA.
OFFER PROCEDURE
Before contacting a Building Society, Bank or Solicitor you should make your offer to the office dealing with the sale, as any delay may result in the sale being agreed to another purchaser, thus incurring unnecessary costs. Under the Estate Agency Act 1991, you will be required to provide us with financial information in order to verify your position, before we can recommend your offer to the vendor. We will also require proof of identification in order to adhere to Money Laundering Regulations.
ANTI MONEY LAUNDERING COMPLIANCE
We are legally required to conduct Anti-Money Laundering (AML) checks on all purchasers and sellers. These checks become mandatory once a seller accepts an offer on a property (subject to contract).
AML checks are valid for six months from the date of completion. If your transaction does not proceed and you submit an offer on another property more than six months later, or if your existing AML check is more than six months old at the time of a new offer, you will be required to complete and pay for a new check.
We appoint HIPLA as our compliance partner to carry out these checks on our behalf. Once your offer has been accepted (subject to contract), HIPLA will contact you directly to complete a secure electronic verification process.
A non-refundable fee of £30 + VAT per purchaser is payable for the AML check. This fee must be paid before we can issue the Memorandum of Sale to the solicitors. The fee is non-refundable in all circumstances.
Hudson Moody receives service credits from HIPLA which may be used against other services, in recognition of facilitating the checks and undertaking associated administrative compliance duties.
Loading... Please wait.
Loading... Please wait.