Greenside Walk, Dunnington, York YO19 5RQ
Guide Price £475,000
A beautifully situated bungalow set on a generous plot, featuring attractive lawned gardens that adjoin open countryside. The home is further enhanced by a tandem-length garage and is available with the added benefit of no onward chain.
GENERAL REMARKS
A well-loved property under the same ownership for the past 37 years constructed in the early 1970's.
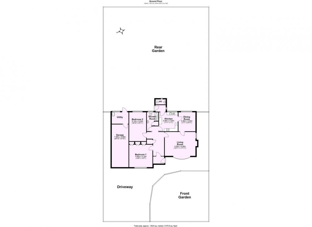
Accommodation comprises entrance vestibule leading into a generous sized reception hallway from which all principal rooms are accessed -- light + spacious living room with bay window to the front elevation plus additional side elevation window + gas fireplace (not operational) + adjoining rear dining room with adjacent modern kitchen both enjoying garden views -- The kitchen comprises a range of integral Bosch units including double oven/microwave oven, slim line dishwasher and gas hob with extractor over -- rear lobby with WC and garden access off -- 2 double bedrooms, one with fitted wardrobes and the other includes a wash basin -- modern shower room with double width shower plus airing cupboard housing water cylinder -- utility room is positioned to the rear of the tandem length garage with space for washer and dryer.
Outside: a stone pillared entrance leads into a block paved driveway, set within a low height stone wall providing ample off-road parking provision that leads up to a tandem length garage. There is a front lawn and a timber gated path to either side of the property that links front and rear leading to a generous sized lawned garden flanked within by well stocked borders enclosed by a combination of hedge and fenced boundaries backing onto farmer's fields. Immediately to the rear of the property is an Indian stone sun patio.
In summary: an ideal property for buyers seeking a larger than average bungalow with lovely gardens and potential to extend (subject to planning).
VIEWING
All viewing is strictly by prior appointment with the sole selling agents, Hudson Moody. Please contact our personal agent Alex McClean.
LOCATION
Dunnington is situated around 4 miles to the east of York City. The village is very popular and has a great community spirit with many local activities and amenities including: the Sports Club (cricket, football, squash, tennis and bowls teams), Scouts hut, pub, local church and a well-equipped play park with picnic area. There are a good range of local shops: bistro cafe, bakers, Costcutter (including Post office), an award winning Florist & newsagents. There are also two hairdressers, a doctors surgery and chemist plus sought after village Primary School. Fulford school catchment. Local village walks are in Hagg Wood located on the eastern edge of the village.
The property is conveniently located a short walk from local shops. Regular bus services operate from the village to the City of York and surrounding areas.
AMENITIES
*gas central heating (boiler is located in the utility room)
*uPVC double glazed windows
*access hatch to insulated loft located in the bathroom
LOCAL AUTHORITY
City of York Council, West Offices, Station Rise, York, YO1 6GA.
OFFER PROCEDURE
Before contacting a Building Society, Bank or Solicitor you should make your offer to the office dealing with the sale, as any delay may result in the sale being agreed to another purchaser, thus incurring unnecessary costs. Under the Estate Agency Act 1991, you will be required to provide us with financial information in order to verify your position, before we can recommend your offer to the vendor. We will also require proof of identification in order to adhere to Money Laundering Regulations.
ANTI MONEY LAUNDERING COMPLIANCE
We are legally required to conduct Anti-Money Laundering (AML) checks on all purchasers and sellers. These checks become mandatory once a seller accepts an offer on a property (subject to contract).
AML checks are valid for six months from the date of completion. If your transaction does not proceed and you submit an offer on another property more than six months later, or if your existing AML check is more than six months old at the time of a new offer, you will be required to complete and pay for a new check.
We appoint HIPLA as our compliance partner to carry out these checks on our behalf. Once your offer has been accepted (subject to contract), HIPLA will contact you directly to complete a secure electronic verification process.
A non-refundable fee of £30 + VAT per purchaser is payable for the AML check. This fee must be paid before we can issue the Memorandum of Sale to the solicitors. The fee is non-refundable in all circumstances.
Hudson Moody receives service credits from HIPLA which may be used against other services, in recognition of facilitating the checks and undertaking associated administrative compliance duties.
Loading... Please wait.
Loading... Please wait.