Hamilton Drive East, Holgate, York, YO24 4EF
Guide Price £325,000
***NO CHAIN***
An immaculately presented mid-terrace house, situated in a convenient location near West Bank Park and close to Holgate Road, the railway station and York city centre.
A beautifully presented three-bedroom home, which has been extended and finished to a high standard throughout. The property features an impressive open-plan living space, a bright kitchen extension, and a generous rear garden.
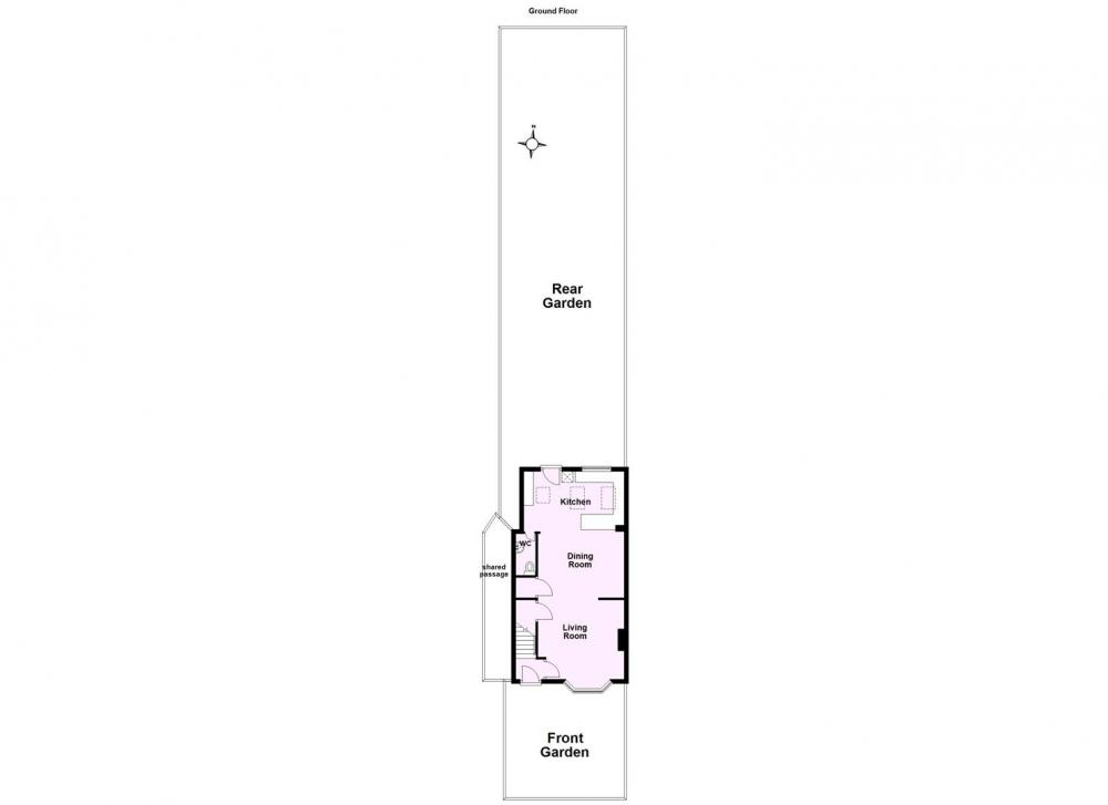
To the front of the property is an attractive lawned garden with pathway to the front entrance and shared passage providing access to the rear garden.
The spacious open-plan living and dining area flows seamlessly into the contemporary extended kitchen at the rear. The bright living room features a bay window overlooking the front garden, whilst the dining area includes stylish fitted corner seating and a breakfast bar opening onto the kitchen, creating a sociable and versatile layout.
The modern kitchen extension is flooded with natural light from a large roof light and offers an excellent range of fitted units with timber worktops, an integrated oven, fridge freezer and induction hob. A glazed rear door provides direct access to the garden, while a convenient ground floor WC is located just off the kitchen.
Upstairs, the first floor landing leads to two generous double bedrooms, a single bedroom or home office, and a contemporary shower room. The property also benefits from a useful loft storage space with stairs up from the first floor.
To the rear, the property boasts a large enclosed garden with mature trees, fencing and hedges, offering excellent privacy. The garden features useful outbuildings, a decked seating area, gravel patio, and a lawned area.
GENERAL REMARKS
VIEWING
All viewing is strictly by prior appointment with the sole selling agents, Hudson Moody. Please contact our offices at 58, Micklegate, York, YO1 6LF.
FIXTURES AND FITTINGS
All fixtures and fittings are specifically excluded from the sale unless they are mentioned in the particulars of sale.
LOCATION
The property is situated in a particularly popular and convenient area of York with a number of local shops and facilities close by. There is easy access to the city, railway station and Tadcaster Road that in turn leads to the motorway network
SERVICES
Mains supplies of water, electricity and drainage. Gas fired central heating.
LOCAL AUTHORITY YORK
City of York Council, West Offices, Station Rise, York, YO1 6GA. Telephone 01904 551550.
OFFER PROCEDURE
Before contacting a Building Society, Bank or Solicitor you should make your offer to the office dealing with the sale, as any delay may result in the sale being agreed to another purchaser, thus incurring unnecessary costs. Under the Estate Agency Act 1991, you will be required to provide us with financial information in order to verify your position, before we can recommend your offer to the vendor. We will also require proof of identification in order to adhere to Money Laundering Regulations.
ANTI MONEY LAUNDERING COMPLIANCE
We are legally required to conduct Anti-Money Laundering (AML) checks on all purchasers and sellers. These checks become mandatory once a seller accepts an offer on a property (subject to contract).
AML checks are valid for six months from the date of completion. If your transaction does not proceed and you submit an offer on another property more than six months later, or if your existing AML check is more than six months old at the time of a new offer, you will be required to complete and pay for a new check.
We appoint HIPLA as our compliance partner to carry out these checks on our behalf. Once your offer has been accepted (subject to contract), HIPLA will contact you directly to complete a secure electronic verification process.
A non-refundable fee of £30 + VAT per purchaser is payable for the AML check. This fee must be paid before we can issue the Memorandum of Sale to the solicitors. The fee is non-refundable in all circumstances.
Hudson Moody receives service credits from HIPLA which may be used against other services, in recognition of facilitating the checks and undertaking associated administrative compliance duties.
Loading... Please wait.
Loading... Please wait.