Harden way, Fulford, York YO19 4AW
Guide Price £450,000
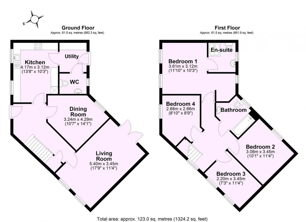
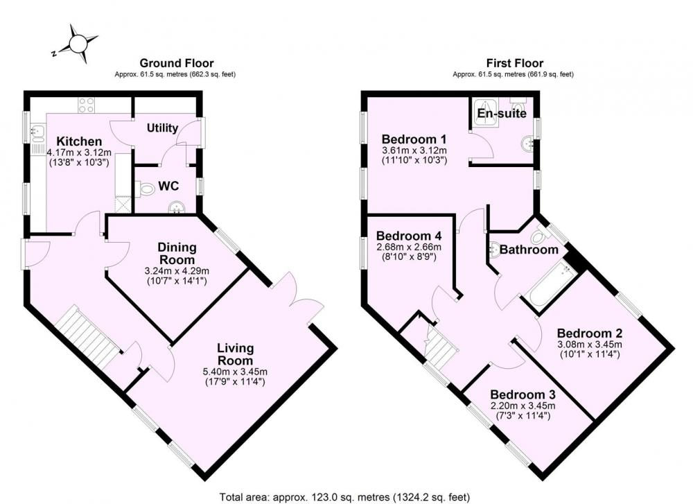
Situated within a smart new development in the popular Fulford area of York, you will find this spacious four bedroom semi-detached house with garage, parking and south facing garden. The property offers superb modern accommodation with two reception rooms and en-suite master bedroom.
The house lies in a superb location close to Fulford village and within easy reach of the University of York campus, York city centre and the A64.
The house has lots of kerb appeal and enters into a generous reception hall. To one side is the large kitchen with an excellent range of units, including an integral gas cooker with extractor hood, integral appliances, a small breakfast bar and additional space for a table if required. Off the kitchen you will find a separate utility room and the ground floor WC.
A separate dining room lies off the reception hall before you enter the 17ft living room with French doors out to the smart south facing rear patio and lawned garden.
On the first floor is the immaculate master bedroom suite with shower room, together with three further double bedrooms, all of which are served by the house bathroom.
To one side of the house a driveway leads to a single garage and gateway into the rear garden.
GENERAL REMARKS
VIEWING
All viewing is strictly by prior appointment with the sole selling agents, Hudson Moody. Please contact our offices at 58, Micklegate, York, YO1 6LF.
FIXTURES AND FITTINGS
All fixtures and fittings are specifically excluded from the sale unless they are mentioned in the particulars of sale.
LOCATION
Situated within a modern development in a superb location near Fulford Village.
SERVICES
Mains supplies of water, electricity and drainage. Gas fired central heating.
LOCAL AUTHORITY YORK
City of York Council, West Offices, Station Rise, York, YO1 6GA. Telephone 01904 551550.
OFFER PROCEDURE
Before contacting a Building Society, Bank or Solicitor you should make your offer to the office dealing with the sale, as any delay may result in the sale being agreed to another purchaser, thus incurring unnecessary costs. Under the Estate Agency Act 1991, you will be required to provide us with financial information in order to verify your position, before we can recommend your offer to the vendor. We will also require proof of identification in order to adhere to Money Laundering Regulations.
ANTI MONEY LAUNDERING COMPLIANCE
We are legally required to conduct Anti-Money Laundering (AML) checks on all purchasers and sellers. These checks become mandatory once a seller accepts an offer on a property (subject to contract).
AML checks are valid for six months from the date of completion. If your transaction does not proceed and you submit an offer on another property more than six months later, or if your existing AML check is more than six months old at the time of a new offer, you will be required to complete and pay for a new check.
We appoint HIPLA as our compliance partner to carry out these checks on our behalf. Once your offer has been accepted (subject to contract), HIPLA will contact you directly to complete a secure electronic verification process.
A non-refundable fee of £30 + VAT per purchaser is payable for the AML check. This fee must be paid before we can issue the Memorandum of Sale to the solicitors. The fee is non-refundable in all circumstances.
Hudson Moody receives service credits from HIPLA which may be used against other services, in recognition of facilitating the checks and undertaking associated administrative compliance duties.
Loading... Please wait.
Loading... Please wait.