Haxby Road, York, YO31 8JW
Offers In Excess Of £475,000
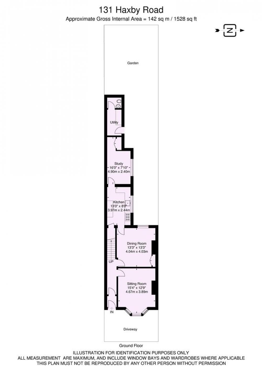
Situated north of the city centre and close to York Hospital, this sympathetically renovated and extended terraced property retains many of its original period features, including ceiling roses, cornicing, picture rails, and wooden pine doors. The home offers three reception rooms, a newly fitted kitchen, a utility room, a downstairs WC, three double bedrooms, and a modern four-piece family bathroom.
Haxby Road is situated to the north of York, making it a convenient location for those looking to be in close proximity to the city centre, York St John University, and York Hospital, while also offering easy access to Clifton Moor and the outer ring road.
The property is entered via a front forecourt leading into a spacious entrance hallway, which provides access to the bay-fronted dining room, the living room, and stairs to the first floor. The dining room features an attractive open fireplace along with original cornicing and a ceiling rose. The living room benefits from a wall-mounted electric fire, a large window overlooking the rear courtyard, and a door leading through to the kitchen. The current owners have installed a new ‘Cookhouse’ kitchen, complete with quartz worktops, an integrated dishwasher, an American-style fridge freezer, and a range cooker. To the rear of the kitchen is a home office, which in turn leads to a utility room and a downstairs WC.
The first floor offers two double bedrooms, both with built-in cupboards, one of which also features a Victorian fireplace. Stairs continue to the second floor, where there is a further double bedroom with built-in wardrobes, along with the house bathroom. The bathroom has been renovated by the current owners and includes a freestanding bath, separate shower, and heated towel rail.
Externally, the property enjoys a generous courtyard garden with a private outlook and ample space for alfresco dining during the summer months. On-street permit parking is available on the surrounding streets.
GENERAL REMARKS
VIEWING MICKLEGATE
All viewing is strictly by prior appointment with the sole selling agents, Hudson Moody. Please contact our offices at 58, Micklegate, York, YO1 6LF. Telephone (01904) 650 650.
FIXTURES AND FITTINGS
All fixtures and fittings are specifically excluded from the sale unless they are mentioned in the particulars of sale.
SERVICES
Mains supplies of water, electricity and drainage. Gas fired central heating.
LOCAL AUTHORITY YORK
City of York Council, West Offices, Station Rise, York, YO1 6GA. Telephone 01904 551550.
OFFER PROCEDURE
Before contacting a Building Society, Bank or Solicitor you should make your offer to the office dealing with the sale, as any delay may result in the sale being agreed to another purchaser, thus incurring unnecessary costs. Under the Estate Agency Act 1991, you will be required to provide us with financial information in order to verify your position, before we can recommend your offer to the vendor. We will also require proof of identification in order to adhere to Money Laundering Regulations.
ANTI MONEY LAUNDERING COMPLIANCE
We are legally required to conduct Anti-Money Laundering (AML) checks on all purchasers and sellers. These checks become mandatory once a seller accepts an offer on a property (subject to contract).
AML checks are valid for six months from the date of completion. If your transaction does not proceed and you submit an offer on another property more than six months later, or if your existing AML check is more than six months old at the time of a new offer, you will be required to complete and pay for a new check.
We appoint HIPLA as our compliance partner to carry out these checks on our behalf. Once your offer has been accepted (subject to contract), HIPLA will contact you directly to complete a secure electronic verification process.
A non-refundable fee of £30 + VAT per purchaser is payable for the AML check. This fee must be paid before we can issue the Memorandum of Sale to the solicitors. The fee is non-refundable in all circumstances.
Hudson Moody receives service credits from HIPLA which may be used against other services, in recognition of facilitating the checks and undertaking associated administrative compliance duties.
Loading... Please wait.
Loading... Please wait.