Headley Close, Clifton Moor, York, YO30 5GH
Asking Price £485,000
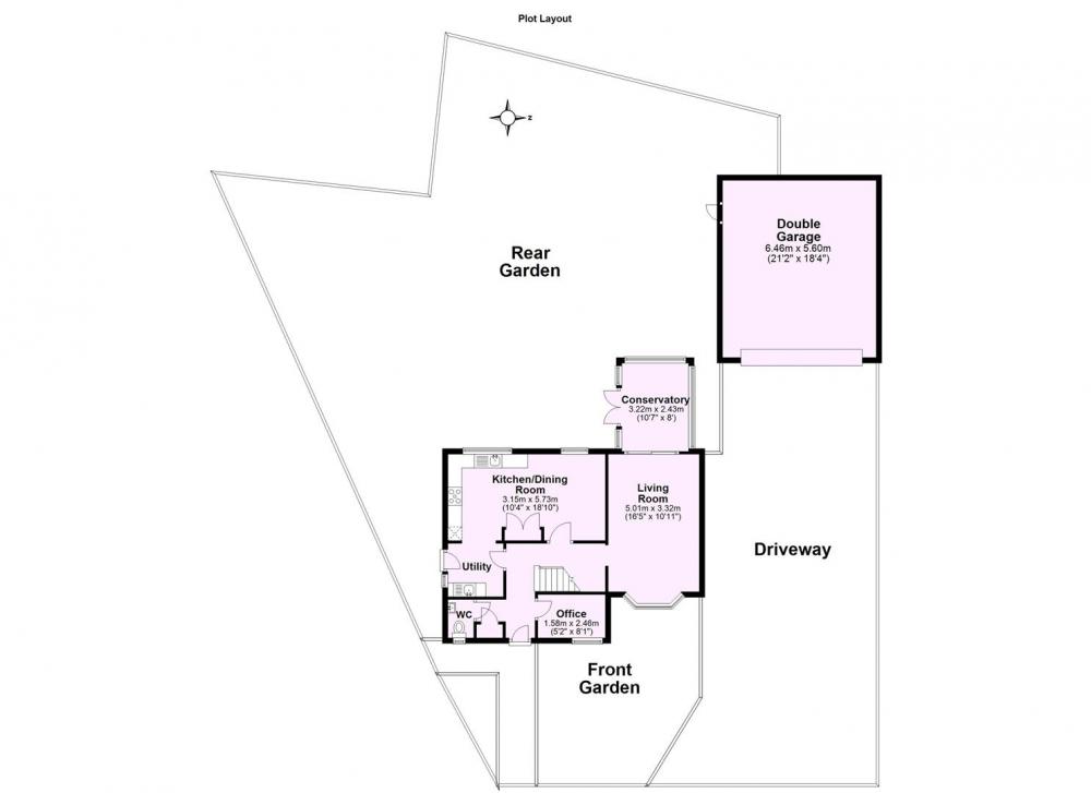
An Impressive Modern Detached Family Home with South-Facing Garden and Double Garage
Located to the North of York, this beautifully presented and spacious modern detached home offers excellent family accommodation, all within easy reach of the city centre, local amenities, and the outer ring road for convenient commuting.
Occupying a generous plot, the property features four well proportioned bedrooms, a versatile layout, a south-facing garden, and a detached double garage, making it ideal for modern family living.
A maintained front garden with lawn and established shrubs welcomes you into a entrance hall, where you’ll find a ground floor cloakroom and a separate study, perfect for working from home.
To the rear of the property is the heart of the home, an impressive dining kitchen fitted with a range of shaker style cupboards, an integral eye-level oven and microwave, and a separate gas hob with extractor hood. The open-plan layout offers a generous dining area to one end, while an archway leads to a practical utility space with access to the rear garden.
The ground floor is completed by a superb lounge featuring a characterful brick fireplace with log-burning stove, a bay window to the front, and patio doors leading into the conservatory, offering further entertaining or relaxation space with views over the garden.
Upstairs, the principal bedroom benefits from a stylish contemporary en-suite shower room, while three additional bedrooms are served by a well-appointed family bathroom.
Externally, the south-facing rear garden is mainly laid to lawn with a generous paved terrace, ideal for outdoor dining and family life. A driveway to the side leads to a detached double garage, providing ample off-street parking and storage. A brand-new boiler has just been installed, complete with a 10-year warranty.
This is a wonderful opportunity to acquire a well-maintained and thoughtfully laid out family home in a quiet residential setting with excellent access to schools, parks, and transport links.
GENERAL REMARKS
VIEWING
All viewing is strictly by prior appointment with the sole selling agents, Hudson Moody. Please contact our offices at 58, Micklegate, York, YO1 6LF.
FIXTURES AND FITTINGS
All fixtures and fittings are specifically excluded from the sale unless they are mentioned in the particulars of sale.
LOCATION
The property stands in an enviable location close to Clifton Backies providing nearby pleasant country walks, yet lies within easy reach of York, Clifton Moor Retail Park and the outer ring road that feeds to the motorway network.
SERVICES
Mains supplies of water, electricity and drainage. Gas fired central heating.
LOCAL AUTHORITY YORK
City of York Council, West Offices, Station Rise, York, YO1 6GA. Telephone 01904 551550.
OFFER PROCEDURE
Before contacting a Building Society, Bank or Solicitor you should make your offer to the office dealing with the sale, as any delay may result in the sale being agreed to another purchaser, thus incurring unnecessary costs. Under the Estate Agency Act 1991, you will be required to provide us with financial information in order to verify your position, before we can recommend your offer to the vendor. We will also require proof of identification in order to adhere to Money Laundering Regulations.
ANTI MONEY LAUNDERING COMPLIANCE
We are legally required to conduct Anti-Money Laundering (AML) checks on all purchasers and sellers. These checks become mandatory once a seller accepts an offer on a property (subject to contract).
AML checks are valid for six months from the date of completion. If your transaction does not proceed and you submit an offer on another property more than six months later, or if your existing AML check is more than six months old at the time of a new offer, you will be required to complete and pay for a new check.
We appoint HIPLA as our compliance partner to carry out these checks on our behalf. Once your offer has been accepted (subject to contract), HIPLA will contact you directly to complete a secure electronic verification process.
A non-refundable fee of £30 + VAT per purchaser is payable for the AML check. This fee must be paid before we can issue the Memorandum of Sale to the solicitors. The fee is non-refundable in all circumstances.
Hudson Moody receives service credits from HIPLA which may be used against other services, in recognition of facilitating the checks and undertaking associated administrative compliance duties.
Loading... Please wait.
Loading... Please wait.