Holgate Road, York, YO24 4AB
Guide Price £550,000
A beautiful period town house, with three double bedrooms, a large courtyard garden and off street parking. Located on Holgate Road, a short stroll of the city centre and train station.
Located on Holgate Road, is this lovely period town house offering generous living space, three double bedrooms, three bathrooms and a large courtyard garden.
Ideally situated, just a short stroll of the bar walls, Holgate road is conveniently close to York train station, the city centre and around a 15 minute walk of the much acclaimed Bishopthorpe Road independent shops and Cafe's. There are also highly regarded local schools within easy reach including The Mount, All Saints and St Pauls Primary School.
The property has been well maintained throughout by the current owners and boasts a wealth of charming features such as original cornicing and high ceilings together with plenty of natural light throughout.
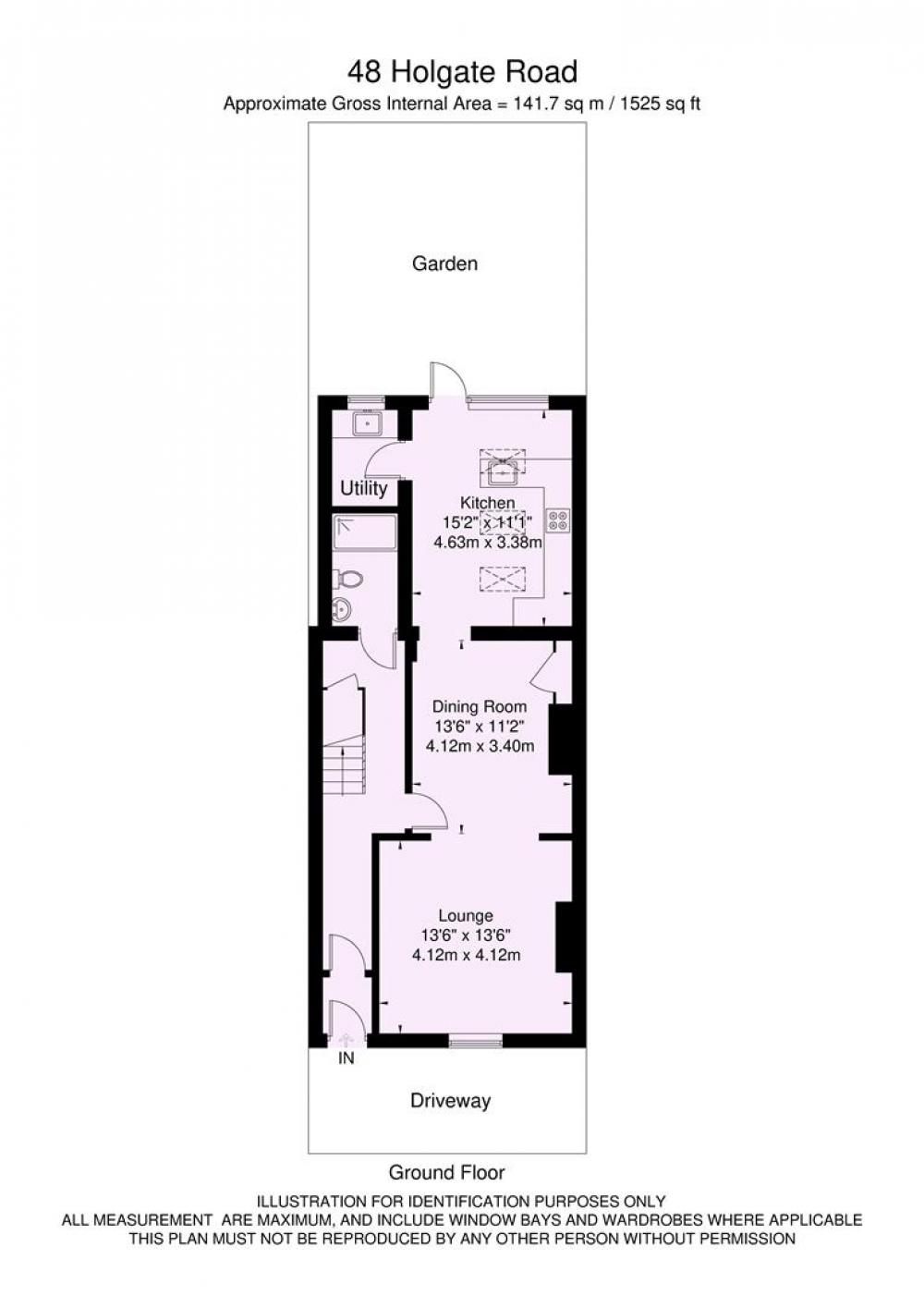
The entrance hall leads through to the main reception area. A bright and airy open plan living dining room, with wood flooring, picture rails, and built in storage.
Situated to the rear of the property is a well appointed kitchen with integral oven, hob and space for appliances. In addition there is useful separate utility room and a shower room
To the first floor there are two double bedrooms, one with en-suite shower room, each benefitting from built in storage. Continuing to the second floor there is a third, double bedroom and separate family bathroom with shower over bath.
Externally, the property boasts a generously sized courtyard garden with plenty of space for entertaining, and outdoor dining. To the front, the property benefits from having off street parking and further permit parking is also available close by.
Viewing is highly recommended to appreciate the size and charm of this much loved home and its fantastic central location
GENERAL REMARKS
LOCATION
Situated on Holgate Road, a short stroll of the city centre and within easy reach of the A64.
FIXTURES AND FITTINGS
All fixtures and fittings are specifically excluded from the sale unless they are mentioned in the particulars of sale.
SERVICES
Mains supplies of water, electricity and drainage. Gas fired central heating.
LOCAL AUTHORITY YORK
City of York Council, West Offices, Station Rise, York, YO1 6GA. Telephone 01904 551550.
VIEWING MICKLEGATE
All viewing is strictly by prior appointment with the sole selling agents, Hudson Moody. Please contact our offices at 58, Micklegate, York, YO1 6LF. Telephone (01904) 650 650.
OFFER PROCEDURE
Before contacting a Building Society, Bank or Solicitor you should make your offer to the office dealing with the sale, as any delay may result in the sale being agreed to another purchaser, thus incurring unnecessary costs. Under the Estate Agency Act 1991, you will be required to provide us with financial information in order to verify your position, before we can recommend your offer to the vendor. We will also require proof of identification in order to adhere to Money Laundering Regulations.
Loading... Please wait.
Loading... Please wait.