Holly Terrace, Fishergate, York YO10 4DS
Guide Price £675,000
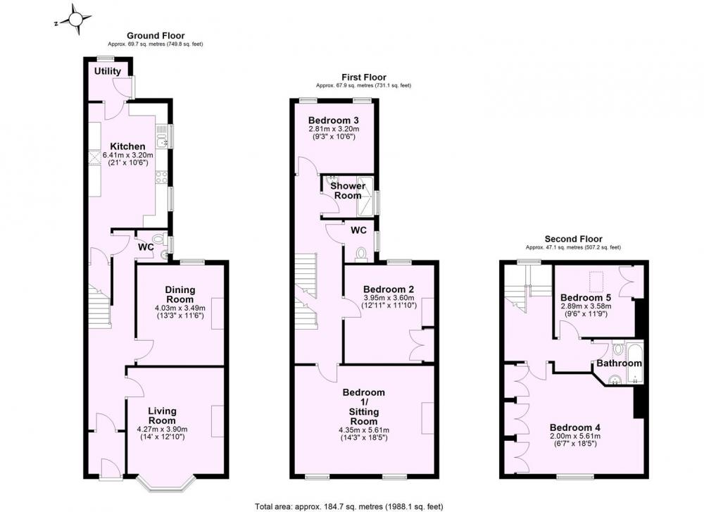
Situated in an idyllic and convenient location with views overlooking the River Ouse and just a short distance from the city centre is this impressive townhouse that offers spacious four bedroomed accommodation set over thee floors.
The house also benefits from a front garden, rear courtyard and off street parking.
An elegant period home set in a picturesque riverside position, retaining a wealth of original features and character throughout.
A residents’ footpath passes the front of the property, providing access to neighbouring homes along the terrace, while the attractive front garden lies between the path and the river, creating a delightful outlook.
The property is entered via a small vestibule, leading through an original coloured-glass door into a welcoming reception hall with an eye catching staircase rising to the first floor. Doors lead to two well proportioned reception rooms. The generous living room enjoys a wide bay window with lovely river views, together with an original fireplace and fitted shelving. To the rear, the spacious dining room also features a fireplace and shelving, and overlooks the enclosed courtyard.
Beyond the dining room is a useful cloakroom and a well appointed kitchen, complemented by a separate utility room.
The first floor provides a large principal bedroom currently arranged as an additional reception space along with two further bedrooms, a shower room and a separate WC.
The top floor offers two additional double bedrooms and a family bathroom.
Externally, the property benefits from a rear courtyard with gated access to a rear lane and space for off-road parking, making this a charming and practical riverside home.
GENERAL REMARKS
VIEWING
All viewing is strictly by prior appointment with the sole selling agents, Hudson Moody. Please contact our offices at 58, Micklegate, York, YO1 6LF. Telephone (01904) 650 650.
SERVICES
Mains supplies of water, electricity and drainage. Gas fired central heating.
LOCATION
The house is situated in the Fulford area of York within easy reach of the city centre. The riverside footpath to the front of the house takes you straight into the city centre, whilst Fulford Road takes you to the outer ring road that connects to the motorway network.
LOCAL AUTHORITY YORK
City of York Council, West Offices, Station Rise, York, YO1 6GA. Telephone 01904 551550.
OFFER PROCEDURE
Before contacting a Building Society, Bank or Solicitor you should make your offer to the office dealing with the sale, as any delay may result in the sale being agreed to another purchaser, thus incurring unnecessary costs. Under the Estate Agency Act 1991, you will be required to provide us with financial information in order to verify your position, before we can recommend your offer to the vendor. We will also require proof of identification in order to adhere to Money Laundering Regulations.
ANTI MONEY LAUNDERING COMPLIANCE
We are legally required to conduct Anti-Money Laundering (AML) checks on all purchasers and sellers. These checks become mandatory once a seller accepts an offer on a property (subject to contract).
AML checks are valid for six months from the date of completion. If your transaction does not proceed and you submit an offer on another property more than six months later, or if your existing AML check is more than six months old at the time of a new offer, you will be required to complete and pay for a new check.
We appoint HIPLA as our compliance partner to carry out these checks on our behalf. Once your offer has been accepted (subject to contract), HIPLA will contact you directly to complete a secure electronic verification process.
A non-refundable fee of £30 + VAT per purchaser is payable for the AML check. This fee must be paid before we can issue the Memorandum of Sale to the solicitors. The fee is non-refundable in all circumstances.
Hudson Moody receives service credits from HIPLA which may be used against other services, in recognition of facilitating the checks and undertaking associated administrative compliance duties.
Loading... Please wait.
Loading... Please wait.