Holly Terrace, Fishergate, York, YO10 4DS
Guide Price £675,000
A beautiful, three bedroom Victorian home in an enviable riverside location, within a short stroll of the city centre.
A short stroll along the riverside from the city centre will take you to Holly Terrace where you will find this beautiful period terrace home.
Designed and executed by award winning architect Ben Allen, and recognised as one of the UK's top 10 architecture projects in 2018. Its unique design blends seamlessly into its surroundings yet allows for easy modern living.
From its elevated position, it enjoys a truly peaceful setting with sweeping views over the river with all the convenience of being a 10 minute walk of the heart of the city.
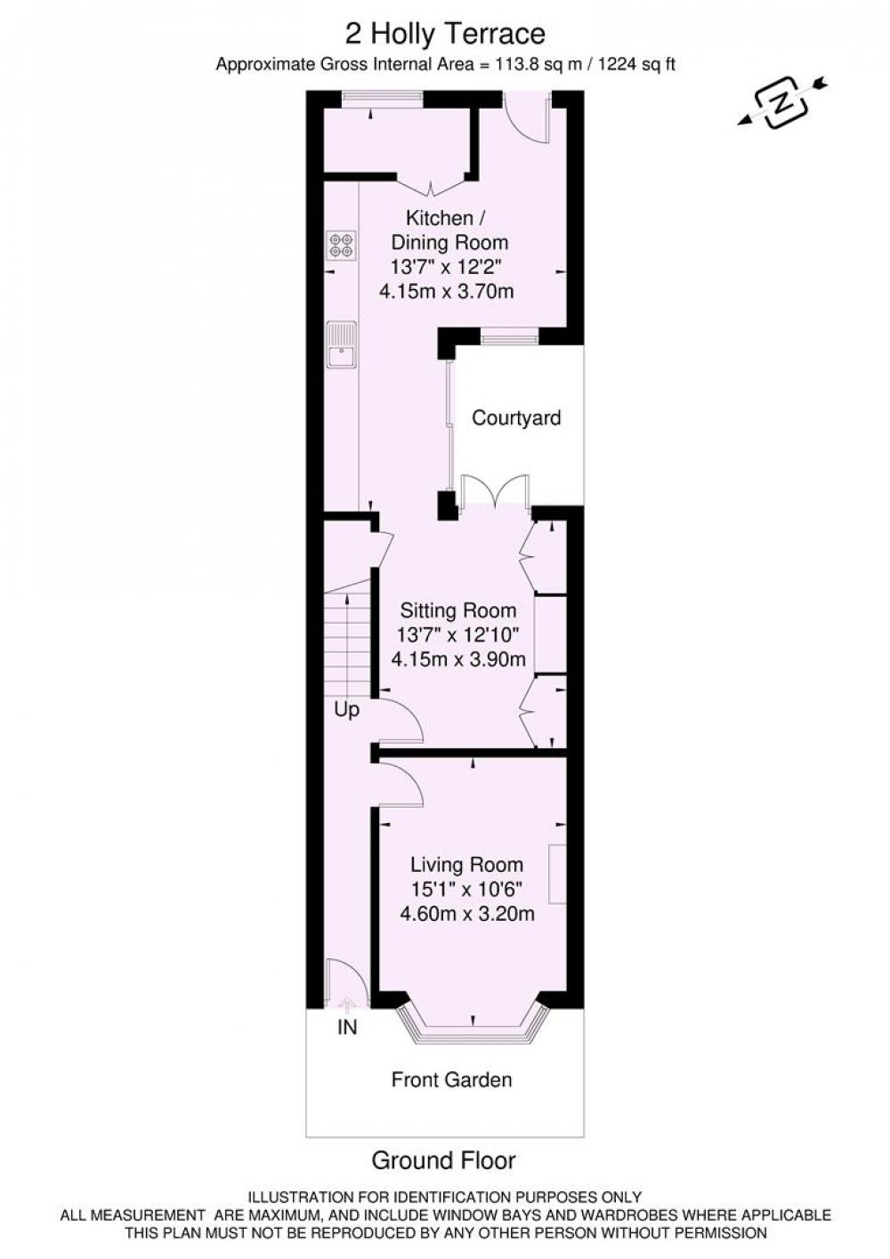
Internally a well appointed living room lies to the front of the home, taking in views over the charming cottage-style front garden, and boasting high ceilings, feature fireplace and fitted plantation shutters. Continuing through, you are welcomed into the main living accommodation- A cosy sitting room and open plan kitchen dining room are beautifully framed around a central courtyard drawing the outdoors in and allowing light to flow through. The sitting room offers ample integral storage and multi fuel stove whilst the unique, bespoke kitchen is well equipped with storage, integral appliances and a stunning polished concrete worktop.
To the first floor, the largest of the bedrooms lies to the front with dual aspect windows, built in wardrobes and window seat. There is a second double bedroom and a generously sized family bathroom with claw foot bath, shower and dual sinks, complimented by brass furnishings.
A third and final double bedroom to the top floor, completes the accommodation.
Externally the property can be accessed via steps leading up from the river front or via Holly Terrace itself. In addition there is also a useful outdoor store
Viewing is highly recommended to appreciate its beautiful design and enviable views, a perfect retreat from the hustle and bustle of the city centre.
GENERAL REMARKS
LOCATION
Situated on Holly Terrace, off Fulford Road, a short stroll from the city centre.
SERVICES
Mains supplies of water, electricity and drainage. Gas fired central heating.
FIXTURES AND FITTINGS
All fixtures and fittings are specifically excluded from the sale unless they are mentioned in the particulars of sale.
LOCAL AUTHORITY YORK
City of York Council, West Offices, Station Rise, York, YO1 6GA. Telephone 01904 551550.
VIEWING MICKLEGATE
All viewing is strictly by prior appointment with the sole selling agents, Hudson Moody. Please contact our offices at 58, Micklegate, York, YO1 6LF. Telephone (01904) 650 650.
ANTI MONEY LAUNDERING COMPLIANCE
We are legally required to conduct Anti-Money Laundering (AML) checks on all purchasers and sellers. These checks become mandatory once a seller accepts an offer on a property (subject to contract).
AML checks are valid for six months from the date of completion. If your transaction does not proceed and you submit an offer on another property more than six months later, or if your existing AML check is more than six months old at the time of a new offer, you will be required to complete and pay for a new check.
We appoint HIPLA as our compliance partner to carry out these checks on our behalf. Once your offer has been accepted (subject to contract), HIPLA will contact you directly to complete a secure electronic verification process.
A non-refundable fee of £30 + VAT per purchaser is payable for the AML check. This fee must be paid before we can issue the Memorandum of Sale to the solicitors. The fee is non-refundable in all circumstances.
Hudson Moody receives service credits from HIPLA which may be used against other services, in recognition of facilitating the checks and undertaking associated administrative compliance duties.
Loading... Please wait.
Loading... Please wait.