Horseman Avenue, Copmanthorpe, York, YO23 3UF
Offers Over £375,000
A tastefully presented two bedroom semi-detached dormer bungalow with garage and large garden, situated within the popular and sought after village of Copmanthorpe lying within easy reach of York city centre and the outer ring road that feeds to the motorway network.
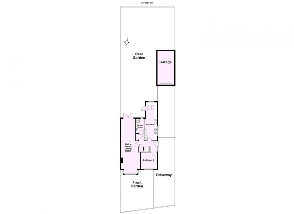
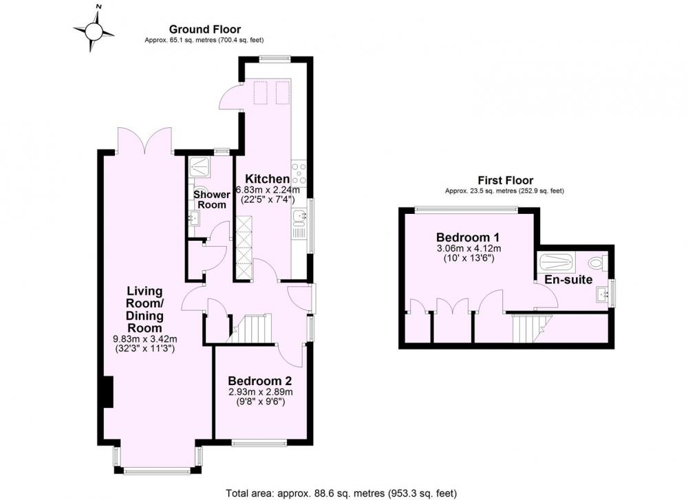
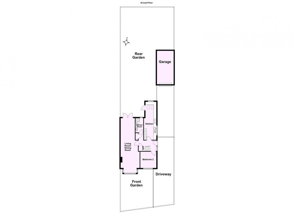
Approached via a low-maintenance front garden with side driveway, this attractive bungalow opens into a welcoming central hallway. From here, you are led through to a bright and generously proportioned living and dining room, a standout feature of the home. The space benefits from a large box bay window to the front and French doors opening onto the rear patio, creating excellent natural light and a wonderful sense of flow between indoors and out. The stylish living area features a wood-burning stove, while laminate wood flooring extends seamlessly through to the slightly recessed dining area.
The galley-style kitchen runs to the rear of the property and is well appointed with an excellent range of fitted units, including an eye-level oven and microwave.
The ground floor accommodation is completed by a well-proportioned second bedroom and a separate shower room. Stairs rise from the hallway to the principal bedroom, which offers a good range of fitted cupboards and a contemporary en-suite shower room.
To the rear is a long, well-maintained garden, predominantly laid to lawn and featuring a patio area, vegetable patch and rockery. At the far end of the garden sits a summerhouse with electricity and an electric radiator, making it ideal for use as a home office, studio or hobby room.
The property is located in a highly sought-after village with good local amenities and convenient access to the A64. There are regular bus services to York, Tadcaster and Leeds, and the village primary school feeds into Tadcaster Academy.
GENERAL REMARKS
VIEWING
All viewing is strictly by prior appointment with the sole selling agents, Hudson Moody. Please contact our offices at 58, Micklegate, York, YO1 6LF.
FIXTURES AND FITTINGS
All fixtures and fittings are specifically excluded from the sale unless they are mentioned in the particulars of sale.
LOCATION
Copmanthorpe is a popular village lying a short distance from York and enjoys many local shops and facilities including a sports ground, school, and public house yet lies close to the A64 trunk road giving easy access to York, Tadcaster and Leeds.
SERVICES
Mains supplies of water, electricity and drainage. Gas fired central heating.
LOCAL AUTHORITY YORK
City of York Council, West Offices, Station Rise, York, YO1 6GA. Telephone 01904 551550.
OFFER PROCEDURE
Before contacting a Building Society, Bank or Solicitor you should make your offer to the office dealing with the sale, as any delay may result in the sale being agreed to another purchaser, thus incurring unnecessary costs. Under the Estate Agency Act 1991, you will be required to provide us with financial information in order to verify your position, before we can recommend your offer to the vendor. We will also require proof of identification in order to adhere to Money Laundering Regulations.
ANTI MONEY LAUNDERING COMPLIANCE
We are legally required to conduct Anti-Money Laundering (AML) checks on all purchasers and sellers. These checks become mandatory once a seller accepts an offer on a property (subject to contract).
AML checks are valid for six months from the date of completion. If your transaction does not proceed and you submit an offer on another property more than six months later, or if your existing AML check is more than six months old at the time of a new offer, you will be required to complete and pay for a new check.
We appoint HIPLA as our compliance partner to carry out these checks on our behalf. Once your offer has been accepted (subject to contract), HIPLA will contact you directly to complete a secure electronic verification process.
A non-refundable fee of £30 + VAT per purchaser is payable for the AML check. This fee must be paid before we can issue the Memorandum of Sale to the solicitors. The fee is non-refundable in all circumstances.
Hudson Moody receives service credits from HIPLA which may be used against other services, in recognition of facilitating the checks and undertaking associated administrative compliance duties.
Loading... Please wait.
Loading... Please wait.