Hunters Way, York, YO24 1JJ
Offers Over £600,000
A superbly updated traditional semi-detached house with impressive extensions to the side and rear, now providing an incredible family home in the convenient Dringhouses area of York.
The property offers spacious accommodation including a cosy living room, extended dining/family room and a magnificent extended family kitchen with bi-folding doors giving access to the patio and garden beyond. The first floor provides five bedrooms, bathroom and separate WC.
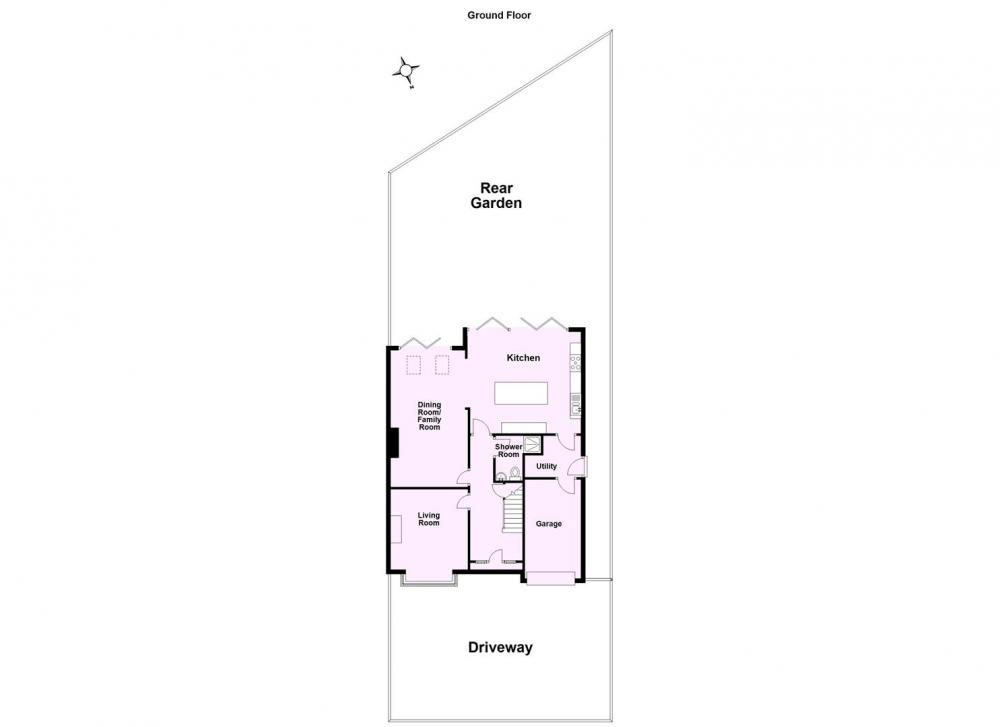
A wide forecourt provides off street parking and leads to the integral single garage, beside which the arched porch takes you into a generous reception hall with firstly a door into the sitting room, a cosy room for winter nights with an open fireplace and wide box bay window. The extended family room and dining area lie to the rear with three bi-fold doors and two roof lights making this a light and airy family area. To the side of the family room, through an archway you come to the superb modern kitchen with central island, bi-folding doors and an excellent range of modern units including a six ring gas hob, wall mounted ovens and space for an American style fridge freezer. The room benefits from laminate wood flooring and provides ample space for additional seating if required. The ground floor is then completed with a shower room and utility area that gives access to the integral garage.
On the first floor is the master bedroom with a full range of fitted wardrobes, three further double bedrooms, a single room, house bathroom and separate WC.
To the rear of the house is a well maintained lawned garden with two patio seating area all set within hedging and attractive fencing.
GENERAL REMARKS
VIEWING
All viewing is strictly by prior appointment with the sole selling agents, Hudson Moody. Please contact our offices at 58, Micklegate, York, YO1 6LF.
FIXTURES AND FITTINGS
All fixtures and fittings are specifically excluded from the sale unless they are mentioned in the particulars of sale.
LOCATION
Situated just off Tadcaster Road that provides easy access to York city centre and the outer ring road. This house lies in a sought after residential area with local shops and services.
SERVICES
Mains supplies of water, electricity and drainage. Gas fired central heating.
LOCAL AUTHORITY YORK
City of York Council, West Offices, Station Rise, York, YO1 6GA. Telephone 01904 551550.
OFFER PROCEDURE
Before contacting a Building Society, Bank or Solicitor you should make your offer to the office dealing with the sale, as any delay may result in the sale being agreed to another purchaser, thus incurring unnecessary costs. Under the Estate Agency Act 1991, you will be required to provide us with financial information in order to verify your position, before we can recommend your offer to the vendor. We will also require proof of identification in order to adhere to Money Laundering Regulations.
ANTI MONEY LAUNDERING COMPLIANCE
We are legally required to conduct Anti-Money Laundering (AML) checks on all purchasers and sellers. These checks become mandatory once a seller accepts an offer on a property (subject to contract).
AML checks are valid for six months from the date of completion. If your transaction does not proceed and you submit an offer on another property more than six months later, or if your existing AML check is more than six months old at the time of a new offer, you will be required to complete and pay for a new check.
We appoint HIPLA as our compliance partner to carry out these checks on our behalf. Once your offer has been accepted (subject to contract), HIPLA will contact you directly to complete a secure electronic verification process.
A non-refundable fee of £30 + VAT per purchaser is payable for the AML check. This fee must be paid before we can issue the Memorandum of Sale to the solicitors. The fee is non-refundable in all circumstances.
Hudson Moody receives service credits from HIPLA which may be used against other services, in recognition of facilitating the checks and undertaking associated administrative compliance duties.
Loading... Please wait.
Loading... Please wait.