Huntington Road, York, YO31 9BT
Guide Price £240,000
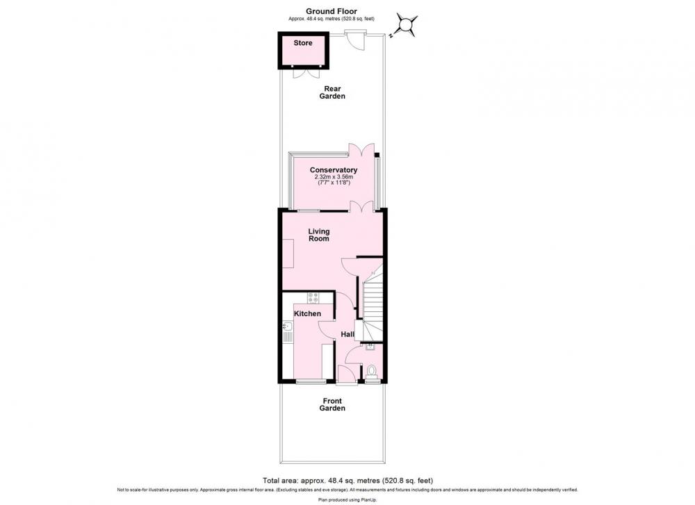
*OFFERED FOR SALE WITH NO ONWARD CHAIN* An attractive and spacious three bedroom mid townhouse, with rear sunny garden and off-road parking for two cars. The property is ideally placed for York City Centre and Huntington village.
The accommodation is well presented throughout and has 845 sq ft of living space. Internally there is an entrance hallway with stairs leading to the first floor and a guest WC. The modern kitchen has an inset four burner gas hob with extractor hood over and electric oven under. To the rear of the property is the lounge with feature fireplace, room for a table and has double doors opening to a conservatory, with double doors opening to the rear garden.
A first floor landing serves three bedrooms and a modern house bathroom with shower over bath.
Externally, there is a lawn garden to the front with a pathway to the front door. The enclosed rear south east garden is low maintenance, with a storage shed, fencing to the perimeters and a gate opens to the allocated parking.
We strongly recommend an early viewing to fully appreciate the accommodation on offer.
GENERAL REMARKS
VIEWING
All viewing is strictly by prior appointment with the sole selling agents, Hudson Moody. Please contact our offices at 58, Micklegate, York, YO1 6LF. Telephone (01904) 650 650.
FIXTURES & FITTINGS
All fixtures and fittings are specifically excluded from the sale unless they are mentioned in the particulars of sale.
LOCATION
The property lies in an extremely convenient location being close to local facilities, York city centre and within easy reach of the A64 serving the motorway network.
SERVICES
Mains supplies of water, electricity and drainage. Gas fired central heating.
LOCAL AUTHORITY YORK
City of York Council, West Offices, Station Rise, York, YO1 6GA. Telephone 01904 551550.
OFFER PROCEDURE
Before contacting a Building Society, Bank or Solicitor you should make your offer to the office dealing with the sale, as any delay may result in the sale being agreed to another purchaser, thus incurring unnecessary costs. Under the Estate Agency Act 1991, you will be required to provide us with financial information in order to verify your position, before we can recommend your offer to the vendor. We will also require proof of identification in order to adhere to Money Laundering Regulations.
ANTI MONEY LAUNDERING COMPLIANCE
We are legally required to conduct Anti-Money Laundering (AML) checks on all purchasers and sellers. These checks become mandatory once a seller accepts an offer on a property (subject to contract).
AML checks are valid for six months from the date of completion. If your transaction does not proceed and you submit an offer on another property more than six months later, or if your existing AML check is more than six months old at the time of a new offer, you will be required to complete and pay for a new check.
We appoint HIPLA as our compliance partner to carry out these checks on our behalf. Once your offer has been accepted (subject to contract), HIPLA will contact you directly to complete a secure electronic verification process.
A non-refundable fee of £30 + VAT per purchaser is payable for the AML check. This fee must be paid before we can issue the Memorandum of Sale to the solicitors. The fee is non-refundable in all circumstances.
Hudson Moody receives service credits from HIPLA which may be used against other services, in recognition of facilitating the checks and undertaking associated administrative compliance duties.
Loading... Please wait.
Loading... Please wait.