Lincoln Street, Leeman Road, York YO26 4YR
Guide Price £240,000
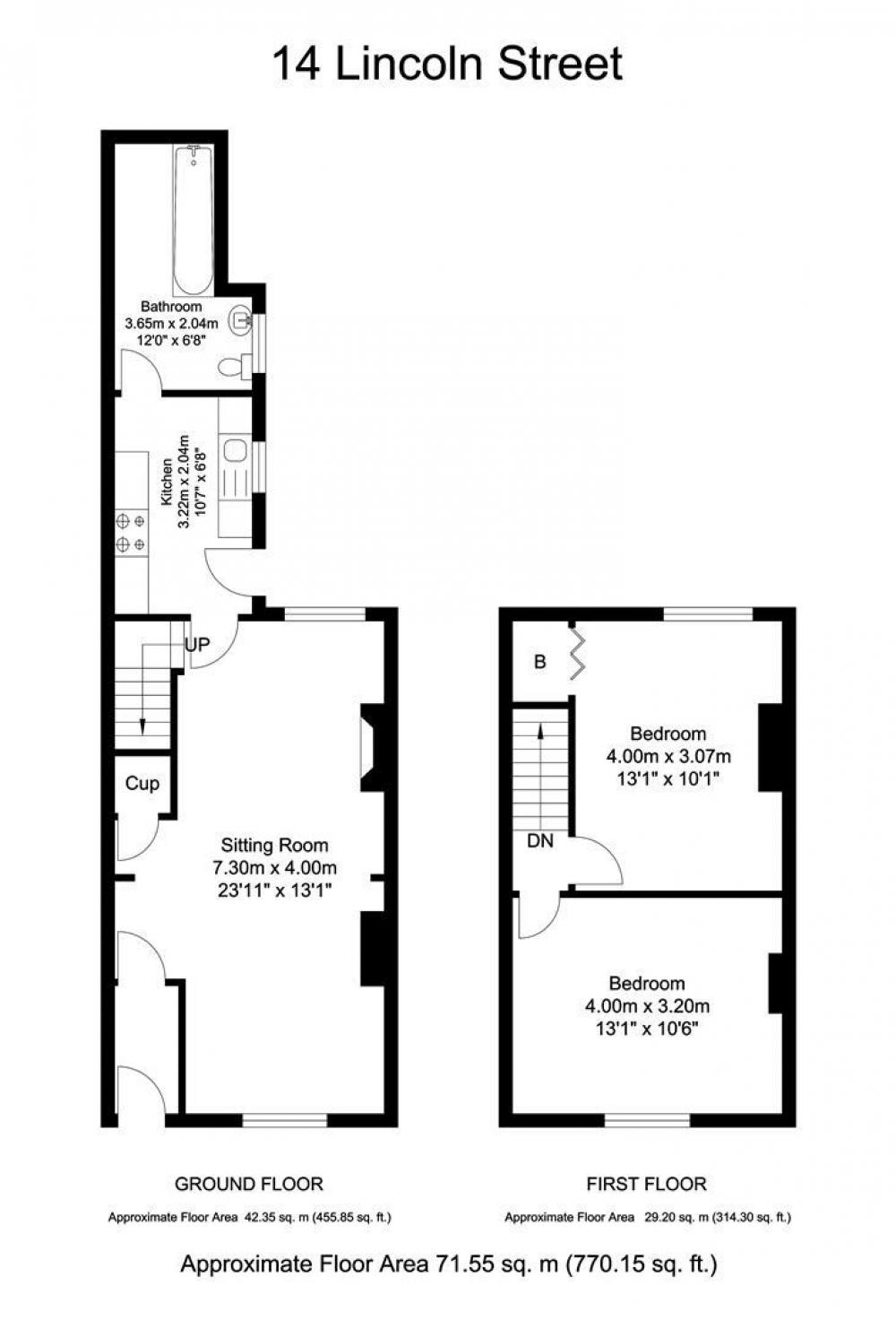
A spacious and contemporary TWO BEDROOM VICTORIAN TERRACED HOUSE situated off Leeman Road with pleasant riverside walks to the city centre. The house has recently had a new roof, been repointed at the front, new boiler and some extensive damp proofing done to the living space.
The house is entered directly from Lincoln Street into a small vestibule and then into the spacious 23ft living and dining room with laminate wood flooring and a traditional arched fireplace and open basket fire. The room offers excellent space for both living and dining with a useful storage cupboard and stairs off to the first floor. Beyond the living room lies the modern galley style kitchen with a good range of fitted units including an integrated oven, gas hob and extractor fan together with a door out to the rear courtyard garden and a further extension into the impressive contemporary ground floor bathroom with shower over the bath.
On the first floor are two good sized double bedrooms.
GENERAL REMARKS
VIEWING
All viewing is strictly by prior appointment with the sole selling agents, Hudson Moody. Please contact our offices at 58, Micklegate, York, YO1 6LF.
FIXTURES AND FITTINGS
All fixtures and fittings are specifically excluded from the sale unless they are mentioned in the particulars of sale.
LOCATION
The property lies in a convenient location within easy reach of York city centre and the A59 Boroughbridge Road. The area has a number of small local shops, a good nearby primary school and pleasant riverside walks into town.
SERVICES
Mains supplies of water, electricity and drainage. Gas fired central heating.
LOCAL AUTHORITY YORK
City of York Council, West Offices, Station Rise, York, YO1 6GA. Telephone 01904 551550.
OFFER PROCEDURE
Before contacting a Building Society, Bank or Solicitor you should make your offer to the office dealing with the sale, as any delay may result in the sale being agreed to another purchaser, thus incurring unnecessary costs. Under the Estate Agency Act 1991, you will be required to provide us with financial information in order to verify your position, before we can recommend your offer to the vendor. We will also require proof of identification in order to adhere to Money Laundering Regulations.
ANTI MONEY LAUNDERING COMPLIANCE
We are legally required to conduct Anti-Money Laundering (AML) checks on all purchasers and sellers. These checks become mandatory once a seller accepts an offer on a property (subject to contract).
AML checks are valid for six months from the date of completion. If your transaction does not proceed and you submit an offer on another property more than six months later, or if your existing AML check is more than six months old at the time of a new offer, you will be required to complete and pay for a new check.
We appoint HIPLA as our compliance partner to carry out these checks on our behalf. Once your offer has been accepted (subject to contract), HIPLA will contact you directly to complete a secure electronic verification process.
A non-refundable fee of £30 + VAT per purchaser is payable for the AML check. This fee must be paid before we can issue the Memorandum of Sale to the solicitors. The fee is non-refundable in all circumstances.
Hudson Moody receives service credits from HIPLA which may be used against other services, in recognition of facilitating the checks and undertaking associated administrative compliance duties.
Loading... Please wait.
Loading... Please wait.