Lycett Road, Dringhouses, York, YO24 1ND
Offers In The Region Of £535,000
Situated in one of the most sought after areas of York, close to The Knavesmire, is this impressive and superbly presented family detached house that has been extended to one side offering generous living accommodation.
*OFFERED TO THE MARKET WITH NO CHAIN* This spacious, detached family home lies to the south of York in the popular, yet peaceful area of Dringhouses. The property is situated close to a bus stop, providing easy access to the city centre, local shops, café’s and a pedestrian path leading to The Knavesmire and cycle track.
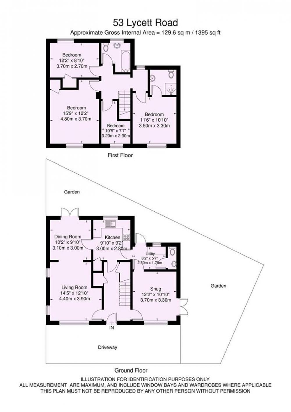
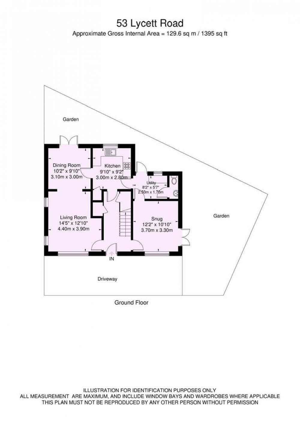
The ground floor comprises generous living accommodation with an open plan dining living room, a separate snug room and a modern kitchen with a utility and downstairs cloakroom off. The living room benefits from a picture window to the front that fills the room with natural light, A Victorian style arched cast iron fireplace and engineered oak flooring that continues through to the dining area where French doors open out to the rear garden. The snug room offers versatile accommodation with potential to be a further bedroom or office. To the rear, the kitchen is fitted with contemporary units and integrated dishwasher, Belfast sink and space for a free standing cooker. The utility room provides additional space for further appliances including a fridge freezer and washing machine. A door from the utility room returns to the snug and a further door leads to the useful ground floor cloakroom.
The first floor offers three double bedrooms, one with en-suite shower room, an additional single bedroom, and the immaculate house bathroom.
Externally, the well maintained garden wraps around the side and rear of the property featuring a paved patio and lawn with a variety of trees and shrubs creating a degree privacy.
GENERAL REMARKS
VIEWING
All viewing is strictly by prior appointment with the sole selling agents, Hudson Moody. Please contact our offices at 58, Micklegate, York, YO1 6LF.
FIXTURES AND FITTINGS
All fixtures and fittings are specifically excluded from the sale unless they are mentioned in the particulars of sale.
LOCATION
Situated a short distance from Tadcaster Road, the house is in an ideal location for access to York city centre, walks on The Knavesmire, local shops and conveniences and the A64 that feeds to the motorway network.
SERVICES
Mains supplies of water, electricity and drainage. Gas fired central heating.
LOCAL AUTHORITY YORK
City of York Council, West Offices, Station Rise, York, YO1 6GA. Telephone 01904 551550.
OFFER PROCEDURE
Before contacting a Building Society, Bank or Solicitor you should make your offer to the office dealing with the sale, as any delay may result in the sale being agreed to another purchaser, thus incurring unnecessary costs. Under the Estate Agency Act 1991, you will be required to provide us with financial information in order to verify your position, before we can recommend your offer to the vendor. We will also require proof of identification in order to adhere to Money Laundering Regulations.
ANTI MONEY LAUNDERING COMPLIANCE
We are legally required to conduct Anti-Money Laundering (AML) checks on all purchasers and sellers. These checks become mandatory once a seller accepts an offer on a property (subject to contract).
AML checks are valid for six months from the date of completion. If your transaction does not proceed and you submit an offer on another property more than six months later, or if your existing AML check is more than six months old at the time of a new offer, you will be required to complete and pay for a new check.
We appoint HIPLA as our compliance partner to carry out these checks on our behalf. Once your offer has been accepted (subject to contract), HIPLA will contact you directly to complete a secure electronic verification process.
A non-refundable fee of £30 + VAT per purchaser is payable for the AML check. This fee must be paid before we can issue the Memorandum of Sale to the solicitors. The fee is non-refundable in all circumstances.
Hudson Moody receives service credits from HIPLA which may be used against other services, in recognition of facilitating the checks and undertaking associated administrative compliance duties.
Loading... Please wait.
Loading... Please wait.