Main Street, Claxton, York, YO60 7SD
Offers In Excess Of £600,000
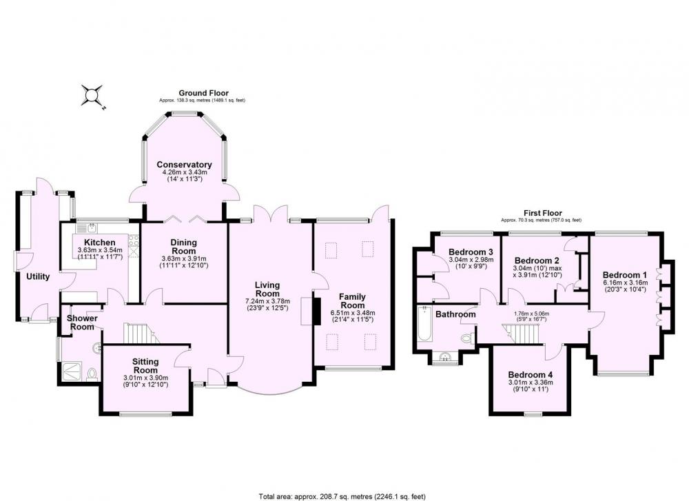
Springwell House is a delightful and individual detached family home, situated in the heart of the village of Claxton, overlooking the village green. With gardens stretching to approx. 1/3 of an acre, this much loved family home is being sold with no onward chain.
Coming to the market for the first time in over 25 years, the accommodation extends to over 2,200 sq ft of flexible living space and although has been very well maintained, would now benefit from modernisation works.
Internally, a welcoming hallway has stairs leading to the first floor and serves the ground floor rooms. The bay fronted living room, centres upon a feature fire place and has French doors opening to the rear garden. Accessed just off the living room is a large family room, with vaulted ceiling and door opening to the rear garden.
A dining room has sliding doors leading to a large conservatory, offering views over the rear garden and doors opening to the garden.
The breakfast kitchen has a range of integrated appliances, to include a ceramic hob, electric double oven and dishwasher. A door with glazed panels opens to a utility area, with plumbing for a washing machine and doors opening to the front, rear and the attached double garage.
There is also the benefit of a study / sitting room and a shower room completes the ground floor accommodation.
A first floor landing serves 4 double bedrooms and a house bathroom.
Externally, a driveway provides off-road parking for a number of vehicles and leads to an attached double garage, with an electric up and over door. A pathway leads to the front door, with a storm porch and a lawned front garden, with privacy hedging to the perimeters. Gated access opens to the mature rear gardens, with a large pond and decked area. Pathways lead through the garden, with various seating terraces and lawned areas, a smaller pond, a large shed and large greenhouse.
To fully appreciated what this amazing home has to offer inside and out, an early viewing is strongly advised.
GENERAL REMARKS
LOCATION
Situated in the highly regarded village of Claxton, on the Main Street. 7 Miles from North East of York and offers convenient access to the amenities in Stamford Bridge and Monks Cross / Vangarde.
SERVICES
Mains Water and Drainage. Oil Supply.
FIXTURES & FITTINGS
All fixtures and fittings are specifically excluded from the sale unless they are mentioned in the particulars of sale.
VIEWINGS
All viewing is strictly by prior appointment with the sole selling agents, Hudson Moody. Please contact our offices at 58, Micklegate, York, YO1 6LF. Telephone (01904) 650 650.
OFFER PROCEDURE
Before contacting a Building Society, Bank or Solicitor you should make your offer to the office dealing with the sale, as any delay may result in the sale being agreed to another purchaser, thus incurring unnecessary costs. Under the Estate Agency Act 1991, you will be required to provide us with financial information in order to verify your position, before we can recommend your offer to the vendor. We will also require proof of identification in order to adhere to Money Laundering Regulations.
LOCAL AUTHORITY
Ryedale District Council, Ryedale House, Malton, North Yorkshire, YO17 7HH.
Telephone: 01653 600666.
ANTI MONEY LAUNDERING COMPLIANCE
We are legally required to conduct Anti-Money Laundering (AML) checks on all purchasers and sellers. These checks become mandatory once a seller accepts an offer on a property (subject to contract).
AML checks are valid for six months from the date of completion. If your transaction does not proceed and you submit an offer on another property more than six months later, or if your existing AML check is more than six months old at the time of a new offer, you will be required to complete and pay for a new check.
We appoint HIPLA as our compliance partner to carry out these checks on our behalf. Once your offer has been accepted (subject to contract), HIPLA will contact you directly to complete a secure electronic verification process.
A non-refundable fee of £30 + VAT per purchaser is payable for the AML check. This fee must be paid before we can issue the Memorandum of Sale to the solicitors. The fee is non-refundable in all circumstances.
Hudson Moody receives service credits from HIPLA which may be used against other services, in recognition of facilitating the checks and undertaking associated administrative compliance duties.
Loading... Please wait.
Loading... Please wait.