Main Street, Newton On Derwent, York YO41 4DB
Offers Over £450,000
A BEAUTIFULLY PRESENTED property with STUNNING VIEWS OVER OPEN COUNTRYSIDE; complimented by private lawned gardens and DOUBLE GARAGE.
GENERAL REMARKS
A quite superb located property; constructed in the 1970's set within a highly attractive and popular semi-rural village offering a modern finish throughout.
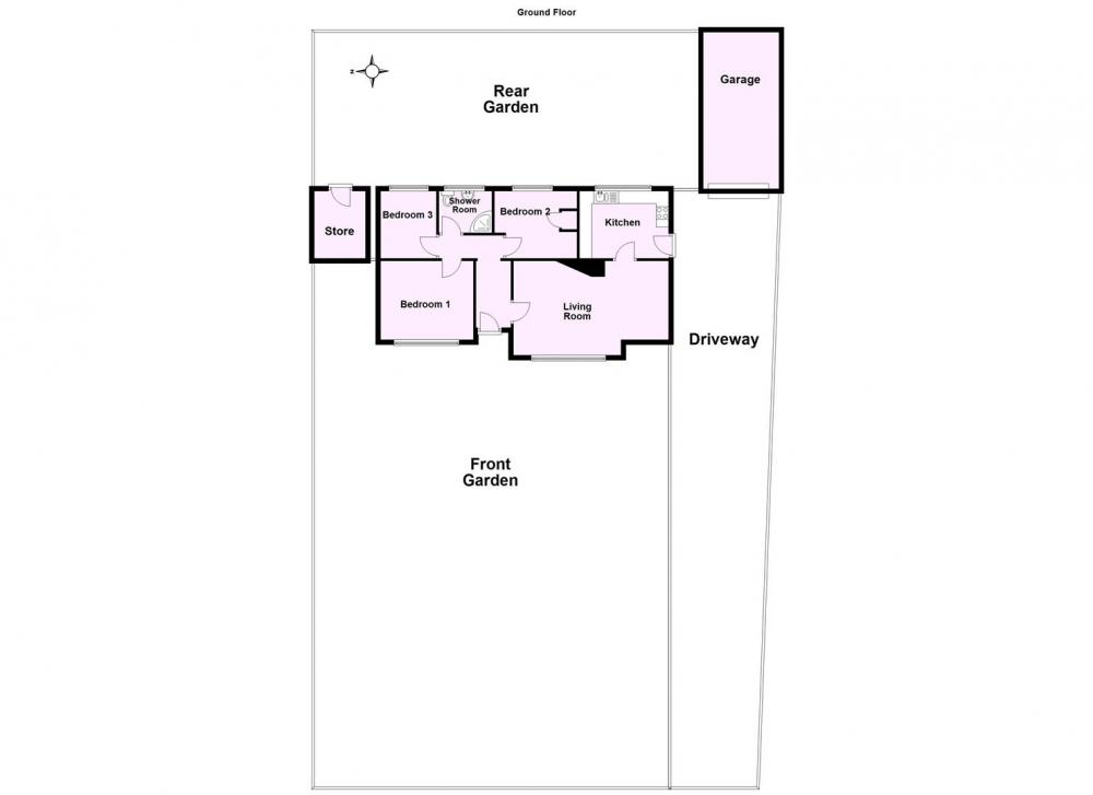
Accommodation comprises: front entrance hall, light and spacious living dining room incorporating a contemporary media wall plus feature multi-fuel burning stove set on a tiled hearth plus large window with front garden views -- modern kitchen enjoying paddock views with The Wolds beyond; integral units include: Neff double oven/grill, space for low level fridge and space for washing machine, plus induction hob with extractor over. Side access to the driveway. Three bedrooms (two doubles and one single), plus a house shower room.
Outside: Approached via a brick-pillared entrance with iron gates, a long gravel driveway—flanked by a paved pedestrian walkway—leads to a detached double garage featuring twin up-and-over doors, offering generous parking for several vehicles. The front garden is a notable feature, providing excellent privacy with mature, tall hedging and a predominantly lawned area. Additionally, a smaller, fenced rear garden is laid to lawn, complemented by a timber shed currently used for log storage.
In summary: a charming bungalow likely to appeal to a wide variety of buyers.
VIEWING
All viewing is strictly by prior appointment with the sole selling agents, Hudson Moody. Please contact our personal agent Alex McClean.
LOCATION
Newton on Derwent is a highly regarded village located to the east of York. The village includes a village hall and popular Half Moon pub with many local walks. Well regarded Primary schools are available in Wilberfoss or Sutton upon Derwent. Shopping facilities are in nearby Wilberfoss and Elvington Villages. An abundance of sports opportunities are available amongst the villages and there is a great community spirit.
The village lies approximately 9 miles to the south east of York city centre and is well placed for the commuter, enjoying easy access onto the nearby A1079 linking with the main motorway networks to the south and the A64 York bypass to the north west.
AMENITIES
*mains supplies of water, electricity and drainage.
*Gas fired central heating (via LPG storage tank)
*uPVC double glazed windows
*access hatch to loft space in the kitchen - boarded and insulated
*new electrical distribution board installed in 2025
LOCAL AUTHORITY
East Riding of Yorkshire Council, County Hall, Cross Street, Beverley HU17 9BA:
OFFER PROCEDURE
Before contacting a Building Society, Bank or Solicitor you should make your offer to the office dealing with the sale, as any delay may result in the sale being agreed to another purchaser, thus incurring unnecessary costs. Under the Estate Agency Act 1991, you will be required to provide us with financial information in order to verify your position, before we can recommend your offer to the vendor. We will also require proof of identification in order to adhere to Money Laundering Regulations.
ANTI MONEY LAUNDERING COMPLIANCE
We are legally required to conduct Anti-Money Laundering (AML) checks on all purchasers and sellers. These checks become mandatory once a seller accepts an offer on a property (subject to contract).
AML checks are valid for six months from the date of completion. If your transaction does not proceed and you submit an offer on another property more than six months later, or if your existing AML check is more than six months old at the time of a new offer, you will be required to complete and pay for a new check.
We appoint HIPLA as our compliance partner to carry out these checks on our behalf. Once your offer has been accepted (subject to contract), HIPLA will contact you directly to complete a secure electronic verification process.
A non-refundable fee of £30 + VAT per purchaser is payable for the AML check. This fee must be paid before we can issue the Memorandum of Sale to the solicitors. The fee is non-refundable in all circumstances.
Loading... Please wait.
Loading... Please wait.