Main Street, Wilberfoss, York YO41 5NN
Guide Price £385,000
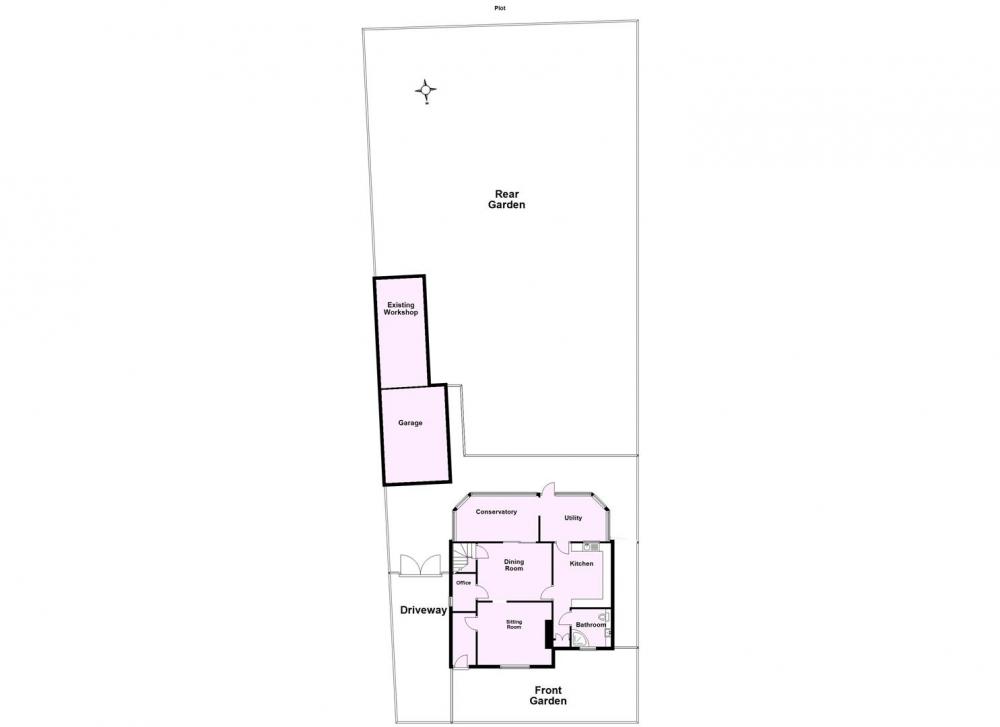
A charming detached 3 bed GEORGIAN COTTAGE + garage/outbuilding with planning consent to extend & convert to a one-bedroom Annexe. Complimented by lovely 100ft SOUTH FACING lawned gardens.
GENERAL REMARKS
This lovely character property which has been lived in by the same family for more than 40 years has the benefit of planning consent to convert the outbuilding to a one-bedroom Annexe. Alternatively this could be renovated. There is also great potential to extend to the rear of the property (subject to planning).
Accommodation comprises: entrance hall -- small office-- living room + coal effect gas fireplace -- dining room -- good sized kitchen breakfast room -- large conservatory/utility that spans the full property width -- ground floor bathroom: fully tiled; corner bath with shower over, washbasin, toilet, storage cupboards & extractor fan.
First floor: 3 bedrooms (2 doubles and a single).
Outside: the property is approached from the Main Street with ample off-road parking provision for 3 vehicles leading up to a detached garage. The main southerly facing garden lies to the rear of the property; predominantly lawned enclosed by timber fenced boundaries and flanked within by well stocked borders including Magnolia, plus Cherry Blossom and fir tree. Immediately to the rear is a large, paved sun patio.
In summary: a versatile and well-proportioned property likely to appeal to a wide variety of buyers but particularly those seeking large gardens.
VIEWING
All viewing is strictly by prior appointment with the sole selling agents, Hudson Moody. Please contact our personal agent Alex McClean.
LOCATION
The property is well placed for the commuter lying approx 8 miles east of York city centre & within easy reach of York outer ring road. The village has a church, pub, highly regarded Primary School, full day care & nursery & well equipped children's playground. There is also sports club with football & cricket teams, local tennis club, community centre, mini supermarket/post office & butchers. There are good communication links with easy access onto the A1079, serving York and Hull. Approximate distances. Leeds 24 miles. Hull 15 miles. Pocklington 4 miles. There is a regular bus service in both directions and mainline railway stations in nearby York.
AMENITIES
*all mains services
*gas central heating (new gas boiler installed 2025)
*kitchen comprises a range of Oak units: integral Neff oven with electric hob and extractor over, space for a dishwasher and space for tall standing fridge freezer
*double glazed windows
LOCAL AUTHORITY
East Riding of Yorkshire Council, County Hall, Cross Street, Beverley HU17 9BA
OFFER PROCEDURE
Before contacting a Building Society, Bank or Solicitor you should make your offer to the office dealing with the sale, as any delay may result in the sale being agreed to another purchaser, thus incurring unnecessary costs. Under the Estate Agency Act 1991, you will be required to provide us with financial information in order to verify your position, before we can recommend your offer to the vendor. We will also require proof of identification in order to adhere to Money Laundering Regulations.
ANTI MONEY LAUNDERING COMPLIANCE
We are legally required to conduct Anti-Money Laundering (AML) checks on all purchasers and sellers. These checks become mandatory once a seller accepts an offer on a property (subject to contract).
AML checks are valid for six months from the date of completion. If your transaction does not proceed and you submit an offer on another property more than six months later, or if your existing AML check is more than six months old at the time of a new offer, you will be required to complete and pay for a new check.
We appoint HIPLA as our compliance partner to carry out these checks on our behalf. Once your offer has been accepted (subject to contract), HIPLA will contact you directly to complete a secure electronic verification process.
A non-refundable fee of £30 + VAT per purchaser is payable for the AML check. This fee must be paid before we can issue the Memorandum of Sale to the solicitors. The fee is non-refundable in all circumstances.
Hudson Moody receives service credits from HIPLA which may be used against other services, in recognition of facilitating the checks and undertaking associated administrative compliance duties.
PLANNING
Planning Application No: 24/02386/PLF Conversion of existing detached outbuilding with single storey extensions to side and rear to form annexe ancillary to main dwelling. Application approved Friday 18 Oct 2024.
AGENT'S NOTE
Please note since the EPC was carried out; the property has since had gas central heating installed.
Loading... Please wait.
Loading... Please wait.