Mill Lane, Acaster Malbis, York YO23 2UL
Guide Price £795,000
An impressive executive detached family home offering excellent kerb appeal, situated in a quiet location in the village of Acaster Malbis. The village lies a little outside York's outer ring road yet provides easy access to the city via either Bishopthorpe or Copmanthorpe.
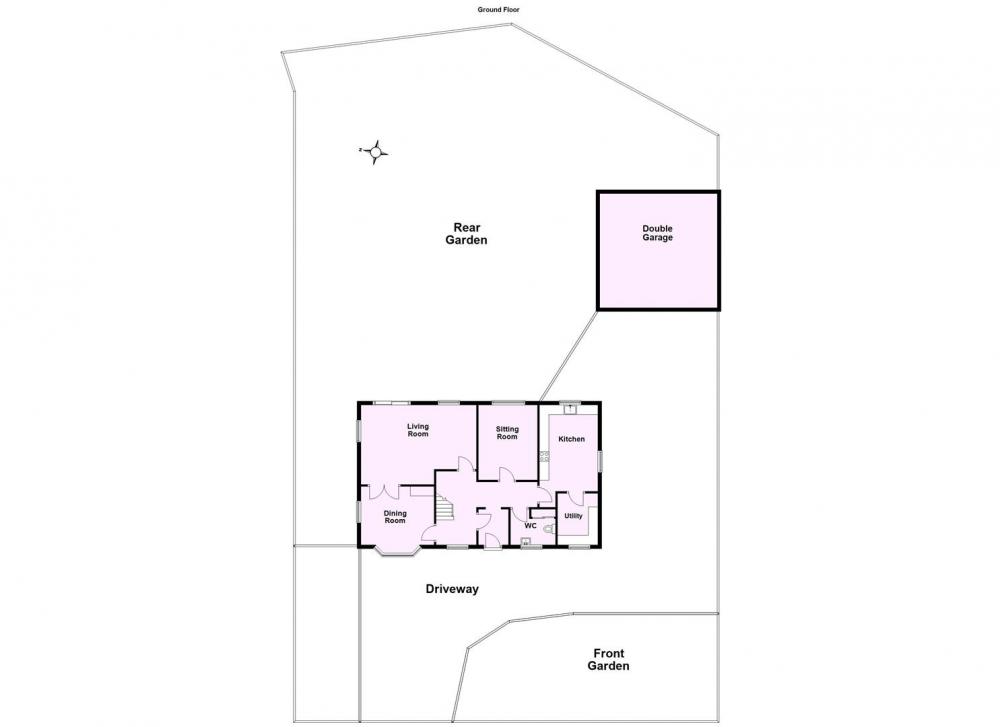
The house lies on a large plot a little off the village street and is approached via a gravel driveway with lawns to the side and provides off street parking, whilst gates to the side lead to a double garage and additional parking.
The reception hall leads to three charming reception rooms, the first being a cosy dining room with bay window to the front and double doors that open through to the elegant 19ft living room with sliding patio doors to the rear garden. Returning to the entrance hall you will discover a second sitting room, a large and impressive kitchen with an excellent range of units set onto a quarry tiled floor. The kitchen features a large range cooker with extractor and a Belfast sink together with granite worktops and ample space for a breakfast table. The ground floor is then completed with a convenient utility room and a separate cloakroom off the entrance hall.
The first floor provides the master bedroom with en-suite bath and shower room, three further double bedrooms, a single room or office and the house bathroom which is fitted with a modern white suite with shower and screen over the bath.
The extensive lawned gardens lies predominantly to the rear of the property with a patio, a separate terrace and a wealth of attractive trees, plants and shrubs.
The house lies in a popular village location and benefits from a great local pub.
GENERAL REMARKS
VIEWING
All viewing is strictly by prior appointment with the sole selling agents, Hudson Moody. Please contact our offices at 58, Micklegate, York, YO1 6LF.
FIXTURES AND FITTINGS
All fixtures and fittings are specifically excluded from the sale unless they are mentioned in the particulars of sale.
LOCATION
The house lies in the attractive village of Acaster Malbis that provides easy access to York city centre and the outer ring road that feeds to the motorway network. The village is accessed via Bishopthorpe where you will find a selection of local shops and services.
SERVICES
Mains supplies of water, electricity and drainage. Gas fired central heating.
LOCAL AUTHORITY YORK
City of York Council, West Offices, Station Rise, York, YO1 6GA. Telephone 01904 551550.
OFFER PROCEDURE
Before contacting a Building Society, Bank or Solicitor you should make your offer to the office dealing with the sale, as any delay may result in the sale being agreed to another purchaser, thus incurring unnecessary costs. Under the Estate Agency Act 1991, you will be required to provide us with financial information in order to verify your position, before we can recommend your offer to the vendor. We will also require proof of identification in order to adhere to Money Laundering Regulations.
ANTI MONEY LAUNDERING COMPLIANCE
We are legally required to conduct Anti-Money Laundering (AML) checks on all purchasers and sellers. These checks become mandatory once a seller accepts an offer on a property (subject to contract).
AML checks are valid for six months from the date of completion. If your transaction does not proceed and you submit an offer on another property more than six months later, or if your existing AML check is more than six months old at the time of a new offer, you will be required to complete and pay for a new check.
We appoint HIPLA as our compliance partner to carry out these checks on our behalf. Once your offer has been accepted (subject to contract), HIPLA will contact you directly to complete a secure electronic verification process.
A non-refundable fee of £30 + VAT per purchaser is payable for the AML check. This fee must be paid before we can issue the Memorandum of Sale to the solicitors. The fee is non-refundable in all circumstances.
Hudson Moody receives service credits from HIPLA which may be used against other services, in recognition of facilitating the checks and undertaking associated administrative compliance duties.
Loading... Please wait.
Loading... Please wait.