Minster View, Wigginton, York, YO32 2GN
Guide Price £275,000
An attractive two double bedroom semi-detached home, with off-road parking and garage/office, situated in a sought after cul-de-sac location in the highly regarded village of Wigginton. The property would make an ideal purchase for first time buyers.
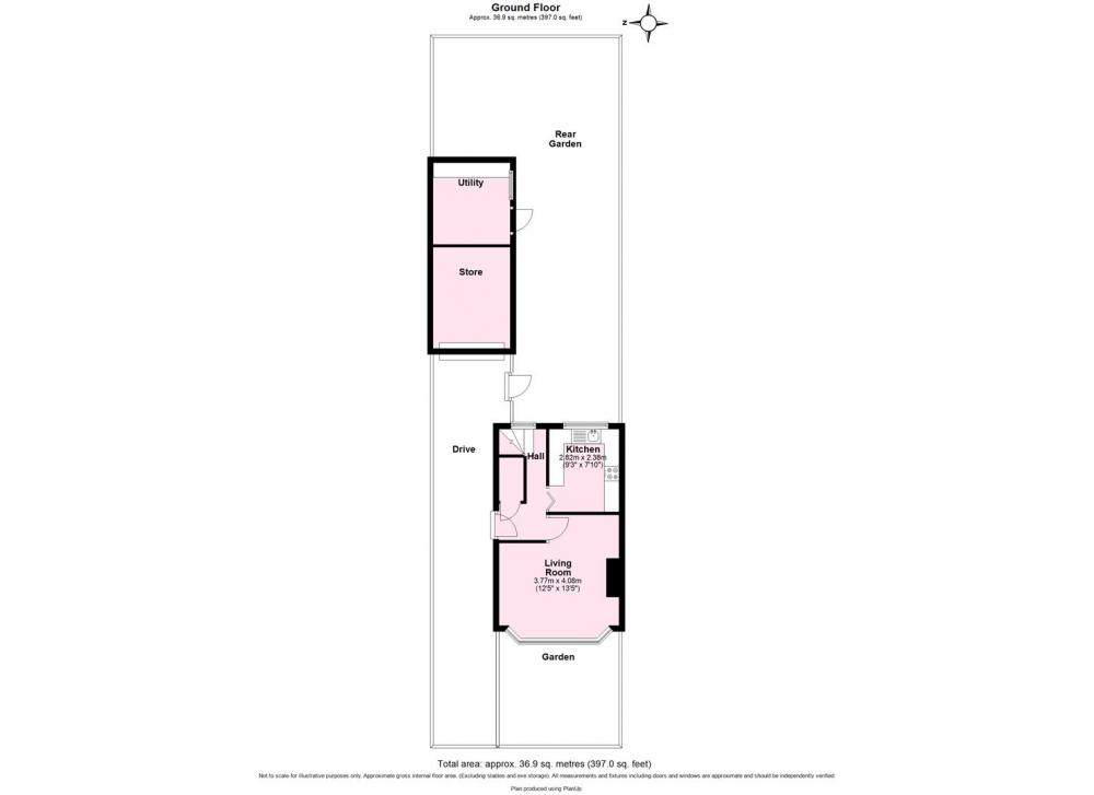
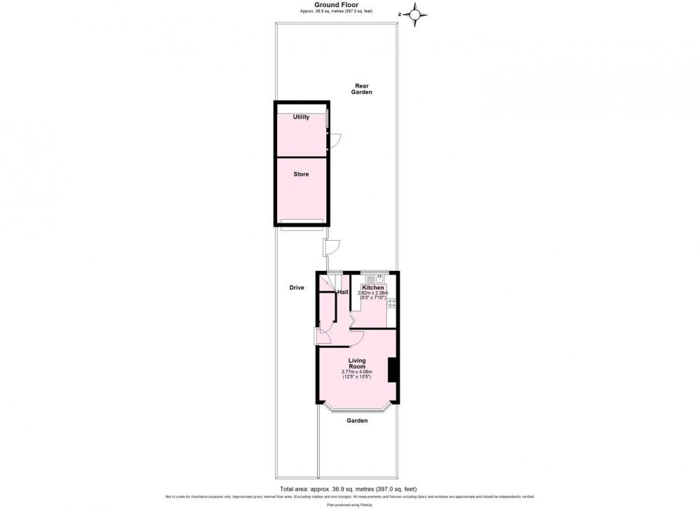
Conveniently placed to access the wide ranging amenities Haxby and Wigginton has to offer, the accommodation is superbly presented throughout and comprises; an entrance hallway with stairs leading to the first floor and wooden flooring. The spacious bay fronted lounge sits to the front of the property and is flooded with natural light, a modern kitchen sits to the rear and has space for a range of appliances and over looks the rear garden.
A first floor landing serves two generous bedrooms and a modern house bathroom with shower over bath.
Externally, there is a lawned garden to the front and a driveway provides off-road parking and leads to a detached garage, which has been split into two to create a storage area and an office. The gravelled rear garden is low maintenance and has a raised decked seating area.
An early viewing is strongly recommended.
GENERAL REMARKS
VIEWING NORTH OF YORK
All viewing is strictly by prior appointment with the sole selling agents, Hudson Moody. Please contact our offices at 58, Micklegate, York, YO1 6LF or The Green, Poppleton, York, YO26 6DF. Telephone (01904) 600 000
FIXTURES & FITTINGS
All fixtures and fittings are specifically excluded from the sale unless they are mentioned in the particulars of sale.
LOCATION
Conveniently placed to access the wide ranging amenities in Haxby & Wigginton and ideally located to access York City Centre, the retail parks, the outer ring road and the A64 serving the motorway network.
SERVICES
Mains supplies of water, electricity and drainage. Gas fired central heating.
LOCAL AUTHORITY YORK
City of York Council, West Offices, Station Rise, York, YO1 6GA. Telephone 01904 551550.
OFFER PROCEDURE
Before contacting a Building Society, Bank or Solicitor you should make your offer to the office dealing with the sale, as any delay may result in the sale being agreed to another purchaser, thus incurring unnecessary costs. Under the Estate Agency Act 1991, you will be required to provide us with financial information in order to verify your position, before we can recommend your offer to the vendor. We will also require proof of identification in order to adhere to Money Laundering Regulations.
ANTI MONEY LAUNDERING COMPLIANCE
We are legally required to conduct Anti-Money Laundering (AML) checks on all purchasers and sellers. These checks become mandatory once a seller accepts an offer on a property (subject to contract).
AML checks are valid for six months from the date of completion. If your transaction does not proceed and you submit an offer on another property more than six months later, or if your existing AML check is more than six months old at the time of a new offer, you will be required to complete and pay for a new check.
We appoint HIPLA as our compliance partner to carry out these checks on our behalf. Once your offer has been accepted (subject to contract), HIPLA will contact you directly to complete a secure electronic verification process.
A non-refundable fee of £30 + VAT per purchaser is payable for the AML check. This fee must be paid before we can issue the Memorandum of Sale to the solicitors. The fee is non-refundable in all circumstances.
Hudson Moody receives service credits from HIPLA which may be used against other services, in recognition of facilitating the checks and undertaking associated administrative compliance duties.
Loading... Please wait.
Loading... Please wait.